查看完整案例

收藏

下载
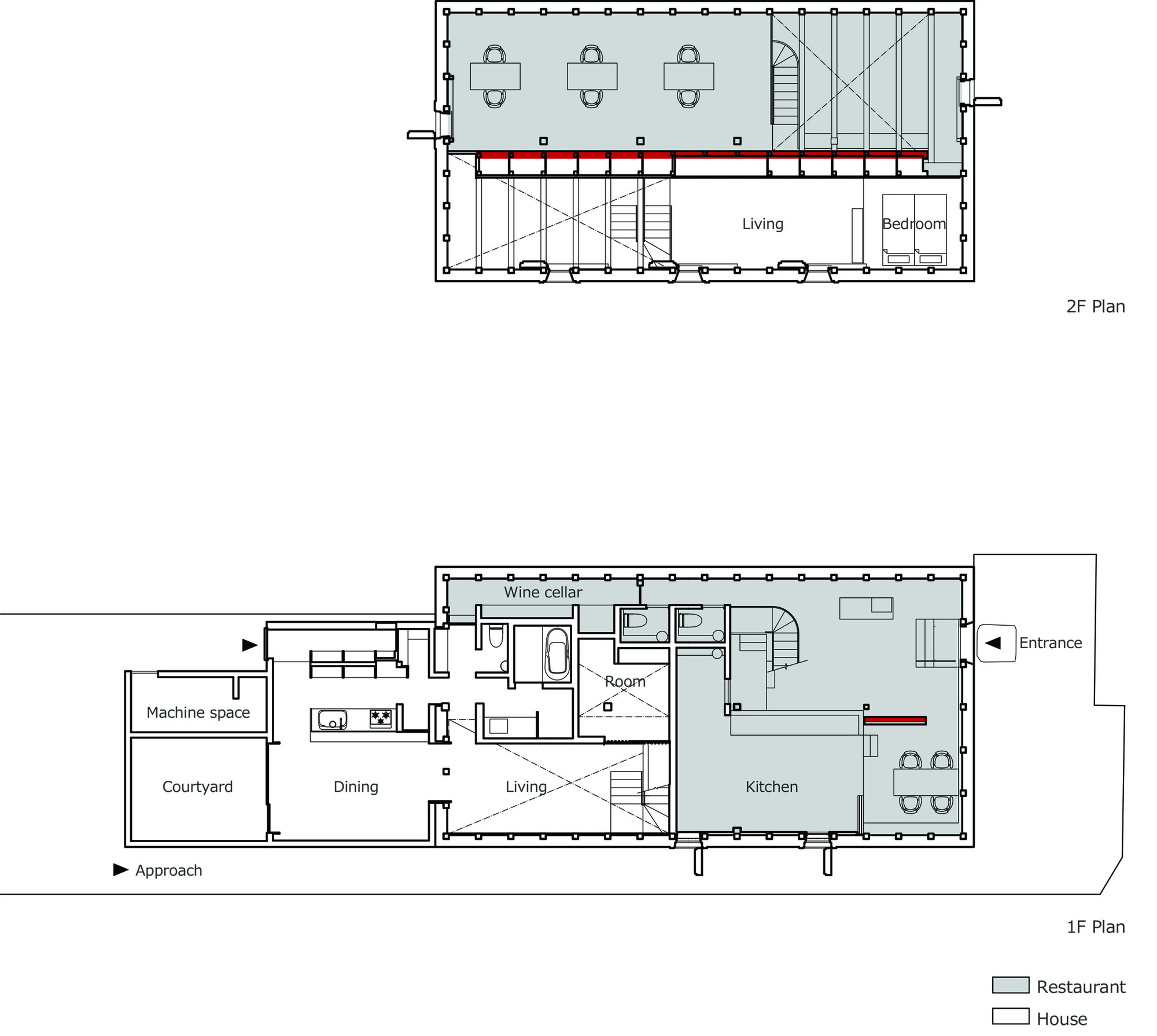
该项目是对Meiji时代建造的130年历史的仓库的翻新工程,为法国餐厅“ Nim”,并在Daishinmachi的所有者Chef及其家人的住所中保留了Hida Takayama的传统城镇景观。 外部几乎是无法接触的,因为仓库位于高山城指定的历史建筑集团的重要保护区。 客户要求我利用这一约束,并创建一个内饰,其中具有世界观,这是从外部无法想象的。 我访问了现有的仓库,没有任何先入为主的概念或设计思想。 该结构令人印象深刻,因为它对于仓库来说很大,正面有4个跨度和一个8个跨度的梁,并且具有典型的高山框架,其山脊由出色的原木和两个相交的光束制成。 我认为应尊重空间的规模,结构的框架以及由仓库黑暗所产生的独特气氛。 另一方面,很难通过插入墙壁而不会破坏这种空间特征来分成两种用途。 设计主题是插入墙壁以将其分成两种用途的动作本身,并且仅使用插入的墙壁完成商店的内部,因为我想限制由于预算有限而限制修改的范围。
首先,将二楼的空间分为北部和南部,以利用空间的较长的东西向方向,从而在有限的现有窗户位置的限制下,在有限的现有窗户位置的限制内引入尽可能多的光线和通风。 如果将上层和下层放置在相同的计划上,很难从厨房的厨房中看到上层的座位受众。 通过将空间分为两个部分,即东西方,上层和下层以L形连接。 倒房子的每个房间都以L形连接,以便可以类似地传达家庭的迹象。 之后,我考虑了壁的存在对空间的影响。 强大的框架可以强调,而不是通过将插入山脉核心的二楼插入的墙壁来掩盖。 此外,墙壁的一部分被悬挂在下层通过中庭,并与薄铁板制成的悬挂楼梯相结合,它产生了一种漂浮的感觉。 仓库的独特氛围是通过使其表现得像幽灵的那样带出来的。 壁的未对准使缺乏地震的性能加强了现有结构的特征,即使它是抗震元素,也没有太有效的效果混合了硬度和柔韧性。 通过连接金属板作为“镜像”来完成空间,通过阐明与现有部分的对比并创建丢失的空间的虚拟图像来完成空间的“镜像”,以完成空间的“镜像”,以使使用丢失以分配使用,从而完成了空间。 通过插入墙来创建一个新的空间是将新的生命呼入空间,以作为生活和生计的基础,同时保持空间中的明治时代的时间流。 这是一种“镜子”,反映了厨师渴望创造一种美食的愿望,在充分利用本地食材时尚未看到这种美食。 (Hajime Aoyagi + Ayaka Aoyagi / Aoyagidesign)
结构设计概念 - 仓库的泥墙比房屋的泥墙厚,并且具有极高的剪切强度。 另外,纵向方向的外壁由于开口很少而具有足够的地震抵抗力。 另一方面,横向方向的开口很大,并且在这座建筑物中已移除了一部分泥墙。 结果,一楼缺乏地震抵抗力。 我决定用内部高强度壁加固墙壁,首先具有足够的电阻。 建筑师的提议使结构更加改进。 那是通过将墙从现有框架中移动来插入墙壁。 将高水平壁插入内部具有增加能量吸收量的优势。 但是,添加墙壁有改变刚度平衡的风险。 通常,仓库建筑物在其自身的重量下逐渐变形,并进行一些地震,以使力量在很长一段时间内稳定下来。 因此,低刚性壁可以维持现有的力量。 可以通过将墙从框架上移动或在梁上使墙壁移动,可以削弱墙壁的有效性。 钢板加固和较短的壁长可以赋予低尺度和高凹度特征。 从现有框架中插入的墙壁,整个框架中的建筑物都像是一个阻尼器。 (takuya asamitsu / asamitsu结构设计)。
项目设计:aoyagidesign
项目面积: 202.2501349m²
项目年份:2022
项目摄影:TOREAL
供应商: ENDO Lighting Corporation
首席建筑师:Hajime Aoyagi, Ayaka Aoyagi
结构设计:Asamitsu, Takuya Asamitsu
设计协助:Kei Miyamoto
3D建模:Tsubasa Sano
环境设计:Masamichi Oura
总承包商: Nagato-Kensetsu
项目成市: Takayama
项目国家: Japan
设计师:aoyagidesign
语言:英语
客服
消息
收藏
下载
最近


















