查看完整案例

收藏

下载
1882年和1896年的全俄罗斯展览曾在Nizhny Novgorod的Strelka举办,展览中心建筑中的金属展亭经过改造,重新向公众开放。现在,这些展亭容纳了一个426座的演出厅和画廊,新空间消隐在历史结构之下。
▽建筑外观©ILYA IVANOV
Nizhny Novgorod的Strelka位于奥卡河和伏尔加河的交汇点。今天,人们在这里可以看到城市和河流全景,包括附近的Alexander Nevsky大教堂和Nizhny Novgorod体育馆。
▽远景鸟瞰©SPEECH
▽从展馆看向河流©SPEECH
▽从展馆看向城市和教堂©SPEECH
十九世纪,这里是Sibirskaya和Peterburgskaya码头的所在地,上千名商人会在此卸下他们通过河流买入的货物,当他们来参加知名的Nizhegorodsky集市时尤其繁盛。1896年,该市举办了第十六届全俄罗斯工业和艺术博览会,刚即位的沙皇尼古拉二世和他的妻子层来此参观。为了此次盛会共建造了近200座展馆,这些建筑令人大开眼界。其中最引人注目的是由工程师G.E. Pauker和I.A. Vyshnegradsky设计的主展馆。严格来说,他们翻新了自己在1882年莫斯科第十五届全俄罗斯工业和艺术博览会中的设计。原建筑的结构也被重新利用。莫斯科博览会结束后,展厅被拆除,其框架被重新使用在了Nizhny Novgorod的展会中。
▽项目鸟瞰©SPEECH
Nizhny Novgorod的博览会结束后,这些展馆被卖给了俄罗斯的不同城市,未来可以再次利用。作为中央展馆一部分的镂空结构被卖Sibirskaya码头买下,用作建造仓库的框架。一开始这样的结构共有四个,最后仅剩两个保留下来。苏联时期,该地是一座码头,也是一个封锁区。码头周边的保密性是长期以来没有人发现这一隐藏在朴素砖墙下的建筑瑰宝的原因之一。
▽从草坪看向展馆©ILYA IVANOV
▽展馆之间通向河流的道路©ILYA IVANOV
2015年,当城市开始为世界杯做准备的时候,这些金属结构被发现。曾经围在结构外面的砖墙和石板屋面被移除。2019年,INTERVALS、Strelka和Zharko庆典,以及Innovatsiya颁奖典礼等活动在这些独特的镂空结构下举办。它们获得了地区重要文化遗产的身份。2020年,专业机构采取了一系列措施,以保护和保留结构中的元素。除去老旧的涂层和灰尘后,专家在金属上覆盖了三层清漆和一层高科技抗霜漆,保护材料免受腐蚀。仓库的颜色是另一项研究议题,最终敲定为革命前结构自然的深金属色。
▽暗色金属框架©SPEECH
▽金属框架近景©SPEECH
▽节点细部©ILYA IVANOV
适应性再利用的设计由SPEECH负责。最开始在2019年的时候,由Sergei Tchoban带领的设计团队开发了一套整合的设计方案,计划将整个Strelka地区开发成为一座城市范围的文化聚落。该整体规划的主要目标是将Strelka作为城市结构的一部分设计开发,在这里建造全新的文化中心,吸引公众前来。而设计的起点正是为仓库寻找可能的利用方案。
▽市民使用的公共空间©ILYA IVANOV
保护和适应性改造已有的仓库是设计的首要任务,也是该项目目前为止唯一实行的阶段。上文已经提过,历史结构保留了原有的状态,其中建造的展馆重复相同的空间形式。展馆外覆盖打磨光滑的不锈钢板,视觉上消融在了空间之中。
▽不锈钢板覆盖的展馆消融在环境中©ILYA IVANOV
▽展馆表面反射周边环境和历史结构©ILYA IVANOV
▽表面反射细部©ILYA IVANOV
历史上,每个仓库包含一大一小两个具有标志性几何形态的空间,结构也呈现为两个部分。这些由金属围合的内部空间通过带有加热设备的玻璃门廊连接。门廊上覆盖透明屋顶,使得位于封闭空间内部的游客也可以看到外侧的镂空结构。每个展馆的主入口在外立面上相对而设。
▽仓库由一大一小两部分组成©ILYA IVANOV
▽立面上的入口©ILYA IVANOV
▽明亮的门廊©SPEECH
▽透过透明屋顶可以看到外侧的历史结构©SPEECH
▽透明顶棚和结构形成的光影效果©SPEECH
作为仓库的新功能,一栋建筑里设置了供文化活动和展览使用的展馆;另一栋建筑更大,且离水边更近,地上共有三层,其中容纳了一个608座的演出厅。在仓库И中,门廊将游客引向不设开窗、没有自然光照的封闭展览空间,室内墙面被涂成了哑光白色;在仓库Ж中,充满阳光的门廊与覆盖着木纹吸声板的会议厅相连,明亮的门廊空间与氛围亲密舒适的大厅形成对比。
▽封闭展览空间©SPEECH
▽空间中的不同展览室©SPEECH
▽上层观展平台©SPEECH
▽木制吸音板覆盖的会议厅©SPEECH
必要的辅助设施,包括机械和服务空间、结款台、寄物处、餐柜和卫生间,都被设置在了每座仓库中较小的单元内。公共空间的内墙主要覆盖金属盒式面板。地面采用自流平水磨石,呈深浅不一的白色。
▽服务空间©SPEECH
新建的结构位于历史框架内侧,在平面上由外轮廓退界1.8米。较大展馆的屋顶与历史框架的距离超过50厘米,较小展馆的屋顶距离超过20厘米。外立面主要由4厘米厚的不锈钢板组成。水平和垂直覆板的节点与立面融合在了一起。地面层的全景开窗前部设置穿孔不锈钢薄片,使得自然光可以照入需要的空间。
▽新建建筑与历史结构直接脱开距离©ILYA IVANOV
▽展馆屋顶与历史结构©SPEECH
▽新旧结构之间的关系©ILYA IVANOV
▽历史框架在不锈钢面板上的反射©上:SPEECH,下:ILYA IVANOV
设计将历史结构和高效的夜间照明结合在了一起,加上内部新建的结构,共同成为了Strelka的新地标,成为了一个保护和整合历史工业建筑的样本。值得一提的是,项目的执行时间相当短,成本也十分合理。
▽夕阳下的展馆©ILYA IVANOV
▽夕阳将不锈钢立面染成红色©ILYA IVANOV
▽夜景鸟瞰©SPEECH
▽灯光设计©SPEECH
▽灯光与结构©SPEECH
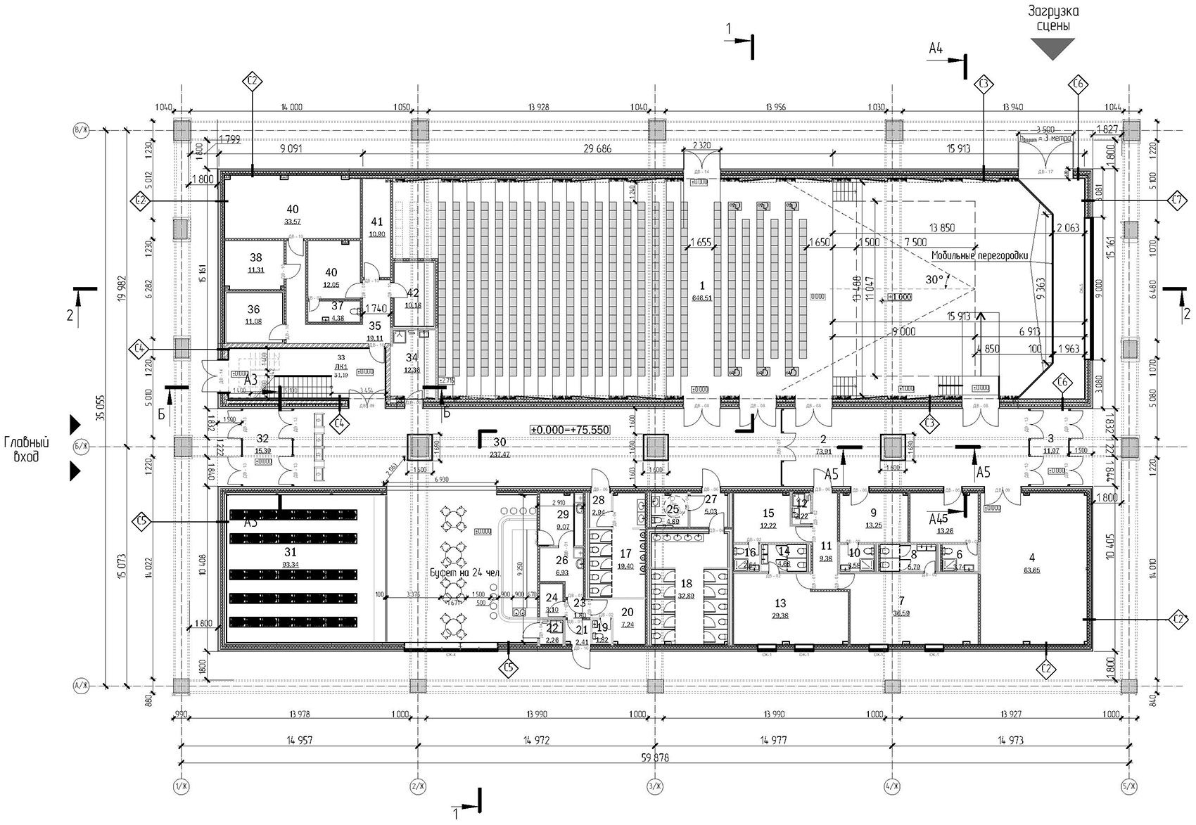
▽仓库Ж平面图©SPEECH
▽仓库И平面图©SPEECH
▽立面图©SPEECH
▽剖面图©SPEECH
客服
消息
收藏
下载
最近































































































































































































