查看完整案例

收藏

下载
办公室内设计, 北京, 中国
建筑设计:弘石设计
面积:17000 .2501349m²
项目年份:2021
摄影师: Xiaoguang Li
主创建筑师:李红庆 、霍兴海
设计团队:孙萌、雷春花
电气专业:师科峰
水暖专业:沈隽、赵宏峥、田林林
委托方:北京首奥置业有限公司
景观设计:北京清华同衡
施工方:北京首钢建设集团有限公司建筑装饰分公司
合作方:筑境设计
City:北京
Country:中国
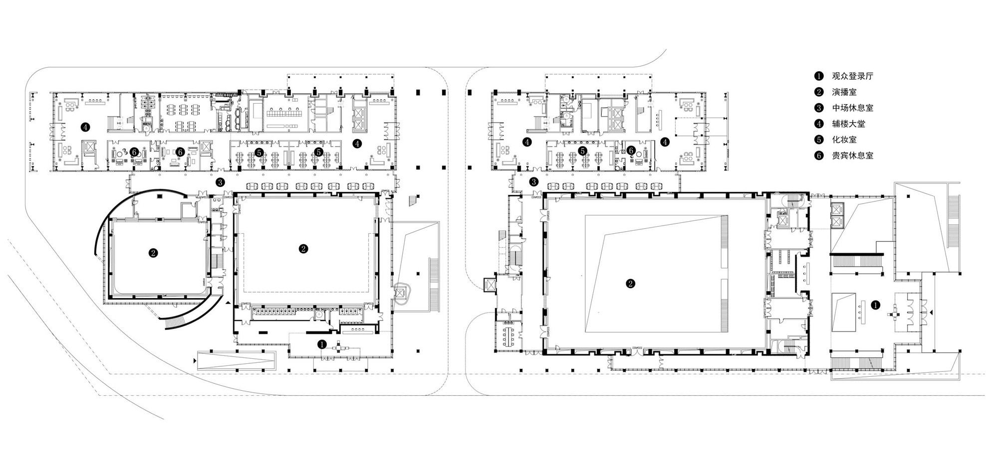
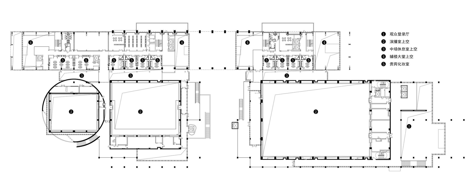
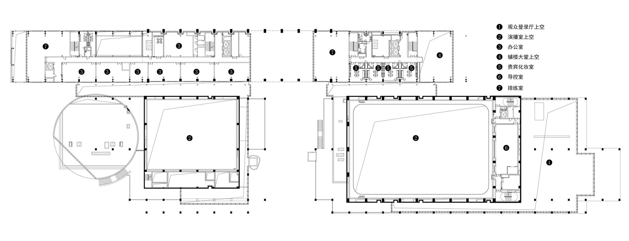
北京首钢制氧厂位于石景山首钢园区内群明湖南岸,其南区的3350演播厅,原为园区制氧厂的备件库,工业构建感保存完好。演播厅分为A、B两区,建筑面积超过1.7万平方米。改造之后由腾讯视频作为演艺中心及办公运营。
其中,A区改造项目建筑面积为8173平方米,地上四层,无地下,建筑高度为18.1米;B区改造项目建筑面积为8827平方米, 地上5层、地下1层,建筑高度30米,为新建的大中小3种规格的演播厅。中演播厅和大演播厅建筑面积分别为800平方米和1800平方米,均为高挑空的演播室;小演播厅建筑面积380平方米。
介入与轻介入
任何人在第一次进入首钢园区时,都会被这座曾经的工业巨兽所震撼,钢筋铁骨,气势恢宏。制氧厂亦保持极富感染力的厂房状态,建筑内部空间尺度多变,层次变化丰富,在粗犷浑厚的清水混凝土和大尺寸结构构件的加持下,空间具有极强的表现力,这种唯有大型厂房所展现出的空间张力尤为珍贵。
在此母题之下,弘石室内设计团队在“介入”与“如何介入”的博弈中,决定摒弃覆盖在设计表象无实际功效的饰层,转而以“轻介入,去装饰”为核心原则。将设计重点放在空间界面的整合上,以最少的包裹,最不易察觉的细节,以及最收敛的空间装饰,将空间本身作为刻画的重点,最大化还原空间本身的美感与质感。
表现与反表现
在当下设计实践中,“塑造新空间”或“赋予空间新的性格”是喜闻乐见的表现手法。面对首钢园如此原生态的工业感,设计团队清晰地认识到不应将观察重点放在围合界面的装饰上,而是要通过做加法的方式,实现做减法的效果,还原“工业风”最具魅力的质感。
亦如在最天然的食材面前,任何调味香料都显多余一般,还原其最纯粹的本质,是本项目设计的初衷。我们希望进入到室内空间的人,能够感受到曾经辉煌的工业时代,让纯粹的空间进行叙事。
A、B两区投入运营后是作为演艺中心使用。弘石团队在考量声学设计的同时,思考空间与舞台的相通之处——演艺的表现力不应源自舞台,而是演艺的人,空间亦然。我们希望打造人的舞台,而非舞台的人,将空间还给奋斗工作在这里的人。置身于此,目光所及之处,不是争相惹眼的跳脱,而是坚毅稳重的场景。
光影与时间
“我们的眼睛是为观看光线下的各种形体而生的,形体是美的,因为它们可以被清晰地鉴赏。”现代建筑大师勒·柯布西耶这样阐述光与建筑形体的关系。
作为建筑改造团队,筑境设计利用大量的玻璃幕墙让建筑在新和旧的对比中产生对话。作为室内设计团队,我们选择顺势而为,利用“光与影”为室内空间营造丰富的变化,让建筑成为捕捉光的容器。
我们希望让这座建筑的参与者能够感受到随着时间的变幻和季节的更替,光影所产生的不同表情;感受阳光倾泻在墙体肌理之上,随着光与影变化而产生对时间的重新认识;感受开敞大空间所带来的空气流动,唤起对曾经辉煌工业时代与建筑空间的崇敬心。
项目完工照片 | Finished Photos
设计师:HONGSHI DESIGN
语言:简体中文
翻译:Archdaily
客服
消息
收藏
下载
最近































