查看完整案例

收藏

下载
穿过这栋联排别墅,可以通向玫瑰花园和Egon Schiele在捷克的Český Krumlov工作室,本项目为整个Casarosa提供了丰富多彩的形象。该城市的休息区Český Krumlov最美丽的角落被列为联合国教科文组织的名单中。
The very location of the town house, through which the path leads to The Rose garden and to Egon Schiele’s studio in Český Krumlov, offers a variety of experiences from the entire stay in Casarosa. The rest zone of the city has some of the most beautiful views of the corners of Český Krumlov, which is on the UNESCO list.
▼主要空间概览,Overall view © Kubicek.Studio
室内设计的理念是为了打造一个能够缓解Český Krumlov饱和居住环境的方案。设计者最初的想法是希望能够在保证每间公寓内宽敞的路线的同时,能够在房屋原有的基础上进行改造。
The interior concept was created as an alternative to accommodation in saturated Český Krumlov. The initial intention was to follow the path of how to keep individual apartments spacious, but at the same time based on the original plan of the house.
▼餐厨空间,Kitchen and dining area © Kubicek.Studio
▼餐厨空间细部,Dining area © Kubicek.Studio
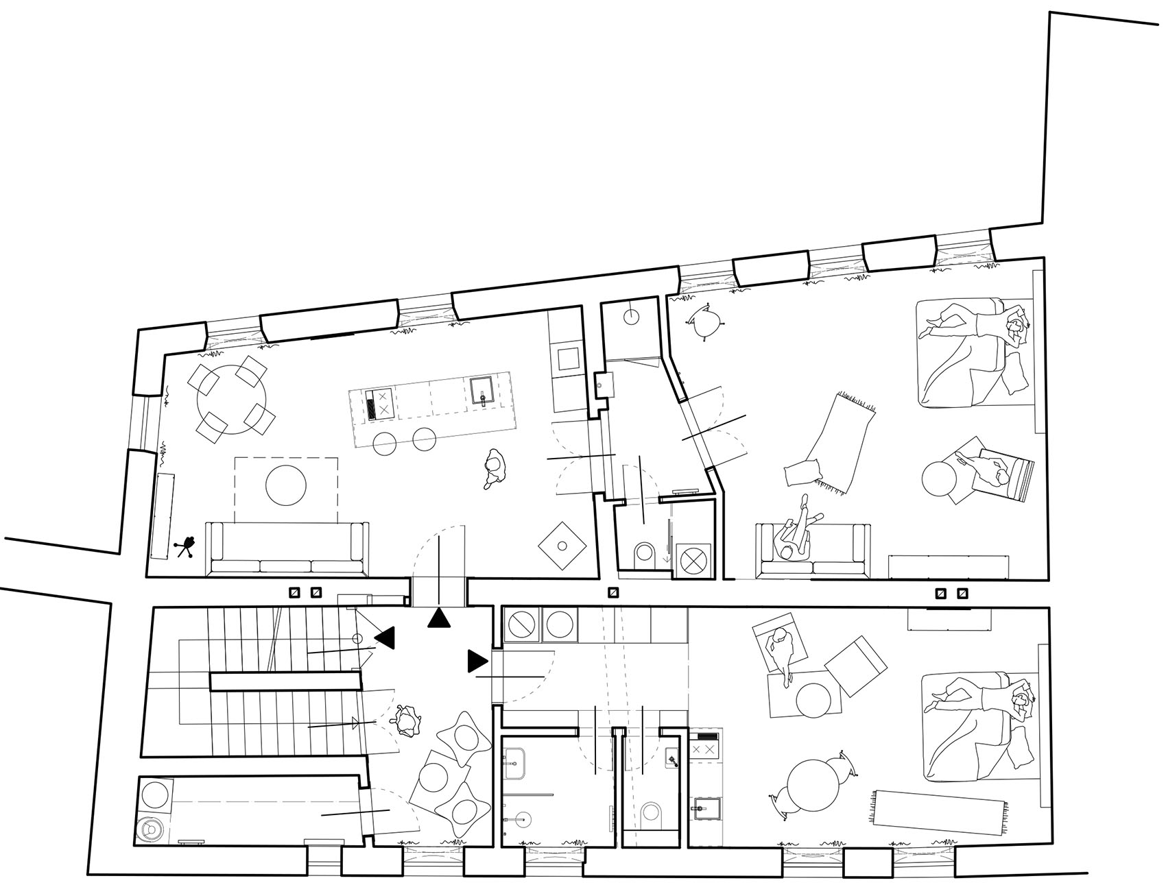
这五种非典型布局的公寓均提供了独特的空间,但同时也保留了整体的紧凑性。首层有两套房间,最小的一套适合个人或情侣居住;从另一套较大的公寓中能够看到安静的街道,并感受到当地的氛围。二层布置了一套环境很好的公寓和一套带有步入式浴室的大公寓房间,其中将社交空间和私密空间划分的很明确,室内原有的瓷砖炉灶也被保留了下来。屋顶层布置了一套最宽敞的房间,带有三间卧室和三间浴室,正中央是一个阁楼式公共区域,从这里能够眺望到圣山Křížová hora和城市屋顶的景色。
Each of the five atypical apartments provides a unique space, but at the same time the compactness of the entire house is preserved. On the ground floor there are two apartments, the smallest one for individuals or couples, and the second larger one with a view of a quiet street, from which you can feel local atmosphere. On the first floor there is also one ambient apartment and another large one with a walk-through bathroom, which separates the social and quiet areas. The original tiled stove has also been preserved here. Under the roof there is the most spacious apartment with three rooms and three bathrooms, where in the very center is a loft-style common area with beautiful views of holy mountain Křížová hora and the rooftops of the city.
▼起居空间,Living space © Kubicek.Studio
公寓内的设备和家具都遵循了高标准,充分考虑到了房间的不同布局、细节和视野。室内设计采用了简单的手法,强调了空间中家具的材质和形态。
The equipment and furnishings of the apartments are of a high standard, taking into account the different layouts of the space, details, and views. However, the interior design is designed as simply as possible with an emphasis on the material and morphology of the furniture in the space.
▼卧室,Bedroom © Kubicek.Studio
▼卧室细部,Bedroom details © Kubicek.Studio
在改造重建的过程中,设计者将墙壁原始的样貌展现出来,并对其覆层在当地进行了一定的修复和修补,以满足统一的柔和色调。室内绝大数开局和灯具都来自于各种古董集市——例如,Mito椅子是1970年由Carlo Bartoli为Tisettanta品牌设计的,银色的椅子和著名的Tulip桌椅是1980 年由Ycami Italia打造。
During the reconstruction, interesting layers of the original wall coverings were revealed, which were fixed and repaired locally. The starting point is a palette of colours in pastel shades. The vast majority of furniture and lighting comes from various antiques and bazaars – ex. the Mito chair was designed by Carlo Bartoli for the Tisettanta brand, 1970, the silver subtle chairs are Ycami Italia from 1980, or the well-known Tulip table and chairs.
▼浴室,Bathroom © Kubicek.Studio
这些复古家具与其它中性色调开局、不锈钢厨房装饰相得益彰,使空间熠熠生辉;除此之外,室内还饰有银色和玻璃的配饰。Casarosa公寓所有房间的设计都秉持了这一理念。Cesky Krumlov充满了氛围感、神秘、历史和艺术气息,这些特点也体现在该项目中。设计者突出了项目细节,但又保证了室内的整洁和宽敞,能够使居住者享受更加宁静的氛围,并在这里体会到当地一年四季的美丽。
Vintage furniture is complemented by basic pieces of seating furniture in neutral colours, kitchen units in stainless steel, which give the space a shine. They are followed by silver and glass accessories. All Casarosa apartments are designed in this spirit. Cesky Krumlov is full of atmosphere, mystery, history, art, and this is also reflected in the entire project. Let the details stand out, but do not overwhelm the spaces. Maintain the cleanliness and generosity of the interiors, which will allow visitors to quiet down more and be inspired by the beauty of the place in every season.
▼室内装饰,Decoration © Kubicek.Studio
室内还展示了一些艺术家的作品,但业主计划在未来对此进行调整。项目紧邻玫瑰花园Eugenio Percossi当前的展览主题为玫瑰、玫瑰的美丽和消亡这一主题。
The interior also includes works by artists, which the owners plan to change in the future. Following on from the neighbouring Rose garden, the current exhibition of Eugenio Percossi is dedicated to the theme of roses, their beauty and demise.
▼布局平面图,layout © Studio Denisa Strmiskova
Project: Boutique apartments Casarosa
Area: 350 m2
Year: 2022 / 2024
Location: Plešivecká 98, Český Krumlov, Česká republika
Type: Interior design
Studio: Studio Denisa Strmiskova
Author: Denisa Kubíčková Strmisková
Co-author: Samuel Lövy, Kristýna Hodanová, Jan Jaroš, Zuzana Lorenzová, Kaja Semmler
Studio address: Bořivojova 54, Prague 3, 130 00, Czech republic
Email:
Web:
Social media:
Client: private
Client’s web:
Project design: Projectica s.r.o, , info@projectica.cz
Graphic design: Studio Kosatko, , info@studiokosatko.cz
Photographer: Kubicek.Studio, , josef@kubicek.studio
客服
消息
收藏
下载
最近





























