查看完整案例

收藏

下载
工厂, 中国
建筑师:迹•建筑事务所(TAO)
面积:14629 .2501349m²
项目年份:2013
摄影师: 苏圣亮
主持建筑师:华黎
设计团队:Elisabet Aguilar Palau、张婕、诸荔晶、赖尔逊(驻场建筑师)、Martino Aviles、姜楠、施蔚闻、连俊钦
业主:福建武夷山旅游发展股份有限公司
Country:中国
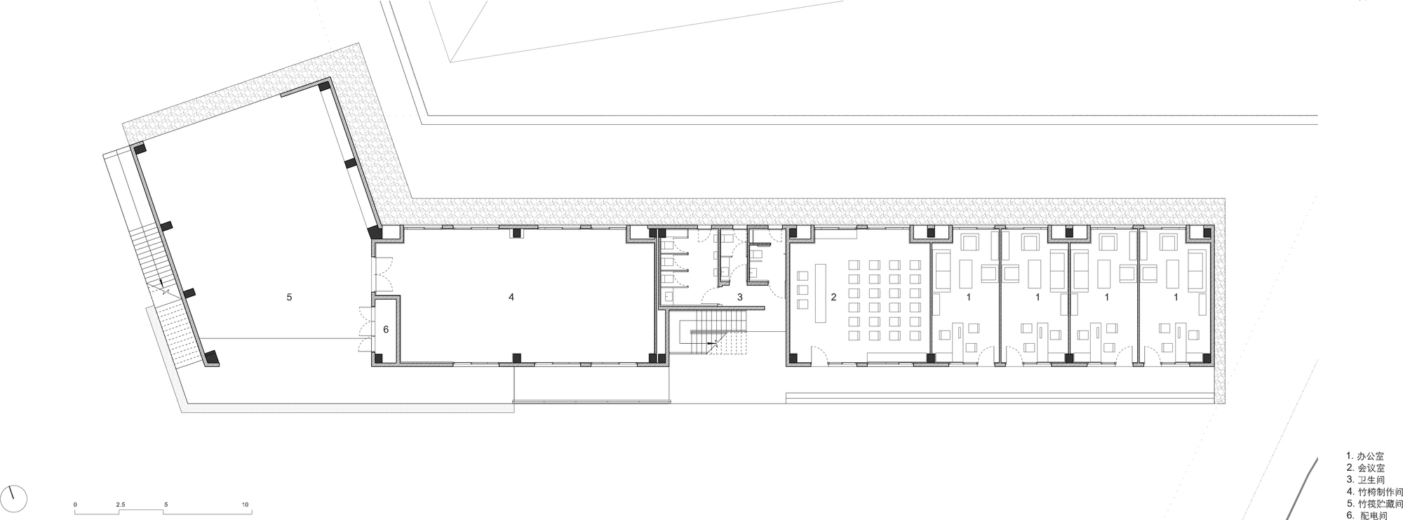
武夷山竹筏育制场是武夷山九曲溪旅游漂流用竹排的储存及制作工厂,项目位于武夷山星村镇附近乡野中的一块台地上,由竹子储存仓库(未建成),竹排制作车间,办公及宿舍楼这三栋建筑及其围合的庭院组成。每年冬天这里要采集晾晒约22000根毛竹,之后储存于竹子仓库,用于每年1800张竹排的制造。
建筑的布局与朝向结合地形、风向考虑。制作车间分为两组,内部为大跨度空间,横向满足毛竹9米长烧制时移动的需要,长向则按照火烧竹尾、竹头和绑扎的工序,形成三到四组生产单元。通过顶部开向北侧的侧天窗采光,以避免眩光。
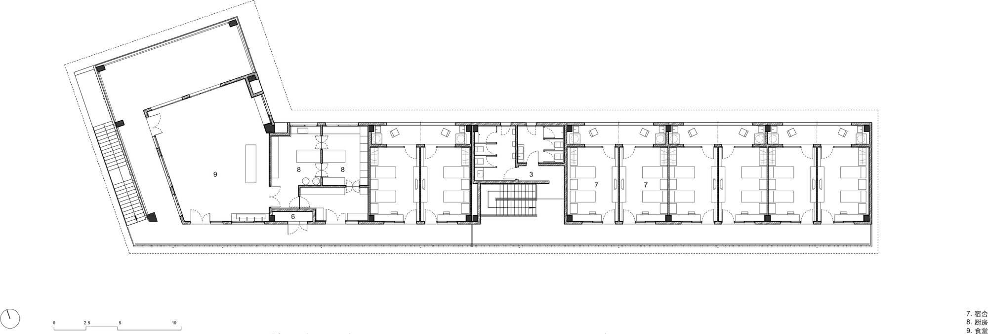
与制作区相联系的小尺度空间形成休息、储藏、卫生间、庭院等服务功能。建筑大部分采用坡屋顶以利于排雨和屋顶隔热。办公宿舍楼采用外廊式布局,一层为办公,二层为宿舍、食堂,外廊采用竹子形成遮阳格栅,利于隔热通风。
回应气候和项目的功能需求,将当地非常普及的日常性材料与工艺在设计中进行有针对性的运用。建筑主体采用素混凝土结构和混凝土砌块外墙(厂房建筑没有保温要求,外墙局部将空心砌块横放砌筑使其满足通风需要),屋面采用水泥瓦,竹、木作为遮阳、门窗、扶手等元素出现。所用材料和工艺均来自当地,且都秉持相同的原则——材料以不作过多表面处理的方式出现,呈现自身的特点。
项目的工业厂房性质决定了建筑摒弃形式上任何的多余,而在建构上采用最基本的元素,并尽可能呈现其构造逻辑。在营造工业建筑朴素美学的同时获得经济性。
项目完工照片 | Finished Photos
设计师:迹•建筑事务所(TAO)
分类:工厂
语言:简体中文
客服
消息
收藏
下载
最近



































































