查看完整案例

收藏

下载
工厂, 更新项目, 上海, 中国
建筑师:ATAH介景建筑
面积:5000 .2501349m²
项目年份:2020
摄影师: 赵奕龙
主创建筑师:徐光, 王丹丹
设计团队:程瀛,孙田甜,何凡,苏晨,杨朕钦
结构顾问:郑伟伟
景观顾问:李沿海
灯光顾问:李圆圆
施工单位:江苏锦城工程建设有限公司
City:上海
Country:中国
设计师描述 | Designer description:
2018年的夏秋之际,我们参与了嘉定区曹安公路沿线的一系列工业项目的设计,其中斯迈普电梯厂改造采用轻质化的更新策略,于两年后竣工落地。上海长江斯迈普电梯厂创立于上世纪八十年代,素有电梯行业的“黄埔军校”之称。千禧年后,通过引进德国生产工艺和生产规范,上海生产的斯迈普电梯开始返销德国,并畅销海内外。从产品到企业文化,德系制造业的工匠传承精神正逐渐渗透为斯迈普电梯厂的基因特征。
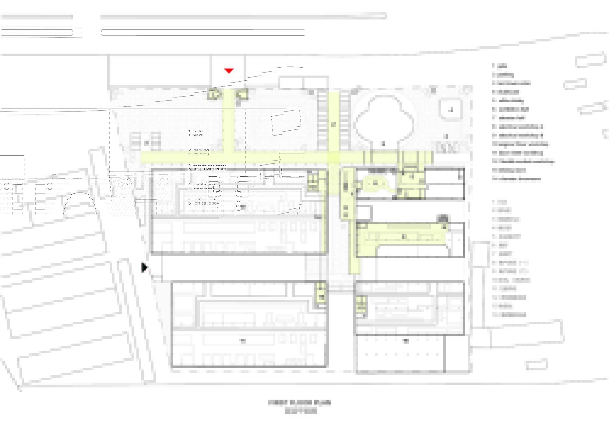
沿曹安公路一路向西,现代化的城市街景风貌便逐渐褪去。在低密度的天际线下,即使从数公里之外,也能看到厂区标志性的百米电梯高塔,其紫红色的圆柱体量被菱形金属网包裹,在夕阳下滚动着霓虹。在改造之前,由于大幅的街道退让,低矮深灰的厂房主体被遮掩在沿街绿化之后。这使得即使路过,人们却难以意识到厂区的存在。而场地内混杂的流线秩序与独立高耸的电梯塔则加重了这种显隐之间的冲突。站在改造的起点不难发现:企业急迫迭代的雄心和繁杂生产之间的摩擦并置而生。而这也为设计提供了明确的任务与契机。在确保功能布局高效清晰的前提下,更新的空间形态应能使厂区摆脱其在地块内的模糊性,重新获得丰富的层次以及鲜活的企业形象。
在重组流线的策略中,新秩序的建立主要基于两点动机。对于园区内部,将功能空间和到达次序予以清晰的界定,并通过与线性展示空间并置、与点状办公空间结合,使重工制造过程成为活跃空间的氛围核心。在城市尺度,改造后的厂区沿街界面兼具古典的序列感和现代的形态质感。由半圆为母题生发出的室外廊架体系赋予厂区灵活而优雅的印象,同时也是电梯作为交通载体与建筑内在关系的生动诠释:线性,快捷,长驱直入。
园区的外部空间调整策略提取现有厂房的柱跨逻辑,通过钢构的单元的组合,构成了有覆盖的线性空间和顶部开放的节点空间,以及局部变化的门廊空间。当访客驾车从正入口的中轴线上驶入,虚实结合的顶部交替呈现光明和阴影,秩序感也在细腻的构造层面得到表达。转入东西向长廊空间之后,15跨的连续拱将访客带往东侧的办公展示区大厅。由于园区两处办公楼的入口均在厂区东侧,但相对错开,设计通过四跨变体单元,配以四组近人尺度的定制吊灯,定义了入口外廊的仪式空间。
外廊的基本单元由深色方正的格构与悬浮的拱形穿孔铝板构成,两翼水平向的薄板集合了灯光和排水,并为步行空间提供了一定的顶部遮盖。顶部渐变发散的细密纹理透过率约60%,在活跃光影的同时,在长轴方向形成视线的扰动,进一步丰富人们在拱下行走时的空间感知。
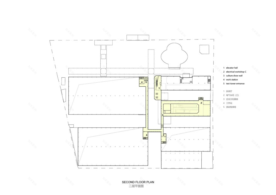
在对原有的独立展览区域进行一定的界面调整后,从自动扶梯厅开始,通过增加沿厂房外立面环绕爬升的悬浮连廊突破传统参观路径,而其自身也成为建筑的新展示面。在悬浮空中的游廊内侧,参观者可以于行进中观摩工厂各部门生产全貌,而在靠近庭院的外侧,则可以感受院落及建筑体量间积极的空间联系。舒缓的水平向流线在转折的节点被放大为一层有对外采光的工人休息区和二层可对内观察的管理区。建立环廊的同时,外立面采用3mm厚深色铝单板统一高度,重塑了环绕庭院的厂房界面,明确了体块交接差异,从而赋予了内院天际线明确的体量叠加关系。
作为参观流线的有力收尾,环廊的终点处设立了业主提出增设的24米高试验塔(待建)。参观者将通过此处,体验从其底部光线幽暗的空间被提升至明亮的塔顶,并再次得以一览厂区全貌。
上海长江斯迈普电梯厂区改造在预算和施工时间双严控的前提下,没有采用大拆大建的建设模式,而是采取单元化,轻质化的加建方式,辅以景观手段处理外部空间。
作为整改大于重建的工业厂房更新项目,改建的作用绝不仅限于功能的完善,形象的美化,而在于能提纯场所自身的特征,借由对空间格局的调动,达成感染人心的环境重塑。至此重建的秩序不再是一种解释和教化,而是使用者情绪的共鸣。
项目完工照片 | Finished Photos
zoom(this, this.src, 0, 0, 1)
设计师:ATAH介景建筑
分类:工厂
语言:简体中文
客服
消息
收藏
下载
最近






























