查看完整案例

收藏

下载
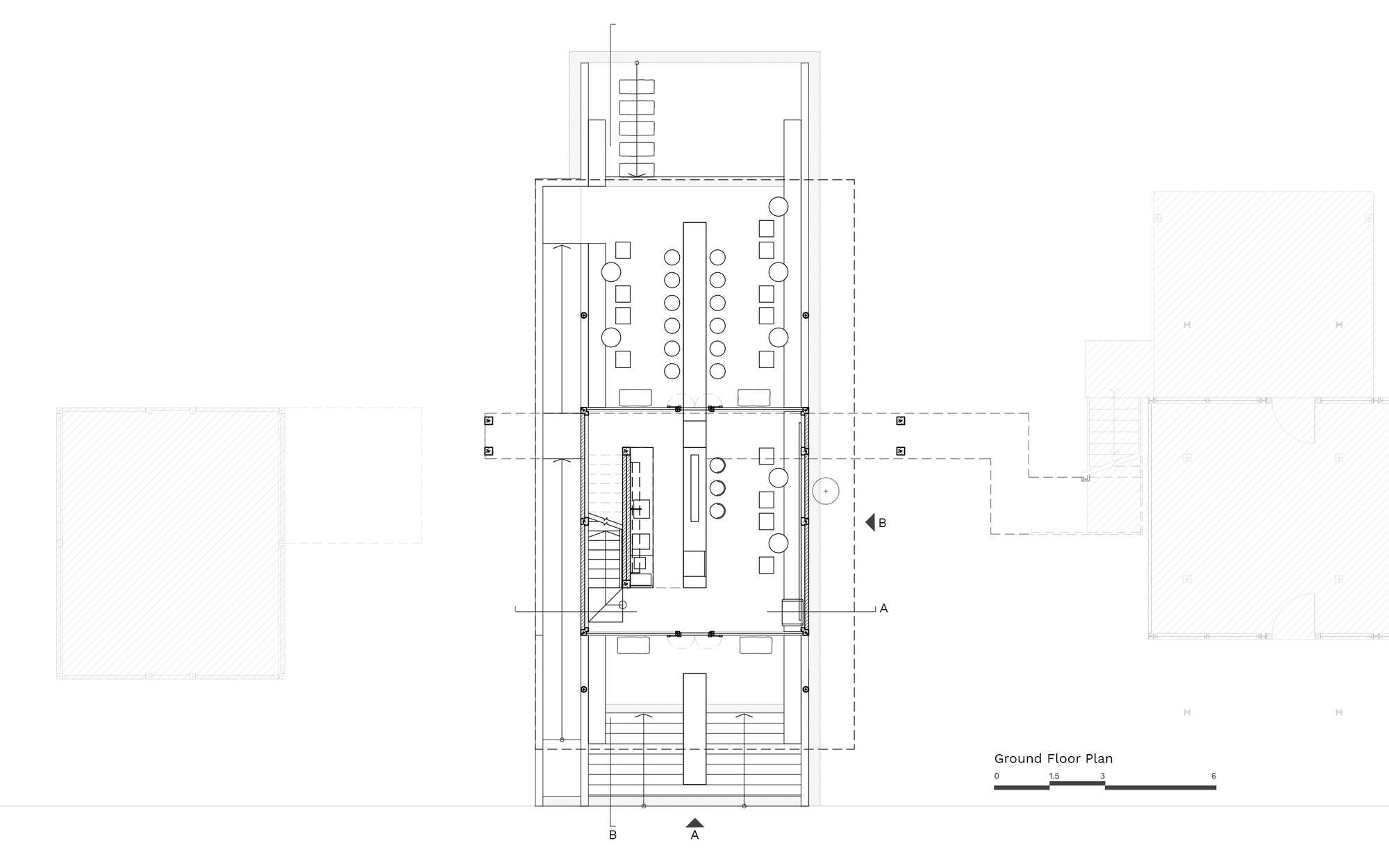
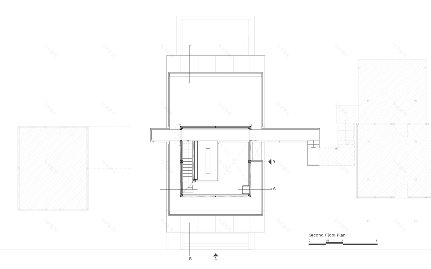
Kaomai 茶仓是 Kaomai Estate 1955 内的一个长期适应性改造项目,该项目是清迈一个存在多年的烟草加工厂庄园的更新项目。2018 年,Kaomai Estate 1955 被授予 2018 年联合国教科文组织亚太文化遗产保护奖的遗产背景类别的新设计奖。作为联合庄园内新商业项目增量计划的一部分,项目的位置得到了充分的尊重,同时又将周围的生态、景观和现有建筑联系在一起。因此,设计构想将 Kaomai 茶仓作为一个连接平台,将 Kaomai 大道、露天剧场和 Kaomai 咖啡馆在水平和垂直方向上连接起来。
设计团队遵循保护实践的原则,尊重遗产烟草仓在建筑尺寸、形式和材料方面的特殊性和真实性,包括重复的 6 x 6 米的平面类型。建筑师提出将新茶馆空间下沉的设计手法,突出了真实的建筑体量,并在地面和建筑项目的多层之间建立细微的联系。同时,这些多层创造了一种独特的饮茶文化体验。
茶仓被设计成在黑暗环境中熠熠闪光。照明功能的设计是隐蔽的,并强调了烟草烘干仓的价值和真实性。为了突出真实的砖块表面和独特的垂直内部空间,线性照明和光滑的发光筒灯与当地制作的混凝土、木材和深灰色结构巧妙地结合起来。鉴于以上提出的照明设计构想,烟草烘干仓的坚固性和新的开放空间的对比引入了沿着历史路线、现有建筑和自然遗产而产生的巧妙设计体验。
该设计采用了“重建技术”,这是一种基本已经损坏的现有结构,照过去的方式重建建筑形象的设计方法。施工团队测量并记录建筑材料的每一个细节,如砖、砂浆、空隙、柱子和梁。设计团队在尊重烟草烘干仓原貌的基础上,用现代化的钢材和钢筋混凝土的结构重建保留下来的砖块,通过结合保护实践和现代设计美学,为一个被忽视的工业类型注入新生的活力。
在“生态历史旅游”的框架下,Kaomai 茶仓是整体总体规划的另一个重要部分,它可以在经济、社会和环境方面随着时间的推移而成长。该项目再次鼓励游客欣赏保留下来的烟草烘干仓和丰富的自然环境的美感,并在现场了解当地的历史、本土植物和生态环境。该项目使烟草加工厂“重获新生”,再次成为社区的社交、经济中心,增强了现今当地的包容精神,并创造了社会可持续性。
文字描述由建筑师提供
译者:许正冉 Zhengran Xu
建筑师: PAVA architects
面积: 210.2501349m²
项目年份:2022
摄影师:Spaceshift Studio
主创建筑师:Varat Limwibul, Pacharapan Ratananakorn
景观设计:Varat Limwibul
室内建筑师: Pacharapan Ratananakorn
结构工程师:Nil Khamaoy
承包商:Nil Khamaoy and Kaomai Team
委托方:Kaomai Estate 1955
照明顾问:Vasapol Teravanapanth
建筑设计: PAVA architects
项目国家:泰国
设计师:PAVA architects
客服
消息
收藏
下载
最近






























