查看完整案例

收藏

下载
本次项目位于成都都江堰市,节目出品方和制作方选择了一个非常原生态的自然环境,场地具有单纯、质朴的初印象。该项目分为整体功能规划、餐厅改造设计和悠哉悠哉屋(家族大客厅)新建三个部分。区别于以往的设计项目,本项目要同时考虑节目录制和后期运营的不同需求。
整个设计过程中节目组参与度较高,因此我们和《忘不了农场》节目组通进行了非常频繁的探讨,包括最初的设计理念,呈现方式到最后的每种材料的选择,这样保证了项目的设计和落地实施都非常高效。场地生态环境非常好,高大且自由生长的树木、大片的草坪、充满意境的荷花池塘等。我们的改造策略是把老建筑处理的尽可能的简单,去掉多余的装饰与符号,从实用功能出发。
山谷餐厅
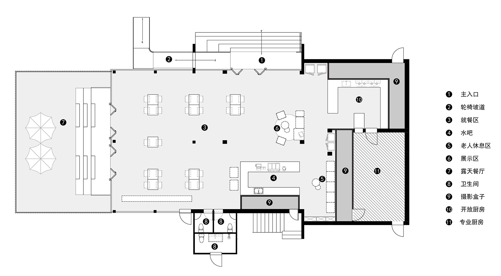
餐厅原建筑为两个独立的个体,设计风格不统一,入口隐蔽。面对目前患有认知障碍的患者大多脱离社会,封闭自我的现状,我们希望打破原建筑带给人们封闭的感受。打造一个开敞、明亮、温暖、适老化的空间。
设计时将两个原建筑间的隔墙打通,建筑间用玻璃连廊连接,增加玻璃阳光房和露台台阶,使餐厅层成为一个完整、通透、开放的空间。为了增强室内采光,大面积使用透明的玻璃幕墙和玻璃折叠门。
主入口增加台阶与轮椅坡道,使用防滑材料,增加安全性的同时使老年人进出更加方便。入口上方的曲面屋檐像在微笑着迎接人们的到来。建筑外立面延续原建筑挑檐元素,拆除入口处的遮挡,拐角处进行圆角处理。
暖白色的建筑表皮与温暖的木色充满整个空间,圆形的窗点缀其间,建筑变成了一个自由童趣而温暖的“家”,为老人和就餐的顾客留下温暖的回忆。
为了尽可能的减少对自然环境的破坏,设计团队只将场地周边遮挡了主入口通行的的树木花移植到了旁边,其他植物并未因建筑的改造受到影响。餐厅一层为公共区域,其中就餐区域包含了室内就餐区、阳光房就餐区和露台就餐区三部分。不同区域随着自然光照和四季景色的变化带来不同的就餐体验。设计团队希望患有认知障碍的老人可以走进社会,乐观开朗的生活。所以在设计时增加了更多的适老化设计,如台阶坡道的扶手、防滑材料的选择、插座在适宜的高度以避免老人过度弯腰和蹲起、设置老人休息区等。
二楼为嘉宾居住的房间,原有的开放式厨房和水吧台被保留了下来,活动衣柜与屏风用来分割空间,增加空间的私密性。
设计之初本想把落地窗改成门,这样当夜晚来临,嘉宾们可以站在玻璃房中看星星,但这个设想因为种种原因没有实现。外立面的圆窗在从室内向外看时起到了一定的框景作用,可以从二楼看到远处丛林的景色,整个空间温馨舒适。
“悠哉游哉屋”
《忘不了农场》除对外营业的餐厅外还需新建一个供明星嘉宾、老人闲暇时间放松、休闲、活动的场所,一个融合多种活动可能性的空间——忘不了家族的大客厅。在项目初期,通过与节目制作方忘不了农场节目组对场地环境反复考察及沟通后,确定忘不了家族大客厅的选址,既要与餐厅具有某种联系,同时要兼顾场地环境不被破坏。因此餐厅正对面的树林成为首选,在空间上与餐厅遥相呼应,位于树林之中,通透隐藏于自然。
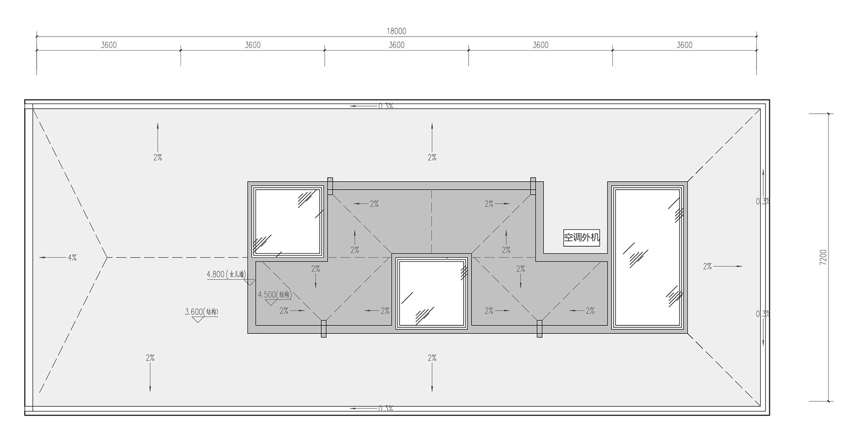
忘不了家族大客厅的设计灵感来源于“森林里的玻璃盒子”。我们希望人类在亲近自然的同时不破坏自然,它可以最大程度嵌入周围环境,但又不给周边环境带来负担。建筑屋顶设计了三个向上突出的天窗,不仅可以引自然光射入室内,增加室内的亮度,同时在突起的屋顶结构中暗藏空调设备,让室内顶部形成一个完整、干净的平面,使建筑更加简洁通透。
为了减小对地形的破坏,更好的隐于周围环境,建筑采用钢结构架空的形式,四周用通透的隐框玻璃幕墙围合在钢架最外侧,同时包裹一部分顶部结构,从而最大程度的消隐建筑钢架结构,使建筑更轻盈更通透。从餐厅望去,大客厅仿佛与树林融为一体,消隐于森林之中。
大客厅入口平台与室内地面有两步台阶的高差。每逢雨天,艺人们可以与老人们坐在门口听着雨打树叶的自然音律,俯瞰着餐厅,聊一聊 《忘不了农场》的趣事。建筑一侧是半室外的平台,推门出去,像是走进森林之中,被树木包围着,沐浴着透过树叶的阳光碎片,各处感官都沉浸于自然之中。
节目组提出室内需要一个开放的水吧区域,以便老人和明星嘉宾在家族活动时使用。室内的水吧区域在天窗的正下方,阳光沿窗洞洒下,树影随着时间的推移散落在水吧台的各个角落。同时,室内设备均隐藏在水吧台下,并使用智能无线开关,解决了在开敞无墙的空间无法穿线的问题,室内空间更加整洁开阔。
功能方面,《忘不了农场》节目组提出了明确的需求,室内空间要满足多种场景的使用,因此室内并没有设计过多的固定家具,仅两侧设有装饰格架作为摄影盒子使用(之后运营会拆除),这给明星嘉宾和老人在空间使用上留下了更多可能性。我们与节目组的反复沟通最终确定室内吊顶为条形凹槽设计采取与建筑秩序相统一排布的方式,以便更好的隐藏拍摄布灯,室内外建筑效果更加整体通透。
项目名称:《忘不了农场》:山谷餐厅与“悠哉游哉屋”
项目类型:建筑/改造/室内设计
业主方:《忘不了农场》节目组
建筑/室内设计公司:北京大观建筑设计
设计团队:申江海,张龙潇,薛达,胡芳婷,孙春迪
灯光顾问:光石照明设计
景观设计:果之燃艺术设计公司
软装设计:物禾木木
建筑面积:435.2501349㎡+129.6.2501349㎡
设计时间:2021年7月
建造时间:2021年7月-10月
摄影师:©ICYWORKS,《忘不了农场》节目组
撰文:胡芳婷,孙春迪,孙保宁
客服
消息
收藏
下载
最近


























































