查看完整案例

收藏

下载
Edificios Institucionales, Reconversión, Seoul, Corea del Sur
设计师:DaeWha Kang Design
年份:2015
摄影:Kyungsub Shin
Arquitecto Local:Chowon Partners Kim, Deuk Yong
Consultor De Sustentabilidad:Younha Rhee
Innovación:Michal Wojtkiewicz
área Del Sitio:320 m2
área Construida:157 m2
Área Total Construida:960 m2
Representante Del 客户:Lee, Young Hee
客户:Communique, Ltd (CEO - Jackie Myung Shin).
Ciudad:Seoul
Pais:Corea del Sur
设计师描述 | Designer description:
DaeWha Kang Design ha emprendido una renovación y restauración completa de un edificio de oficinas de 1980, transformando la envolvente del edificio para cumplir con las normas medioambientales actuales y creando una declaración visual audaz dentro de un barrio antiguo y deteriorado. Un aparcamiento antes descuidado bajo el edificio se ha transformado en un espacio cristalino de acero inoxidable, lleno de luz y un juego audaz de reflexiones. La nueva Sede Communique en Yongsan, Seúl albergará una firma de relaciones públicas con cincuenta personas, así como una cafetería en la planta baja y un espacio para eventos en la azotea con la intención de dar nueva vida a sus alrededores.
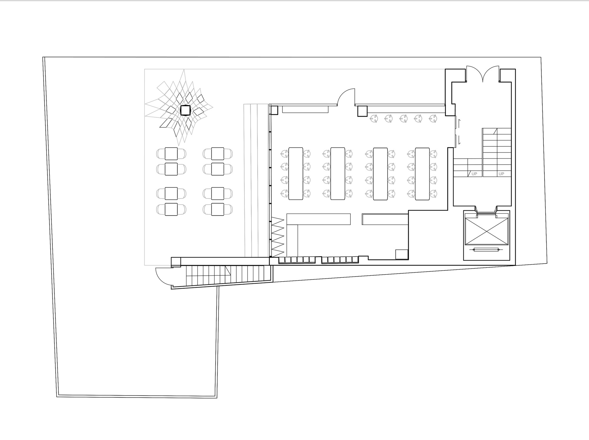
El desafío de diseño del café al aire libre era crear un lugar acogedor y memorable a pesar de la baja altura de las regulaciones locales existentes que requerían mantener el voladizo en profundidad. La solución de revestir el techo con paneles de acero inoxidable con espejos duplica la altura percibida del espacio, mientras que una columna central existente proporciona un punto focal escultórico. Se utilizó diseño de vanguardia y tecnología de fabricación para proporcionar una lógica de construcción de sonido a las formas expresivas; el plegado de los paneles y la gradación de su tamaño están impulsados por las exigencias de la curvatura geométrica y la economía del material.
La misma cuadrícula distorsionada genera la panelisación del granito de la fachada principal. En este caso, los paneles de granito planos reducen su tamaño hacia la parte más visible del edificio, también proporcionan una matriz dinámica que tiene una sólida justificación ambiental. Mientras la fachada oeste se convierte en la larga fachada norte, la distorsión crea ventanas corridas de diferentes alturas, con menos acristalamiento en la parte superior para minimizar los efectos de deslumbramiento en el interior y más acristalamiento hacia el fondo para proporcionar iluminación natural donde más se necesita. El diseño algorítmico se utilizó para crear redes de subdivisión secundarias dentro del patrón de granito, lo que facilita el abastecimiento de materiales y la instalación, además de ahorrar costes en gran medida.
El concepto interior se organiza en torno al principio de mejorar el bienestar del empleado y la productividad a través del diseño. Mientras se trabajaba dentro de las limitaciones de una estructura existente, el diseño ofrece tanto salas de reuniones tradicionales como unipersonales del estilo cabina-teléfono para ayudar a los empleados a manejar las interrupciones de ruido y llamadas telefónicas sensibles. Los espacios de colaboración creativa permiten el trabajo informal y la reunión dentro del área principal de trabajo.
La investigación académica reciente ha vinculado las mejoras en la salud y bienestar de los empleados con el acceso a vistas de la naturaleza dentro del área de trabajo. Los sistemas de almacenamiento de los espacios de oficina están integrados con lirios Spathiphyllum, probados por científicos de la NASA para limpiar el aire de cinco de las toxinas gaseosos interiores más comunes. Este enfoque integrado a la biofilia hace de las plantas parte del espacio, y también crea algunas pequeñas áreas para el descanso y la contemplación dentro de la jornada de trabajo. La calidad del aire es aún mayor por la supresión del cielo falso existentes aumentando el volumen total de aire en el espacio. Simulaciones dinámicas computacionales de fluidos se utilizaron para orientar la apertura de las ventanas para crear un flujo circular sutil pero dinámico de aire fresco a través de las oficinas. El arquitecto y el cliente trabajaron juntos para hacer estudios comparativos de calidad del aire, así como el análisis estadístico de ausentismo de los empleados en las oficinas anteriores y nuevas.
El acristalamiento de la cafetería en la planta baja está diseñado con el máximo compromiso con el exterior. Las fachadas de la calle principal son de vidrio de cielo a suelo, mientras que las puertas plegables se abren directamente hacia la terraza protegida bajo el alero de espejo. El sótano alberga un espacio multifuncional que puede ser utilizado por los empleados para reuniones, por los visitantes de la cafetería, y contratado por pequeñas empresas locales que necesiten espacios para reuniones esporádicas o temporales. La terraza está diseñada con un guiño sutil a la tipología patio hoerang coreano, con una cubierta de madera meditativa que rodea un patio central pavimentado con grava.
La Sede Communique ha sido galardonada con el Premio del Ministerio de Corea de Renovación de Tierra al mejor proyecto de reutilización y adaptación en Corea, 2015, y también con el Premio de Corea para el Diseño Ambiental.
项目完工照片 | Finished Photos
设计师:DaeWha Kang Design
分类:Reconversión
语言:西班牙语
客服
消息
收藏
下载
最近





















