查看完整案例

收藏

下载
项目名称 ——三层自建房
项目地点 ——河南省焦作市
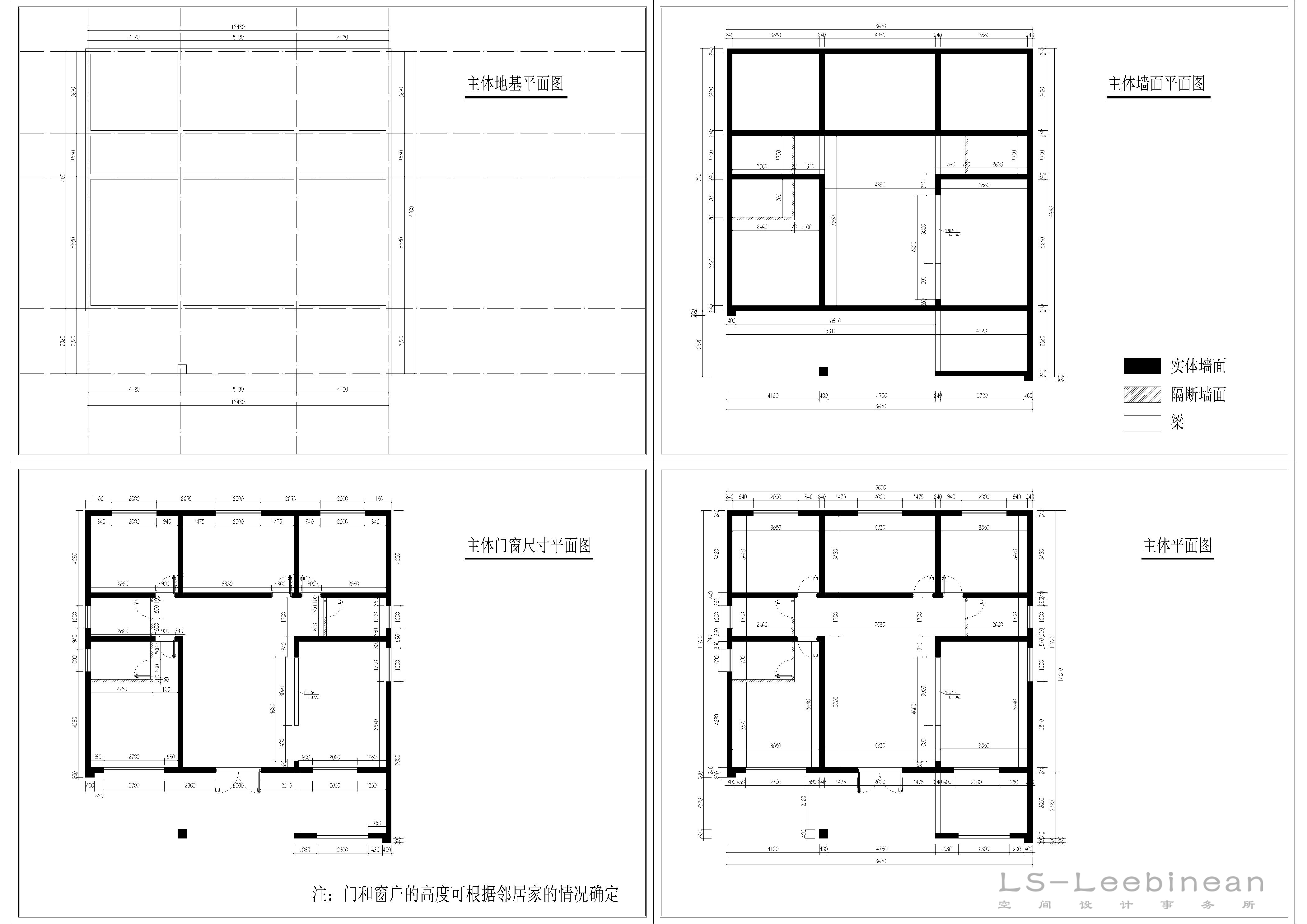
项目面积 ——主体占地面积170m²
设计单位 ——LS空间设计事务所
设 计 师 ——Leebinean
设计风格 ——现代简约
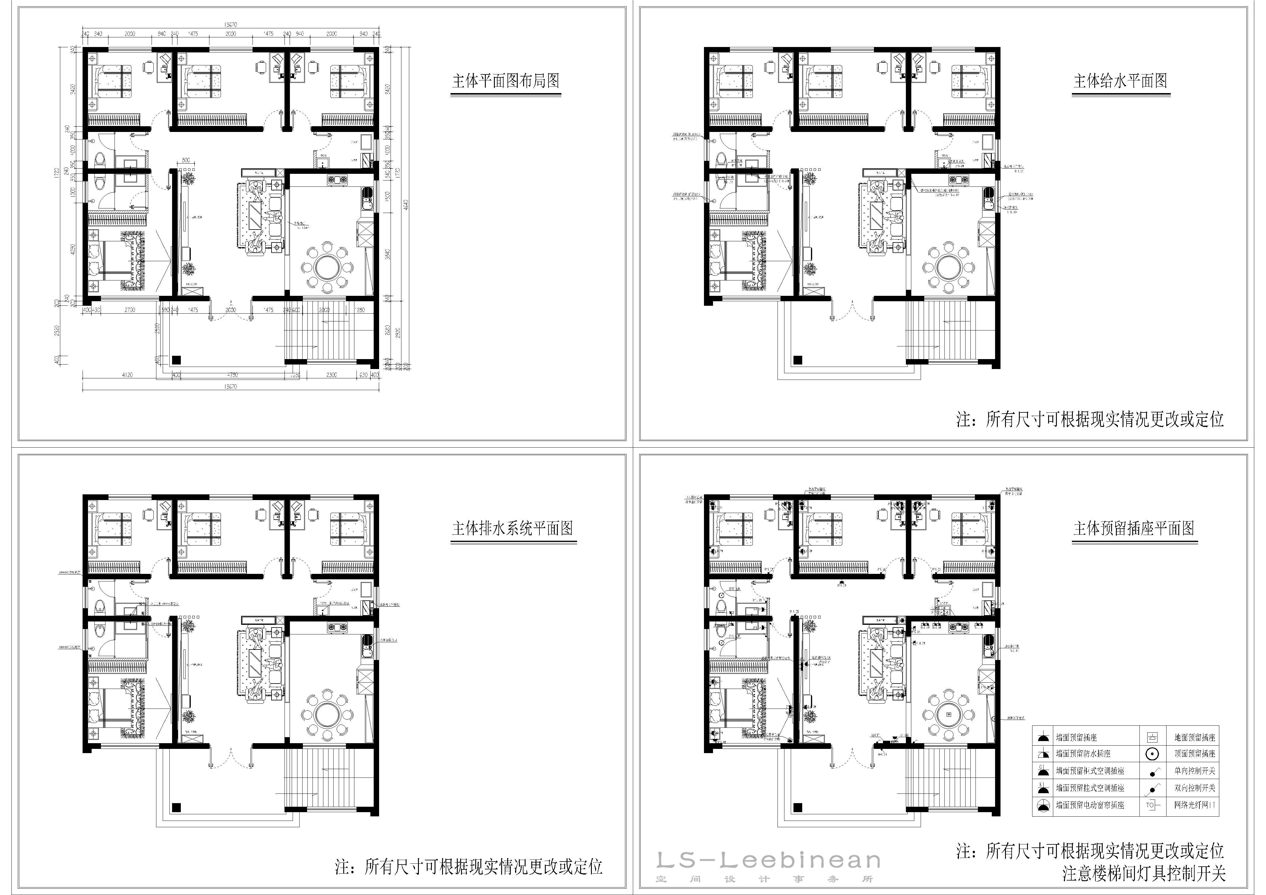
设计要求:一家5口人,需要单层4个卧室,功能区齐全。
家,是心灵的港湾,也是生活的舞台。在这里,我们为您呈现一款四室两厅的现代简约家装设计,简约而不简单,每一处细节都透露出对生活的热爱与追求。
客厅:时尚与舒适的完美融合
走进家门,宽敞的客厅映入眼帘。现代简约的家具摆放,让人眼前一亮。浅色调的沙发搭配简约的茶几,营造出一种低调而奢华的氛围。
餐厅:用餐时光,品味生活
采用开放式餐厅,餐厅区域与客厅紧密相连,整体色调和谐统一。简约的餐桌椅设计,线条流畅,极具现代感。
这款四室两厅的现代简约自建房设计,既满足了生活的需求与舒适感,又展现出简约而不简单的美感。每一处细节都经过精心打磨与挑选,让家成为您心灵的归宿与生活的舞台。在这里,您可以尽情享受与家人共度的美好时光,品味生活的每一刻。
客服
消息
收藏
下载
最近












