查看完整案例

收藏

下载
在鹿特丹附近的堤坝和小岛的开阔圩田景观中,Terphouse 位于景观中的土墩上,是一个坚固的结构。 用于使房屋可持续发展并为更极端的气候条件做好准备的方法成为设计的主要元素,最明显的是具有突出天井的特色天篷和地下层。
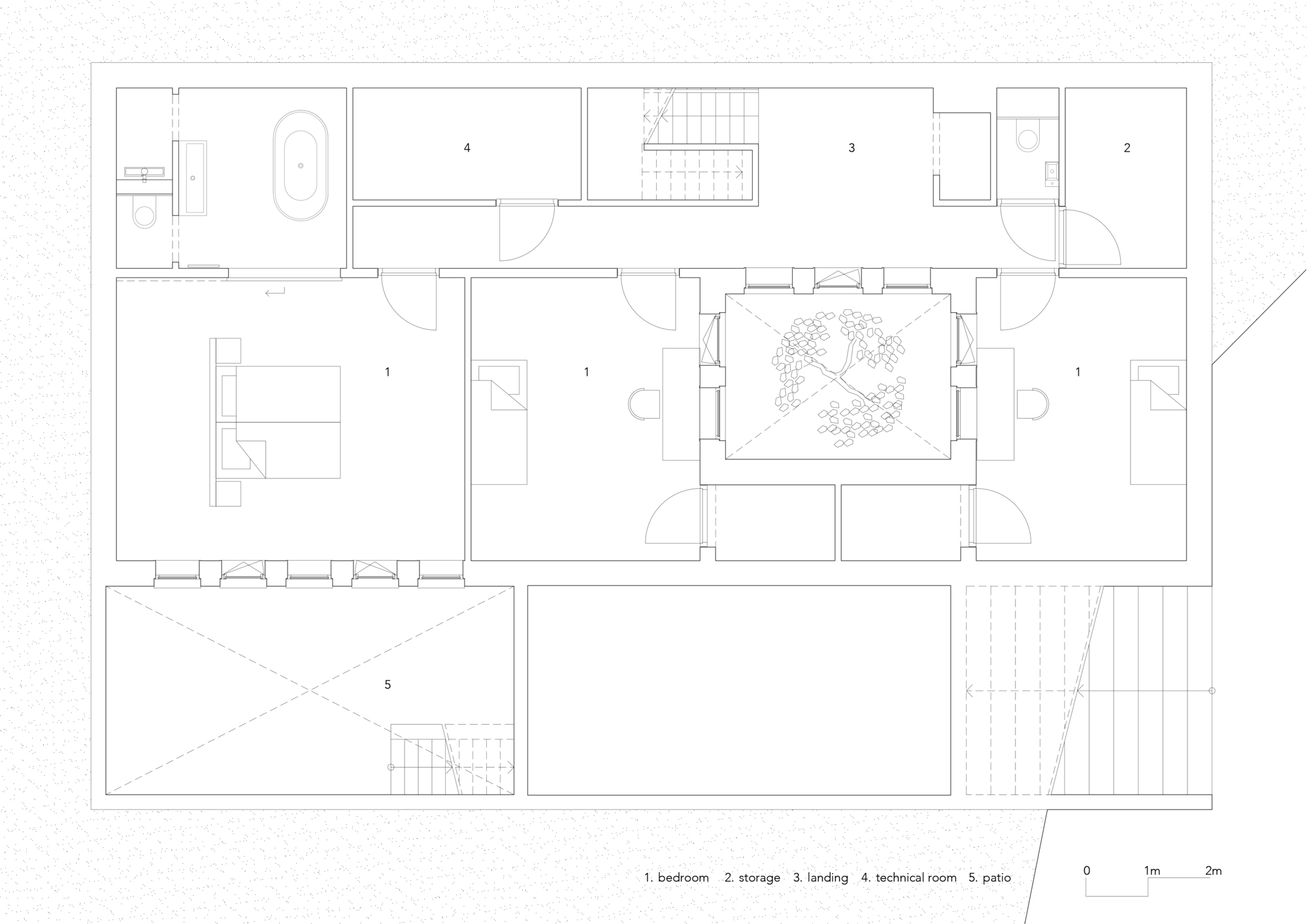
这所房子是在岛上的人工土墩上挖出来的,生活空间位于第一层,卧室和次要房间位于地下。 这使得从起居空间可以看到堤坝上方的开阔景观。 通过折叠房屋周围的景观,与花园的联系成为可能,并且房屋被视为景观中的一个适度实体。
最低层的气候受到周围土壤的调节,而突出的天井提供充足的日光和亲密的氛围。 在顶层,露台构建了空间序列并提供了房间之间的视觉关系。
明显的木梁结构从内部到外部是连续的,并在南立面上形成了一个天篷。 因此,客厅、阳台、室外房间和露台之间的界限变得模糊,景观流入了房子。
项目设计:Studio AAAN
项目面积:280.2501349m²
项目年份:2022
项目摄影:Sebastian van Damme
供应商: JUNG, Heko Spanten, Schueco, Van der Sanden
首席建筑师:Studio AAAN
项目承包商:de Hek b.v.
结构工程: Pieters Bouwtechniek
项目成市:Rotterdam
项目国家:The Netherlands
设计师:Studio AAAN
语言:英语
客服
消息
收藏
下载
最近






















