查看完整案例

收藏

下载
位于尤卡坦州人口第三多的城市巴利亚多利德市。
设计前提:广泛的城市分析和对其居民、文化和习俗的深入研究。我们的结论是通过在自由、开放空间中的日常社会共存来发现 Vallisoletanos(当地居民的名字)对社区生活的伟大活动、品味和奉献。概念化为总体规划,以增加城市和少数现有公共空间(主广场和修道院公园),加强当地人围绕文化、艺术和美食开展的流行活动。
酒店项目只需要 40902.86 平方英尺地块的 30% 空间,位于主要大道之一;建筑平面图将建筑物设在物业的后面,并在其前面扩展公共区域;通过对称的布置,为客人创造了一个享受的空间,同时,也为镇上的人们提供了开展传统活动的机会,提出了公共空间的新用途。请求是一家酒店,Waye,我们在其中添加了一个公共广场 Peregrina。
主要挑战之一是说服客户将他的部分财产捐赠给公众使用,并通过将社区利益纳入室内设计理念,我们与城市建立了新的关系,它的居民。
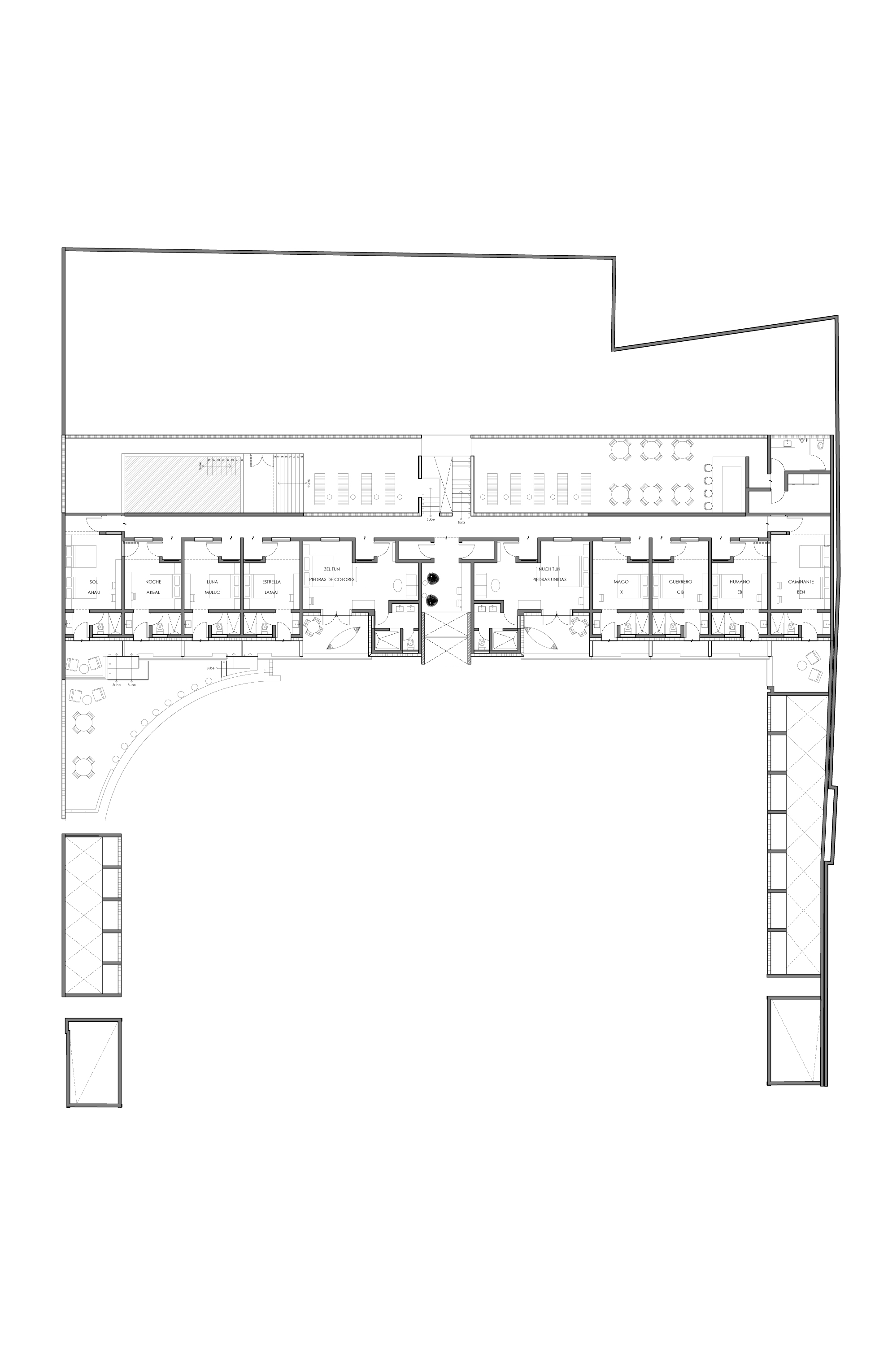
酒店的建筑是一个简单的体量配置,一个固定的方形,包含与花园和公共广场相连的房间; 20 间客房,均带有阳台或露台,以及设施和服务的建筑简介,包括行政、自助餐厅、多功能室、游泳池和作为酒店一部分的日光浴平台,以及两个侧翼,其中一个商业租赁空间和一个建议在公共滨海广场举行户外论坛。材料的外观和感觉很简单:中性色、格子开口和实心墙,和谐地完成了外部构图,内部光影效果显着。
这些材料植根于混凝土、石头、识别该区域的颜色的天然纺织品、木材、古铜色和手工制作的粘贴在地板和一些墙壁上的细节。
对通风、太阳能电池板、生物消化器和井水软化等被动策略的总结,使该项目成为减少能源消耗的重要自然资源优化,以及通过整合当地和传统植被的自然美景。
平面与结构图:
设计师:Arqmov Workshop
坐落:Valladolid / Mexico / 2020
语言:English
客服
消息
收藏
下载
最近





























