查看完整案例

收藏

下载
项目名称:YACHT CLUB
项目设计:ZROBIM architects
设计团队:Philip Trofimchuk, Matvey Oleynikov, Karina Kameyko, Mark Gurda
项目地点:Moscow, Russia
项目面积:1014.75 m2
设计年份:2022
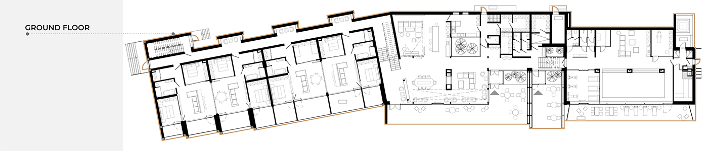
在这个项目中,我们的任务是将 2 个物体放置在一个拥有自己海岸的大地块上:主俱乐部大楼和一个安全点。 场地上还将有一个码头、一个船库、一个用于 ATV 和雪地摩托的车库。
该综合大楼配备了带酒窖的专业厨房,世界一流的厨师不断在其中工作。 俱乐部还提供大量活跃的休闲服务,这使它不仅是一家乡村酒店,而且是一个在这里和现在享受优质服务的完整生活的地方。
该项目基于组合各种体量的建筑理念,创造了一个复杂的建筑形象,从各个角度都代表了一种在树后可见的抽象构图。
作者:ZROBIM architects
图片@ZROBIM architects
语言:英语
客服
消息
收藏
下载
最近


















