查看完整案例

收藏

下载
大山中的布依族传统村寨
板万村地处贵州黔西南的群山之中,得益于它的偏远,这是一座保存非常完好的布依族村寨。2016板万村被电视台选中成为改造对象,修建小学,一时间名声大噪。大规模拍摄结束后,山里又沉寂下来,只有公益组织在此地进行小规模的修缮运营。2020年底, “大至设计”沿着前辈设计师开辟的道路进入大山,主持布依族传统建筑改造设计及整个村落的环境营造。乡村设计需要“笨一点”的设计师,因为其中亟待解决的问题并不依赖前沿的技术手段,并不单纯的迎合大众的审美好恶。它要求建筑师有耐心的扎根场地,站在当地人的视角思考问题,利用乡村的材料,评估施工队的技术,考虑物流及成本的限制,放下固有对设计边界的认知,有效解决当地问题。
布依族传统建筑形式及问题
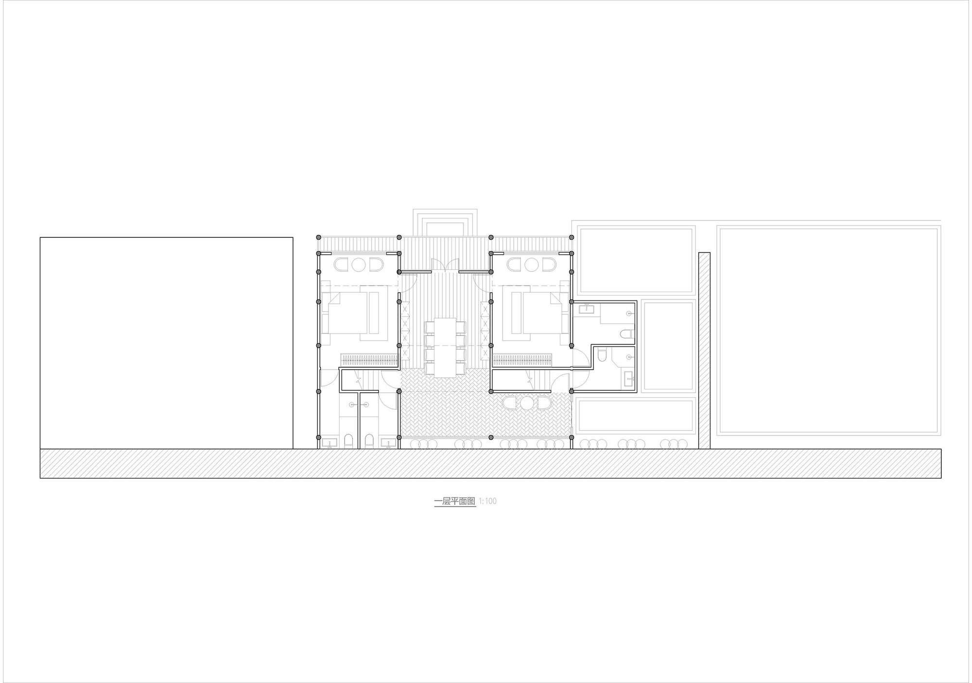
传统的布依族建筑为半干栏式建筑,典型的为3开间。位于土地基础上的部分采用夯土墙,吊脚楼部分为木制穿斗式结构。堂屋通高,侧间为两层;一层设置卧室、火塘,二层作为仓储;建筑一侧有耳房;下部架空空间多养殖家禽。当地的布依族建筑技术相对比较简单,集中问题在于墙体屋顶无防水保温,室内采光差,厕所简陋,电路布置随意。板万村改造资金紧张,人力不足,物流成本高。设计师在整个设计及营造过程中,针对每一栋房屋的状况设计改造方案,考虑预算及物流条件,探索恰当的建筑材料,并随着施工的推进不断优化构造与节点做法。
设计策略
设计师在保持整体乡村风貌的前提下,使用当地材料,参考现代建筑的保温防水做法,与当地工人共同探索可行的技术方案。引入玻璃、阳光板等现代透光材料,结合立面局部调整改善采光条件。功能布局上贴合现代人的使用习惯,开发利用二层空间,设计定制家具,根据每一栋房屋的情况,利用耳房或者下挖架空层建造厕所。
现场施工
进入施工阶段,设计师进驻村寨4个月,与施工队及当地村民共同开始板万村的建设改造。由于许多常用建材在当地难以获得,加之施工队的技术手段传统,常规的施工图纸及节点大样难以在现场指导工作。因此设计师采用了更为灵活的设计工具,使用移动平台的建模及绘图软件,通过现场与工人及村民的反复讨论、实验,不断改进材料与施工方法,用更为在地性的方案解决问题。
适合乡村的设计流程
传统的平面-模型-效果图-施工图商业设计流程在乡建实践中暴露出反应慢,成本高、沟通效率低等问题。对此设计师开发出全新的工作流程,利用移动办公设备和相应的绘图软件往返于现场与办公室之间,有针对性的快速解决现场问题。乡村的测绘图纸精度无法满足设计需求,建筑师在田间地头通过脚步丈量土地,记录每一颗大树,每一块台地的位置、面积,并借助无人机等现代化的设备获得直观的设计条件。临场建立尺度感,依据地形地貌快速组织流线,直接在现场绘制方案指导施工。一旦完成对场地的具象认知,设计师便可远程跟随施工进度优化设计方案。
在地设计,弹性设计,让乡村自己生长
广袤的乡村地区孕育了原始而质朴的美感,设计师需要感知这种美,利用尽量少的人力以及经济成本去塑造环境。在建造过程中我们用挖方做夯土花园,用当地毛竹编栅栏,屋顶拆下的旧瓦片垒成花坛挡土。这些并不是电脑图纸上的设计,而是参与建设的当地人在建设中的自发行为。设计师观察并优化这些构造,以后退的姿态为乡村带来与城市商业设计截然不同的活力与美感。大山里,我们都很渺小。人的痕迹是脆弱的,唯有自然万物在这里经历漫长的岁月。让乡村按照它自己的方式生长,这其中蕴含了植物的意志,动物的意志,土地的意志,也倾注了所有参与建设的村民的热情,设计师在进行一次不同于商业精准控制的“大至”设计,并试图在其中找到原生的质朴趣味与现代设计手段的平衡。
建筑设计: 大至设计
面积: 140000.2501349m²
项目年份:2022
摄影师:Xiaoming Wang
主创建筑师:张贝蒙
委托方:贵州山中小客旅游服务有限公司
项目城市:册亨县
项目国家:中国
设计师:Almost studio
客服
消息
收藏
下载
最近





























































