查看完整案例

收藏

下载

附件

翻译
Architect:Schemata Architects / Jo Nagasaka
Location:Ota, Gunma, Japan; | ;View Map
Project Year:2024
Category:Offices;Factories
Furukawa Manufacturing has been creating production systems for automobile parts and other items in Ota City, Gunma Prefecture, one of the oldest factory zones for the automobile industry. To coincide with the new construction of a factory zone in the city, the company decided to build a new headquarters and a factory for automobile production lines.
Furukawa Manufacturing has supported the manufacturing activities of its clients, including top automobile and parts manufacturers, by providing “production systems” that are tailor-made combinations of many different work processes that utilize industrial robots for welding, handling, conveyance, etc. However, due to the nature of a company that “manufactures” systems for “manufacturing” such items, the company has long faced the problem of not being able to demonstrate an easily recognizable presence as a company. It was also difficult to open the company to the outside world because it was involved in the development stage of the client manufacturers’ items. Therefore, confidentiality of the information was critical. The company suffered from a shortage of human resources, one of the challenges that most manufacturing companies face today. Although the company has a long history and strong technological capabilities, it was not widely recognized, and few people knew what it did. As a result, it was unable to attract desirable human resources.
This project aimed to create an open architecture that would serve as the face of the company by consolidating functions that had been dispersed in several buildings and expanded across the region into one location. However, this consolidation involves various types of exterior structures, from parking lots to exterior lighting, guidance signs, signage, road surface markings, plantings, etc., and the uses, required precision, and budgets of factory and office are very different from each other’s. The headquarters alone includes various uses on each floor, from the cafeteria to training rooms, offices, conference rooms, the president’s office, wet areas, etc. The requirements for furniture, lighting, and scale of the space differ from one place to another. We laid out a grid of approximately 1.2 m throughout the site to give it a coherent axis that facilitates the planning of such diverse elements.
The site is a large, flat plot of land of 20,000 m2 surrounded by roads. Rather than building a fence or wall separating the interior and exterior of the site, the parking lot and exterior areas of the site were paved with asphalt so that they would be continuous with the surrounding area. In addition, signs designed to match ordinary road signs were used to connect the inside and outside of the site.Then, we intertwined parking lots, signs, and road surface markings into a graphic design grid, establishing a grid graphic system that interrelates the buildings and the exterior.The grids used for the factory and office structures and the glass walls are interlinked with the exterior graphics.
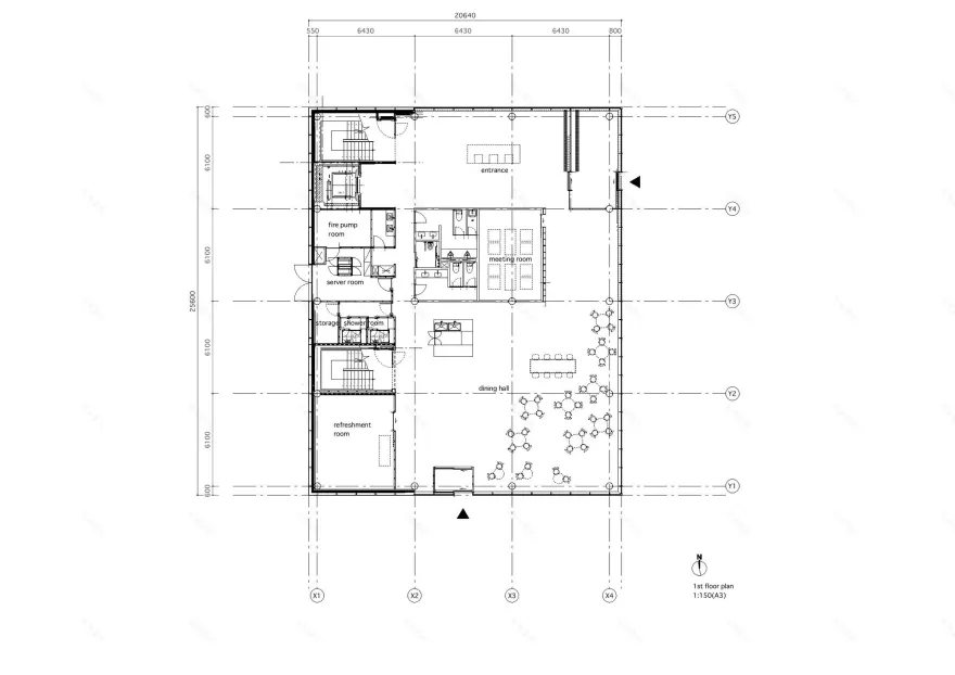
The offices are planned rationally based on the different functions of each floor and the relationship between the various departments. Our design aimed to present a unified and expressive “face” when one looks at the entire building. The first floor has a cafeteria for 80 employees, and the second floor has a large conference and training room for visitors connected to the cafeteria atrium. The third and fourth floors are office floors with desk spaces and four conference rooms, while the fifth floor has various rooms used by the president and executives, as well as an outdoor terrace. While each floor has different functions and requires varying floor areas, we used the same grid as the exterior and architecture to design all areas, arrange raceways, partitions, atrium, and interfaces, and use appropriate lighting for each location. The result was an expressive face that is not homogeneous.
This project became the core of the company’s rebranding initiative. Today, a shortage of human resources is a significant problem in the manufacturing industry, among other sectors. Specifically, the manufacturing industry now faces a decline in rural areas. This project made it easier to recognize the company’s presence and its integrated system from planning and proposal to production and trials, and also positively affected recruiting new employees. The recruitment rate has increased, especially from experienced women living in the region, with a tenfold increase in the number of applications. In addition, face-to-face communication between the headquarters and factory employees has increased. The quality and productivity of products have also improved because they can immediately see the outcome of what they have designed and get feedback from the factory on the spot. - (Yasunori Nakano)
Team:
Architect: Jo Nagasaka / Schemata Architects
Project team: Yasunori Nakano
Furniture team: Ou Ueno
Structural design: TECTONICA INC.
MEP design: ZO Consulting Engineers
Construction: Kanto kensetsu
Collaboration: NDC Irobe Design Institute (signage design), Hashizume Iron Works (wire mesh furniture), Modulex (lighting), ENDO Lighting Corp (lighting), Hoshizaki Corp (kitchen), Yard Works Inc. (planting), X'S Corporation (tile)
Photography: Takumi Ota
▼项目更多图片
客服
消息
收藏
下载
最近


































