查看完整案例

收藏

下载

翻译
Architects:Davide Beretta Studio
Area:247m²
Year:2023
Manufacturers:Floos,Florim,LAGO
Lead Architect:Davide Beretta
City:Crema
Country:Italy
Text description provided by the architects. Minimal, white finishes emphasize the geometric form of this house in Crema. Named L2A house, the two-story, three-bedroom house aims to create a contemporary interpretation of a villa, essential in its sculptural forms but comfortable in its spaces. Outside, a sequence of straight and curved lines defines the volumes that interact with each other in a play of joints. The porch wraps around two sides of the house, protecting the south-facing living area during the hottest hours and opening westward into a large, summer living area. The white sunshades filter the light, creating a sense of intimacy and privacy and ensuring that the house remains cool and shaded, enhancing the comfort of its inhabitants even during the hottest days.
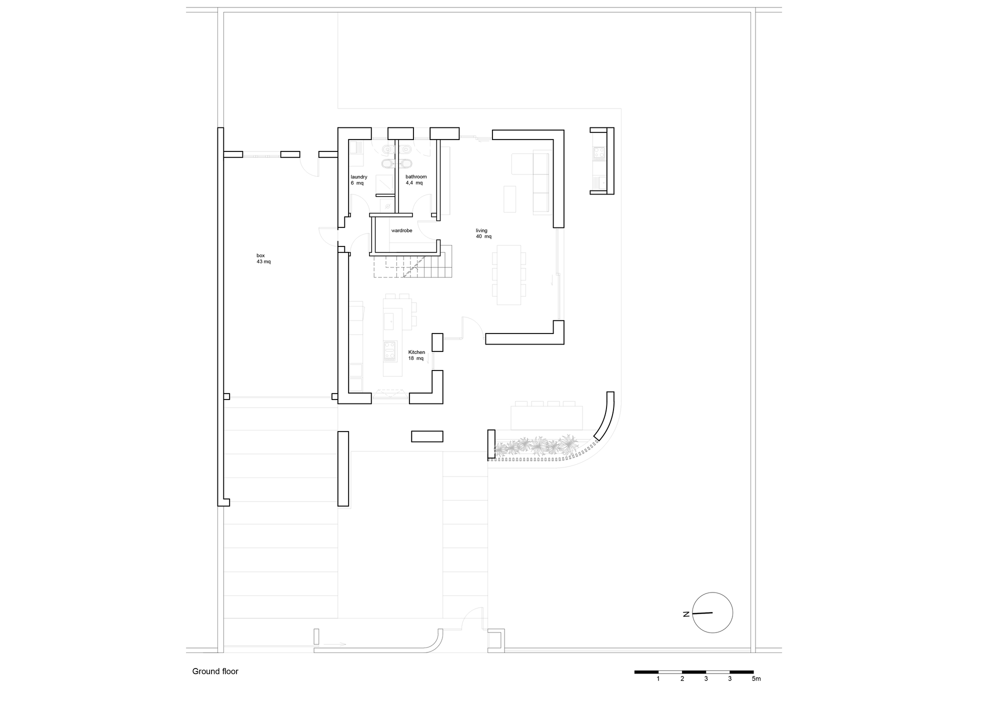
On the ground floor, the living area features large open spaces where different areas are in direct communication with each other and with the external spaces. The modern furnishings relate to the building's architectural language through simple lines and natural colors, ranging from the warm tones of sand and stone to those of wood. These choices create a harmonious blend between the indoor and outdoor environments, emphasizing a seamless transition that enhances the overall living experience.
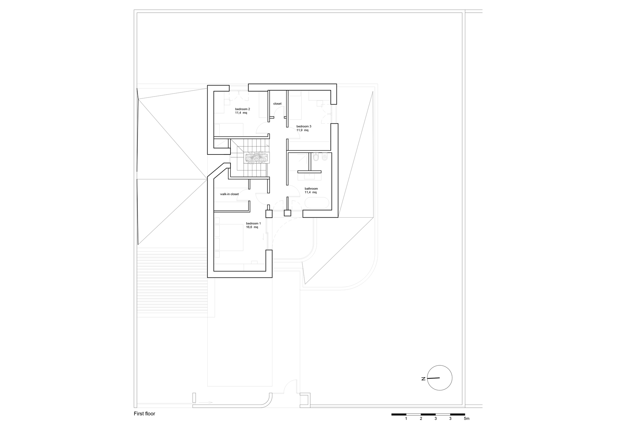
The staircase, a monolithic element covered in grey resin, develops around a white parallelepiped that contains an integrated concrete tub of hanging greenery at its apex. The parapet, made up of white-painted perforated sheet-metal panels, allows visual continuity between the two levels. This design element also enhances the spatial flow within the house, making the transition between floors smooth and visually appealing. On the first floor, the sleeping area consists of three bedrooms and a bathroom. The master bedroom has direct access to a small terrace overlooking the Crema countryside, providing a private outdoor space where the inhabitants can enjoy the serene views. The design of the sleeping area prioritizes privacy and comfort, with each room thoughtfully positioned to maximize natural light and ventilation. This approach ensures a tranquil and restful environment, perfect for relaxation and unwinding after a long day.
L2A House is a blending of minimalistic design with functionality and comfort. The careful attention to detail in both the interior and exterior spaces creates a harmonious living environment that is both aesthetically pleasing and practical.
Project gallery
客服
消息
收藏
下载
最近

























