查看完整案例

收藏

下载

翻译
Faculty of fine arts
Architecture department
Second Year of Architecture - Academic Surveying Of Architecture ProjectGRADE: A+
Date : 2023-2024
used software: Autodesk Revit - Autocad -sketch up - Lumion - Enscape - Photoshop
Polycam - 3D civil - Excel - ARPlanner
3D model campus
Elevation's Surveying
3D Faculty of Fine arts Surveying
Contour Mapping
Internal Model
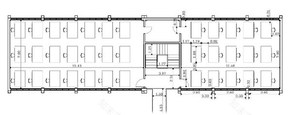
2D Layout faculty of fine arts Surveying
poster surveying for architecture
Thank You
客服
消息
收藏
下载
最近






















