查看完整案例

收藏

下载
木材,蕴含着独特灵魂,静候唤醒。
我们以线条勾勒,姿态塑造,结构支撑,
唤醒其灵魂,赋予其生命,
让木材优雅重生,自带光芒。
—首席公馆
▽
家,不仅是四壁之内的空间,更是情感与记忆的容器。每一次家居的变迁,都是心灵深处的一次洗礼。本期,大量采用了玫瑰木材料,经过水性漆的精心涂装,不仅环保健康,更赋予了它们细腻的触感和光泽,让木材的自然之美得到了完美的体现。
Home is the space within four walls and a container for emotions and memories. Every change in home furnishings is a baptism deep within the soul. We extensively used rosewood, meticulously coated with water-based paint in this case. This ensures environmental protection and health and endows the wood with a delicate touch and sheen, perfectly reflecting its natural beauty.
空间朗润,气度自显
Spaciousness and Poise
━
会客厅是家庭最重要的空间,不但承载了一家人的欢乐时光,更是对外社交的名片,一方敞阔的会客厅,是主人格局的象征,也能更好彰显居者气度。
The living room is the most essential space in a home. It not only carries the family’s happy times but also serves as a social calling card. A spacious living room symbolizes the owner’s stature and better showcases the resident’s demeanor.
在这静谧而雅致的客厅之中,时光仿佛被轻柔地织就成一袭华美的梦境。整体空间以纯洁无瑕的白色为基调,大面积的木饰面,以自然界最质朴的笔触,缓缓铺展,将空间的边界模糊。厚重的沙发,是客厅的灵魂所在,它以一种不言而喻的尊贵,邀请着每一位踏入此间的宾客,共同沉浸于这份奢华而不张扬的舒适之中。
Time seems softly woven into a magnificent dream in this serene, elegant living room. The overall space uses pure white as the base tone, with large areas of wooden finishes slowly spreading with the most rustic strokes of nature, blurring the boundaries of the space. The hefty sofa is the soul of the living room, inviting every guest who steps in to immerse themselves in this luxurious yet understated comfort with an unspoken nobility.
大理石的电视背景墙,以其冷峻而坚韧的质感,成为了空间的点睛之笔。客厅在木质、金属、石材构建的几何界面中,以布艺与曲线平衡空间锐度,多了几分温情与朗润。
The marble TV background wall, with its cold and resilient texture, becomes the finishing touch of the space. In the geometric interface constructed of wood, metal, and stone, the use of fabric and curves balances the sharpness of the space, adding a touch of warmth and openness.
灯火温馨,家味渐浓
Warm Lighting Increasing the Feeling of Home
━
“当厨房的灯亮起来了,房子才会变成家”。四方食事,不过一碗人间烟火。在中国人源远流长的传统文化里,厨房极具象征意味,它与人们内心的幸福感和归属感紧密相依。
"When the kitchen lights up, the house becomes a home." Daily meals are simply a bowl of earthly flavors. In traditional Chinese culture, the kitchen is highly symbolic and closely linked to people’s happiness and belonging.
石材纹理的瓷砖缓缓铺陈于墙,如同晨曦中波光粼粼的湖面,为厨房平添了几分不经意的奢华与雅致。在这光影交错间,镜子仿佛一面通往自然的窗棂,将窗外的风景轻轻揽入怀中,又巧妙地反射出室内每一寸精致的布局,让空间在虚实之间交织出梦幻般的意境。
The stone-patterned tiles spread slowly on the walls, like the sparkling lake surface in the morning light, adding a touch of accidental luxury and elegance to the kitchen. In this interplay of light and shadow, the mirror seems like a window to nature, gently embracing the scenery outside while cleverly reflecting every inch of the exquisite layout inside, weaving a dreamy realm between reality and illusion.
中西文化以一种优雅的方式交融,玻璃移门轻轻划过,将中西厨巧妙地分隔,却又不完全隔离。它们如同两位舞者,在生活的舞台上,各自展示着独特的魅力。
Eastern and Western cultures merge elegantly, with the glass sliding door gently dividing the Chinese and Western kitchens yet not wholly separating them. They are like two dancers on the stage of life, each displaying their unique charm.
日子并非总是花团锦簇、浓茶烈酒。在平淡如水的长河里,三餐四季,家人围坐,笑语盈盈,方显人间至真至纯的幸福画卷。而餐厅,便是这幅画卷中最温馨的章节,它以一桌佳肴为墨,以爱为笔,轻轻勾勒出家的温馨与安宁,让每一刻相聚都镌刻成心中最柔美的风景。
Life is not always full of flowers and strong tea. In the long river of mundane days, with three meals and four seasons, family members sit together, laughing and talking, revealing the purest happiness of the human world.
超大落地窗如同自然界的画框,将外界的喧嚣与繁华轻轻隔绝,只让最纯净、最柔和的阳光洒满室内。大理石圆桌,以其自然的纹理和温润的光泽,成为视觉的焦点。悬挂其上方的水晶吊灯,光芒璀璨,为餐厅增添了一抹华丽与浪漫。
The dining room is the warmest chapter in this picture. A table of delicacies is used as ink and love as the pen, gently outlining the warmth and tranquility of the home, making every moment together a beautiful scene engraved in the heart.
卧室,是静谧的庇护所,星光轻洒,织梦于夜的温柔。每一缕灯光,每一抹色彩,都是对安宁的低语,让心灵在宁静中得以栖息。
The bedroom is a tranquil sanctuary. Starlight softly falls, weaving dreams in the gentle night. Every ray of light and every hue whispers peace, allowing the soul to rest in tranquility.
一楼客房,以简约之美迎接每一位远方的来客。无需繁复装饰,仅凭自然光线的洗礼,便营造出一片静谧的休憩之地。在这里,每一次的停留,都是对家的温馨邀约,让心灵得以安宁。
The guest room on the first floor welcomes every guest from afar with its simple beauty. Without complex decorations, just the baptism of natural light creates a serene resting place. Here, every stay is a warm invitation to home, allowing the soul to find peace.
梦栖云端,心归宁处
Dreams Resting on Clouds, Heart Returning to Tranquility
━
当电梯门缓缓打开,二楼的家庭起居室以其独有的温馨迎接着归来的脚步。这里是三个卧室共同围绕的温馨核心,它不仅是空间上的交汇点,更是情感与时光的汇聚之处。
When the elevator doors open slowly, the family living room on the second floor warmly welcomes the returning footsteps. This warm core, surrounded by three bedrooms, is a convergence point in space and a gathering place for emotions and time.
起居室融汇了现代美学与舒适氛围,而柔和的光线则为空间披上了一层温暖的轻纱。以米色沙发为核心,搭配圆形咖啡桌与绿意盎然的点缀,墙角的绿植为空间增添一抹生机。整体色调简洁优雅,白色与灰色交织,让人在繁忙之余,能享受一份宁静与惬意。
The living room integrates modern aesthetics with a comfortable atmosphere, while soft light drapes the space with a layer of warm gauze. It is centered around a beige sofa paired with a round coffee table and green plants in the corner, adding a touch of vitality to the space. The overall color scheme is simple and elegant, with white and gray intertwined, allowing one to enjoy tranquility and leisure amidst the busyness.
墙面装饰
精选玫瑰木,经过零度哑光工艺处理,细腻的纹理与柔和的光泽相得益彰,绘制出一幅生动的画卷。射线元素的巧妙融入,丰富了空间的层次,增添了一抹现代感。深色与周围浅色调形成鲜明对比,既低调又不失力量,如同夜空中最亮的星,引领着视觉的焦点,让人心生向往。
The wall decorations feature rosewood, treated with zero-degree matte craftsmanship. The delicate texture and soft luster complement each other, painting a vivid picture. The clever integration of ray elements enriches the space’s layers, adding a touch of modernity. The dark color contrasts sharply with the surrounding light tones, both low-key and powerful, like the brightest star in the night sky, guiding the visual focus and making people yearn for it.
东
侧
儿童房,以简约风格拥抱成长的无限可能。空间延续了家中柔和明亮的色调,家具线条流畅,整体风格虽不张扬儿童特色,却以高品质材质与精细工艺,为孩子打造一个既现代又舒适的成长环境。
The east children’s room embraces the infinite possibilities of growth with a minimalist style. The space continues the soft and bright tones of the home, with smooth furniture lines. The overall style, though not prominently childlike, uses highquality materials and exemplary craftsmanship to create a modern and comfortable growth environment for the child.
一张整洁的书桌,搭配着舒适的座椅,这便是床尾的学习区域。书桌与衣柜的线条造型相呼应,增添了空间的层次感和设计感,整个区域简洁而有序,既实用又美观。
A tidy desk and a comfortable chair form the study area at the foot of the bed. The lines and shapes of the desk and wardrobe echo each other, adding layers and design sense to the space. The entire area is simple and orderly, both practical and beautiful.
西侧儿童房以淡雅为笔,蓝色描边轻拂其上,为素雅的空间带来一抹清新的惊喜。金属质感的床头吊灯,以其现代的光泽,点亮了房间的每一个角落,赋予了空间一抹时尚的气息。
The west children’s room is painted elegantly, with blue edges gently brushing across, bringing a touch of fresh surprise to the plain space. The metal texture of the bedside lamp, with its modern sheen, illuminates every corner of the room, adding a touch of fashion to the space.
床尾被巧妙地打造成一个宁静的学习角落,透明展示柜以其清澈的质感,如同晨光初照,唤醒了空间的活力。柜内的摆件错落有致,娓娓诉说着过往和未来的悠悠故事。一旁白色书桌,简约而精致,小圆角的细节考虑人体工学,提供了舒适的使用体验,透射出房间主人别具一格的品味以及细腻入微的情感。
The foot of the bed is cleverly transformed into a quiet study corner, with a transparent display cabinet whose clear texture, like the first light of dawn, awakens the vitality of the space. The items inside the cabinet are arranged in an orderly manner, telling stories of the past and future. The white desk beside it, simple yet exquisite, with small round corners considering ergonomics, provides a comfortable use experience, reflecting the unique taste and meticulous emotions of the room’s owner.
老人房融入了暖灰色调,温馨而宁静。精心规划的空间布局让房间显得开阔而有序,便于日常活动。温暖的灯光柔和而不刺眼,床品质感柔软,颜色搭配和谐,共同营造出一个适合安享晚年的环境。
The elderly room incorporates warm gray tones, cozy and peaceful. The carefully planned layout makes the room appear spacious and orderly, convenient for daily activities. The warm lighting is soft and not glaring, and the bed is soft and comfortable, with harmonious color matching, creating an environment suitable for enjoying old age.
未完待续
To be continued
▽▽▽
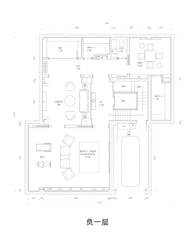
△
平
面
图
项目信息
Information
━
木作品牌:
Sacucci首席公馆
Project Brand: Sacucci
设计单位:
深圳市广出装饰设计顾问有限公司
Project Company: Guangchu Zhuangshi
主案设计:
刘斌
Chief Designer: Bin Liu
木作设计师:
张小锋
Wood designer:Xiaofeng Zhang
木材材种
:
美国红樱桃、玫瑰木、加拿大硬枫
Wood essence:
American red cherry、 Rosewood、Canadian hard maple
涂装工艺
:
植物油、零度哑、水性漆
Painting:Vegetable oil、Zero-degree matte paint、Water-based paint
唯一制造商:
南通飞云工艺家具有限公司
The sole manufacturer:
Nantong Feiyun Craft Furniture Co., Ltd.
项目摄影:
单行道摄影-朴言
Photographer:
Pu yan
文案撰写:
云镜传媒
Copywriter:Cloud Mirror Media
▽▽▽
Chief Designer
“ 刘 斌 ”
--
设计师简介:
華人典範國際典範設計師大獎
粵港澳大灣區設計風雲人物
資格等級:高級室內建築師
畢業院校:魯迅美術藝術學院環境藝術系
創始人/設計總監:深圳市廣出裝飾設計顧問有限公司
上海申出建築裝飾設計有限公司
瀋陽盛出設計顧問有限公司
个人履历:
2023 粵港澳大灣區設計風雲人物
2022 法國設計年度影響力封面人物獎
2020 義大利IDA國際設計大獎 TOP10人物獎
2020 第八屆金創意獎 年度十大傑出中青年設計師
2020 第八屆金創意獎 樣板房空間/國際創新設計獎
2019 華人典範國際典範設計師大獎
2019 金創意設計獎-專業設計類-國際創新設計獎
2018 第五屆TOP10 品質和平 年度優秀設計師獎
2018 最具影響力室內設計機構
2017 澳門國際設計大師邀請賽 酒店會所空間實例類金獎
2017 TOP100中阿國際影響力設計師大獎
2017 年度中國·上海室內設計年度人物
2017 年度中美國際設計大獎-國際創新設計大獎
2017 亞太空間設計年度評選·空間藝術大師獎
2016 中國上海設計行業發展貢獻人物
2016前獎項未計入……
------
木之所及皆能驾驭
Master in wood,believer in life
客服
消息
收藏
下载
最近







































