查看完整案例

收藏

下载
项目名称 ——拾穗小馆
项目地点 ——河南省周口市鹿邑
项目面积 ——400m²
设计单位 ——LS空间设计事务所
设 计 师 ——Leebinean
设计风格 ——美式乡村风
一、风格定位
美式乡村风的设计理念源于对自然、舒适与悠闲生活的追求。我们力求打造一个既能体现美国乡村传统韵味,又兼具现代舒适感的空间。空间的整体风格以轻松、自然、温馨为主调,营造出一种回归自然、享受生活的氛围。
二、色彩运用
色彩是空间氛围的重要构成部分。在美式田园风格中,我们主要运用柔和、自然的色彩,如淡黄、米白、浅灰、浅绿等,这些色彩能够营造出宁静、舒适的氛围。同时,我们也会适当使用深色木质家具和装饰品,增添空间的层次感和温度感。色彩搭配上,我们追求和谐统一,避免过于花哨或刺眼的色彩搭配。
三、材质选择
在材质的选择上,我们注重天然、环保的材质。木质是美式乡村风格中不可或缺的元素,我们选用优质的实木或木纹贴面板材,打造出质朴、自然的空间感。此外,我们还会运用棉麻、石材、玻璃等材质,增添空间的质感和温馨感。在材料的质感和纹理上,我们追求自然、真实,避免过多的装饰和修饰。
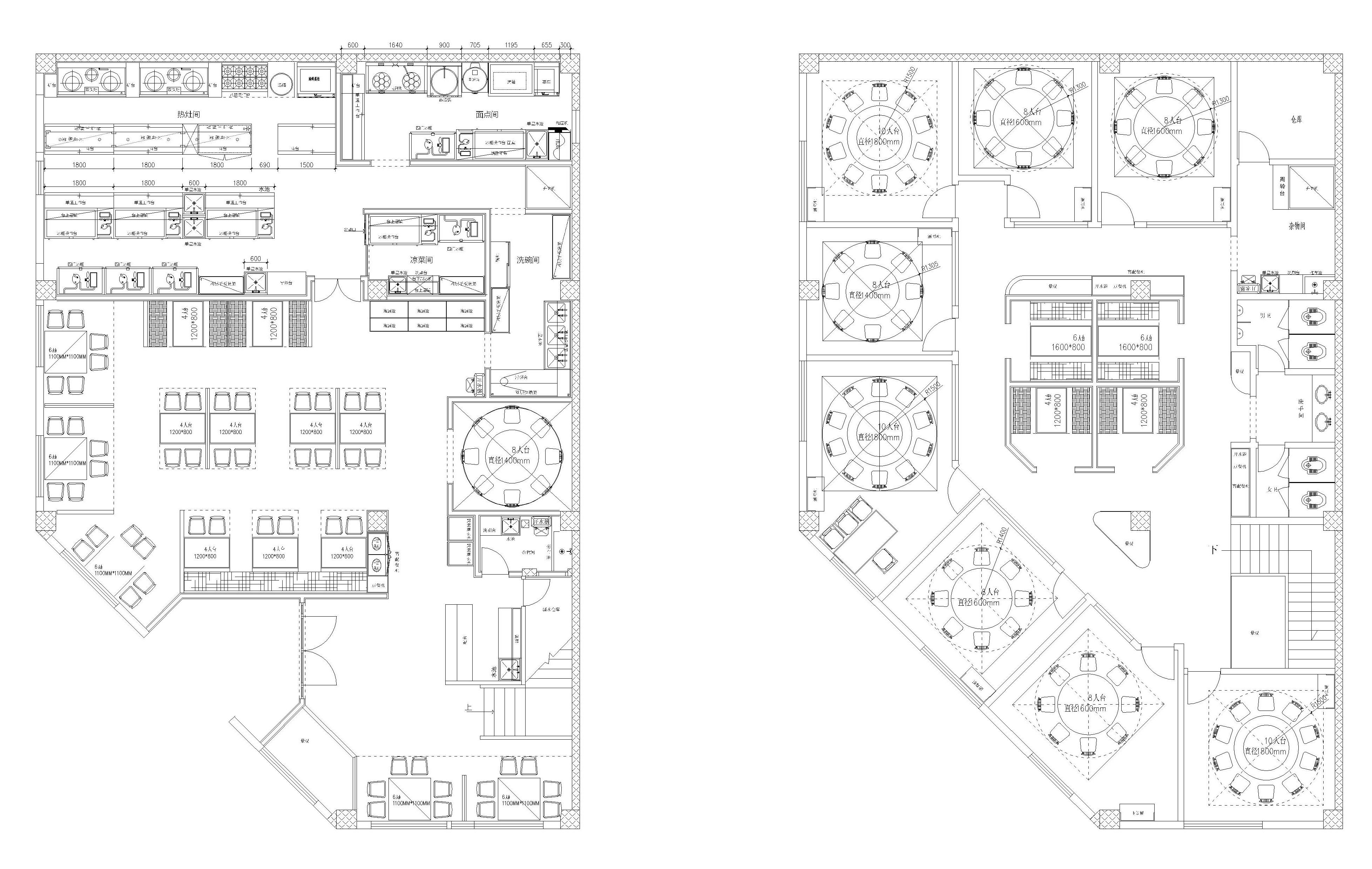
四、空间布局
空间布局上,我们注重功能性和舒适性的平衡。首先,我们根据饭店的实际面积和客容量,合理规划各个功能区域,如接待区、用餐区、休息区等。在布局上,我们追求开阔、通透的感觉,让空间更加宽敞、明亮。同时,我们也会考虑顾客的用餐体验和便利性,合理设置桌椅、通道等。
美式田园风饭店的设计理念以自然、舒适、温馨为主调,追求功能与舒适性的平衡。在色彩、材质、空间布局、装饰元素和家具设计等方面,我们都注重与整体风格的统一和协调。我们希望通过这样的设计理念,为顾客打造出一个既具有乡村传统韵味,又兼具现代舒适感的空间,让顾客在享受美食的同时,也能感受到美式田园风格的独特魅力。
客服
消息
收藏
下载
最近





















