查看完整案例


收藏

下载
21c Museum Hotel
都说「艺术是无用的东西」,但也只有艺术能给予空间更多的质感和气质。甚至,还能凸显出品味和思想。
大多数空间都会用艺术品来简单点缀,但今天要介绍的这个酒店「21c Museum Hotel」,却是和艺术博物馆直接结合在一起。
你或许睡过很多酒店,但你睡过博物馆吗?
21c Museum Hotel Kansas City
21c Museum Hotel 由本身是艺术收藏家的夫妻 Steve Wilson 和 Laura Lee Brown 创立于 2006 年 ▼
Steve Wilson 和 Laura Lee Brown
这些酒店全都由同一个设计师团队打造,他们就是由 Deborah Berke 领导的 Deborah Berke Partners ▼
Deborah Berke
Deborah Berke 曾经为顶级公寓楼项目 432 Park 做整体的室内设计,我们之前也分享过 ▼
不可思议!她在纽约楼王的精装房里刷满了白涂料,居然售价5.8亿
从 21c Museum Hotel 创立开始,Deborah Berke 就包办了它所有的酒店设计。
最近开在芝加哥的最新作也正式公开,下面就让我们一起来看看这个独特的酒店到底有着怎样的设计吧!
芝加哥店位于 Rush 街道上,是由一栋原本住着黑板分子的大楼改建而来。一进入大堂就能看到非常有标志性的雕塑作品和金色的楼梯 ▼
酒店内还有非常明亮的各种艺术休闲区,在这里可以举办沙龙或者艺术讲座 ▼
酒店的客房内部明亮通风,采用了稳健的色彩 ▼
床头板采用了皮革和天鹅绒,扩展了墙壁的高度,让房内的氛围更加具有质感 ▼
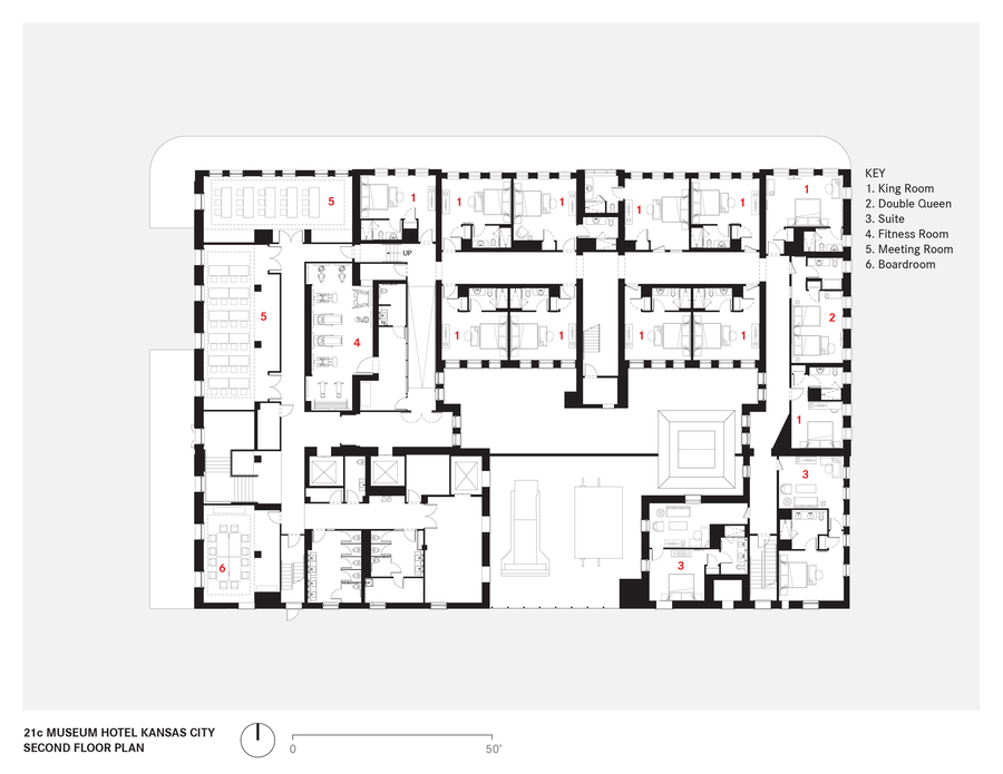
这间酒店位于密苏里州的堪萨斯城,是由最早建于 1888 年的萨沃伊酒店改建而来。
设计团队将历史建筑内的各种维多利亚时代和工艺美术的建筑细节保留了下来,并且将 20 世纪的各种其他元素融入在其中 ▼
下方这个通道内采用了多媒体艺术灯具,让整个空间极具未来感,于原本的历史建筑产生了「冲突」,从而增加戏剧感,让空间更有意思 ▼
可以看到餐厅的吊顶上保留有非常独特的历史痕迹,但使用的灯具却非常特别,拥有现代艺术的美感 ▼
在酒店内的展览空间非常多,会不定期地进行更换,每个来店的客人都能享受到独特的艺术展览 ▼
酒吧的风格完全就是复古的,除了将原有的建筑细节尽可能修复完善之外,为了配合这个空间的气质,选用的家具也都是一些「老家伙」▼
纳什维尔酒店同样是由老建筑改建而来,最早这是一家名为 Gray - Dudley 的五金公司的办公楼。
裸露的金属横梁、圆柱以及混凝土底板,将原有的工业遗址气息留在了其中 ▼
室内空间采用了精致而淡雅的色调为主,结合丰富的金属装饰,让各种材料于家具在空间中打造出另一种独特的质感 ▼
餐厅的设计保留了历史感,在地上铺设老转投,预示着这里原本的功能,也赋予了空间别样的美感 ▼
前往客房的楼梯与通道都采用了深色调,增强了空间的沉浸感 ▼
这间酒店拥有 135 间客房,同时还有 1300㎡ 的画廊空间、活动场所、酒吧、的餐厅和 SPA 场所。
这间大楼原本历史悠久的福特汽车公司制造大楼,由 Albert Kahn 设计。在Deborah Berke Partners 的改造下,成为了一个非常独特的艺术博物馆酒店 ▼
这栋楼的每一层都有扩建的部分,并且采用了独特的照明系统,让整个空间更加生动 ▼
酒吧和餐厅的灯光照明也非常特殊,将原本不太有生气的空间渲染得有些虚神秘感 ▼
在客房区安装了一些玻璃砖光井,将室外的自然光线带入室内 ▼
客服
消息
收藏
下载
最近















































































































