查看完整案例

收藏

下载
日本第一家Mardi Mercredi旗舰店位于通往代官山车站的路上。该项目从选址、设计、承包商招募到竣工,历时约九个月。该店共两层,由于构造受限,每层都需要经由外部楼梯连接的独立入口进入。这就需要从不同角度解决无障碍问题。
Japan’s first flagship store of Mardi Mercredi is located along the path to Daikanyama Station. The project, encompassing site selection, design, contractor hiring, and completion, took about nine months. The store spans two floors, each with a unique structure requiring access via separate entrances connected by an external staircase. This necessitated different solutions for accessibility from various perspectives.
▼外观,exterior view © Sunghoon Han
空间拥有笔直的高天花板,能够进行灵活的设计和布局。在一楼,最大限度地利用了现有的空间感,使家具能够以不同的布局摆放,既能自主移动,又功能高效。这样的规划使空间如同一个有机体,同时兼具永恒性与流动性。
The space boasts a straight and high ceiling, allowing for flexible design and configuration. On the first floor, the existing spatial sense was maximized, enabling the furniture to be arranged in diverse layouts with autonomy in movement and efficiency in function. This was planned to make the space feel like a single organism by achieving both permanence and fluidity.
▼一层空间概览,first floor space overview © Sunghoon Han
▼一层空间全览,first floor overall space © Sunghoon Han
▼入口,entrance © Sunghoon Han
▼家具与衣架,fixtures and hangers © Sunghoon Han
▼展示架,display shelves © Sunghoon Han
▼试衣间,fitting room © Sunghoon Han
▼细部,details © Sunghoon Han
二楼可通过外部楼梯进入,在最初的现场勘察时,透过窗户可以看到外部的绿树景观,令人印象深刻。设计旨在将外部景色引入室内,让游客欣赏全景风光。地板、墙壁和天花板都使用了能消弭室内外界限的颜色。放置在中央的功能性物品作为反光元素,进一步模糊了室内外的边界。从室内外的关系中汲取意义来塑造空间,这似乎超越了自然和人工的对立。
The second floor, accessible via an external staircase, offered an impressive view of green trees through the windows during the initial site survey. The design aimed to bring the external scenery inside, welcoming visitors with a panoramic view. Colors that dissolve the boundaries between the interior and exterior were used for the floors, walls, and ceilings. A centrally placed functional object serves as a reflective element, further blurring the lines between inside and outside. The space, shaped by deriving meaning from the relationship between interior and exterior, seems to transcend the dichotomy of nature and artificiality.
▼二层空间概览,second floor overview © Sunghoon Han
▼消弭室内外界限,dissolve the boundaries between the interior and exterior © Sunghoon Han
▼室内空间一瞥,a glimpse at the interior space © Sunghoon Han
▼衣架,hangers © Sunghoon Han
▼反光的家具进一步消弭室内外界限,reflective furniture further blurring the lines between inside and outside © Sunghoon Han
▼室内角落,interior corners © Sunghoon Han
▼试衣间,fitting room © Sunghoon Han
▼细节,details © Sunghoon Han
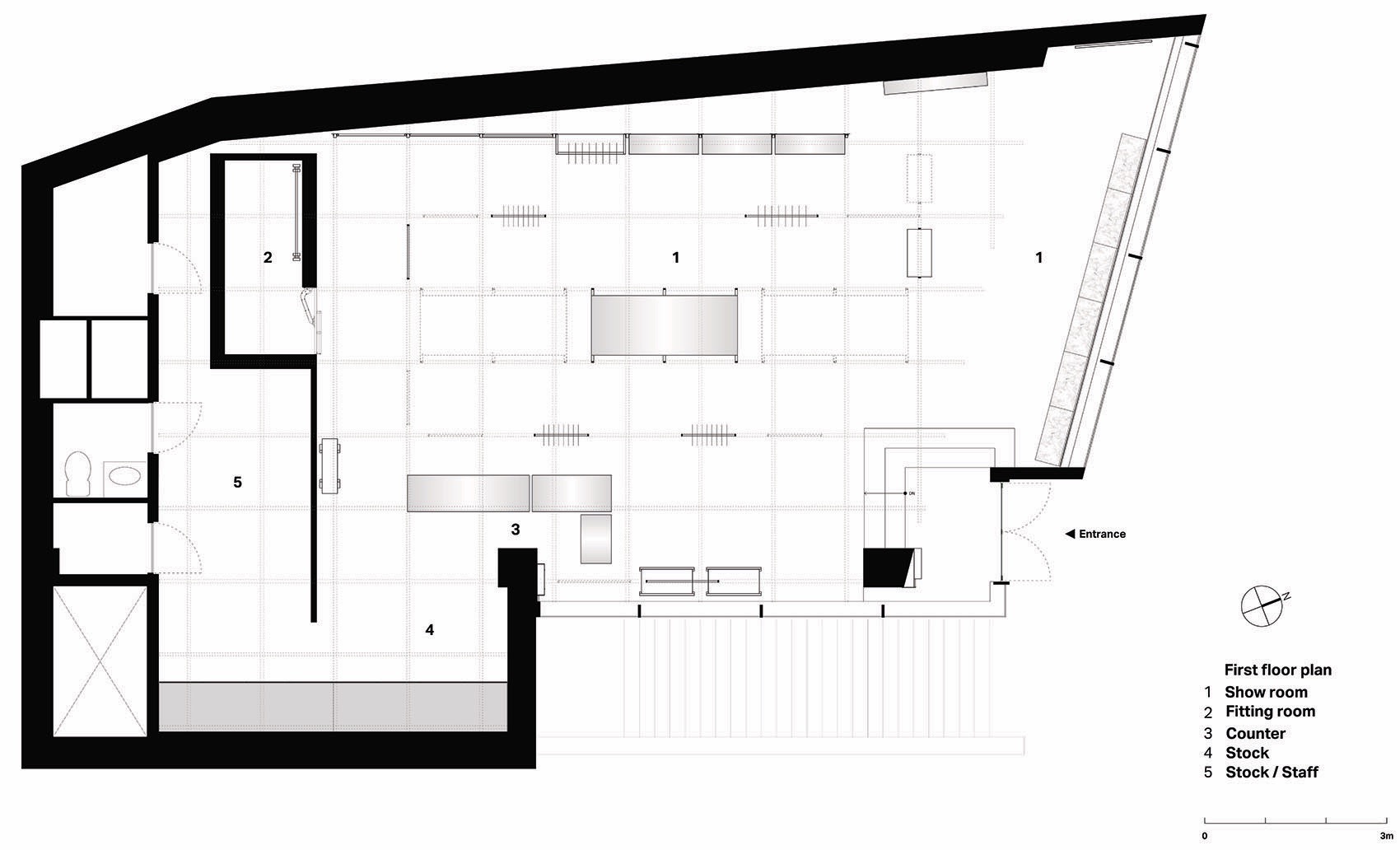
▼一层平面图,first floor plan © Sunghoon Han
▼二层平面图,second floor plan © Sunghoon Han
title: Mardi Mercredi Daikanyama
architect: Creative Studio Unravel
project director: Dong-il Lee
project team: Hyunho Lee, Juneoh Lee, Dasol Park
location: 1~2F, 20-5 Daikanyamachō, Shibuya City, Tokyo, Japan
usage: Fashion Store
construction: TANK
floor area: 302.01㎡
completion: May 2024
photo: Sunghoon Han
客服
消息
收藏
下载
最近



















































































