查看完整案例

收藏

下载
文体设施是市民文化需求得以满足的重要载体。经过近年的努力,光明区统筹考虑辖区文体设施的建设和运营、空间和功能布局,提出并谋划建设光明区十大文体设施,为加快打造“绿色风、国际范、科技韵”的世界一流科学城,配套提供高品质的公共服务保障。
作为光明区十大文体设施之一,新湖文体中心项目定位服务光明云谷片区的文化和体育综合活动中心,建成后将改善片区体育设施相对缺乏的现状,丰富居民文化生活形成科学、人文、健康的文体氛围;打造成充满活力、整体具有“科技+绿色”风貌理念的文体活动设施,服务高端人才,助力世界一流科学城建设。
△ 鸟瞰效果图
为激励设计单位主动对标一流、争创一流、赶超一流,更好地服务光明区高质量高颜值开发建设,由光明区城市高颜值建设专项小组主办,市规划和自然资源局光明管理局、光明区建筑工务署承办,开展了“光明区2022年度十佳高颜值设计方案”评选工作。从创新性、适应性、美观性、示范性和落地性五个维度评定。新湖文体中心项目在活动中脱颖而出,获评“光明区2022年度十佳高颜值设计方案高颜值设计方案优秀奖”。
△ 城市鸟瞰图
基于对城市关系的梳理,作为云谷中轴上核心一站,我们希望结合公园与校园,以及西侧开放空间,营造一个以艺术为主题的公共放大节点。考虑到原场地西侧公共绿化空间狭窄,设计通过扩大公共场域放大公园界面,结合南侧开放公共体育功能,实现中轴活力的延续。
△ 营造艺术节点
△ 扩大原有狭窄的公共绿化空间
△ 鸟瞰效果图
设计旨在创造一个全民性、开放性、公益性的场所,为片区人群提供一个集文化活动、图书阅览、文艺展演、全民健身以及非正式交流于一体的综合市民活动中心。
于是我们在高区布置功能性体育场馆,满足大跨度高层高空间需求,东翼组织黑匣子等轻交流功能,西翼结合中轴,布置开放灵活的交流功能场所。丰富的檐下多层平台空间,以及退让的西侧广场,与中轴丰富的活动与空间形成对话关系。
△ 合理组织空间
在建筑设计层面,我们提出“城市橱窗”的设计理念,一方面依托于对在地文脉的思考,希望在中轴上还原片区周边历史村落特质,呼应光明的历史空间气息;另一方面我们希望创造一个新的文体空间类型,即低区以村落形式组成内外街巷,高区形成完整弹性的大跨度综合球馆,建筑聚合个体空间及群体空间的空间交织,展现空间上的多样性尺度,营造空间趣味性与丰富性。
设计中创造了朝向不同城市界面的橱窗,有的朝向智慧公园,有的朝向中山大学,有的朝向公共中轴,有的朝向活力广场,让公众在建筑内不同空间感受不同的城市风景。
△ 城市橱窗概念
△ 建筑中的橱窗
△ 效果图
面向中轴我们还提供了一个朝向街角的城市阳台,以及引导与承接公共人群的室外剧场空间,创造积极的城市界面,与中轴充分互动。而朝向街角的城市聚场,提供了人群驻足与交流的场所。
△ 效果图
在景观设计中,我们希望充分结合场地高差,让人们在不同的标高,看到不同的风景。在低区的林下空间,听鸟叫,听虫鸣,看飘荡的芦苇;在中区的文化功能空间里,茂密的枝叶刚好将人群与城市的喧嚣相隔绝;而在高区的体育空间,层叠的树冠层与对面智慧公园连在了一起,形成一片绿海。
△ 不同标高的景观
在建筑的屋顶,我们也希望营造一片静谧的空间,让人体验光明的印象。室外的休闲草坪与云顶咖啡相结合,创造24小时的闲暇时光体验场所。
△ 效果图
针对室内空间设计,结合丰富的功能空间与橱窗的设计概念,我们提出“文体魔方”的空间设计理念,将不同属性,不同人群的空间,装载进一个方盒子里,形成奇妙的化学反应。
△ 文体魔方
首层结合城市设计理念,创造一个T字形通廊空间,有效导入人流,形成开放的街区,同时结合片区的“活力橙”色系,在建筑的核心位置置入一个螺旋楼梯艺术装置,营造建筑的IP空间。
△ 效果图
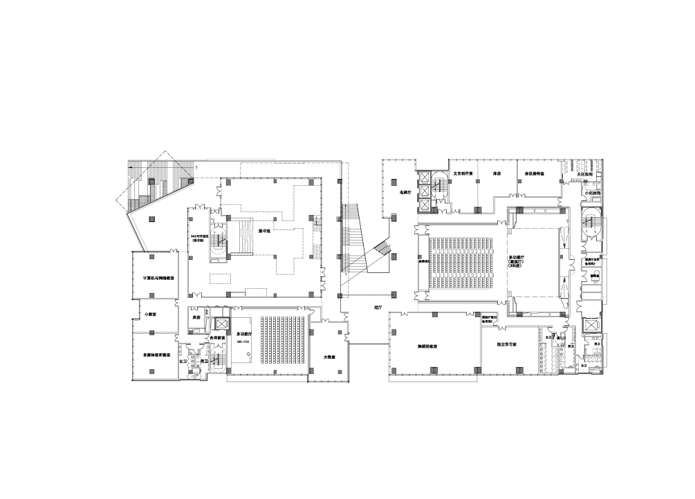
二层的图书馆作为整体建筑中最核心的功能之一,也是本次设计的重中之重,我们希望在这里创造一个关于书的装置,从中式园林里提取设计元素,结合两层空间特性,营造一个可行,可望,可游,可居的集丰富性与功能性于一体的“书苑”。
图书馆一层为富有活力的流通空间,二层则布满书架,为阅读与研究提供舒适的环境,人们从刻意营造的书屏,书阁,书廊,书亭中层层穿越,拾级而上,蓦然回首,刚好透过北侧的落地玻璃幕墙,看到远处的智慧公园之景。
△ 效果图
高区的综合体育馆以大跨度空间,容纳多样弹性的体育活动,主题化的特色空间,为周边年轻人群提供了一个丰富的非正式交流场所。
△ 效果图
文体中心表象是环境载体的变化,实质则是群体的交织、流动、集聚。既为不同人群提供专属空间,又为所有人群创造互动的公共场所,从而促进公共空间发生多样性。
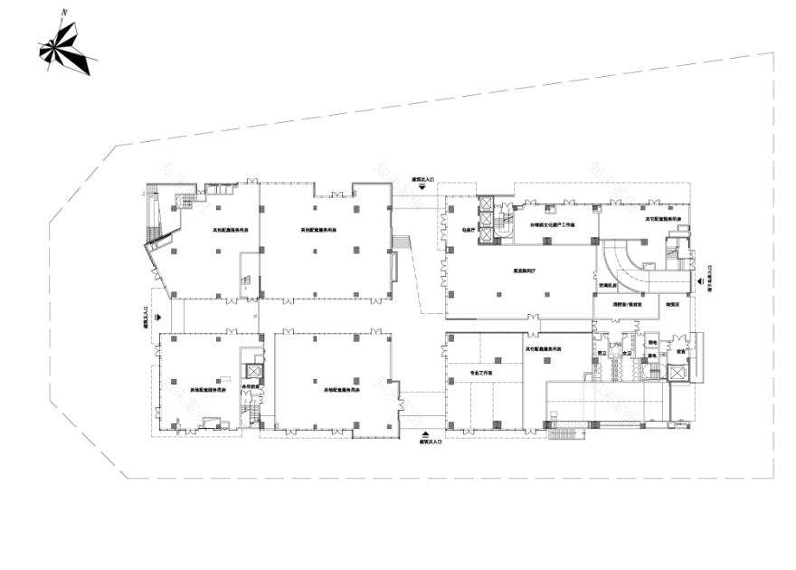
△ 一层平面图
△ 二层平面图
△ 三层平面图
△ 四层平面图
△ 屋顶平面图
△ 北立面图
△ 南立面图
△ 东立面图/西立面图
完整项目信息
项目名称: 新湖文体中心项目地点: 广东省深圳市光明区项目规模: 本项目用地面积9999.72㎡,总建筑面积34525㎡设计时间:2023年项目状态:在建,预计2025年竣工业主单位:深圳星光文体产业开发投资有限公司设计单位:深圳市立方都市工程设计有限公司设计总负表: 邱慧康设计人员:冯玉海、王博、杨龙、胡嘉毅、邓春涛、郑雄贤、王琪、洪跃胜、罗秋明、张隆旺
客服
消息
收藏
下载
最近
































