查看完整案例

收藏

下载
由 Henley Halebrown 建筑事务所设计的泰晤士基督教学校和巴特西教堂位于伦敦南区,体现了事务所对探索建筑的持续兴趣。这些建筑既创造了供人们互动的小空间,也创造了一个同心的焦点空间,人们可以直观地趋向于这个空间,同时也可以从这个空间后退。这一类型的空间可以是中庭或者大厅,例如泰晤士基督教学校,同时也避免了对走廊的额外需求。
The Thames Christian School and Battersea Chapel project in South London underscores Henley Halebrown’s continued interest in exploring buildings that create both small spaces for people to interact and a concentric focal space to which we can gravitate intuitively and, by implication, recede from. This type of space can be a courtyard or a central hall as at Thames Christian School where it has also helped to eliminate the need for corridors.
▼建筑外观,exterior of the building©David Grandorge
项目坐落于 Clapham Junction 地铁站旁,将巴特西礼教堂和泰晤士基督教学校——一座独立的合作教学中学,放置于同一屋檐下。
Sited next to Clapham Junction railway station the project brings together the Battersea Chapel Baptist Church and Thames Christian School, an independent coeducational secondary school, under one roof.
▼建筑街景,street view of the building©David Grandorge
新建的六层教学楼占地 5,000 平方米,为教堂提供了新的大厅和圣堂,也使学校扩张至 400 人,其中近一半是需要特殊教育的小孩,同时实现市内 Winstanley 和 York Road 社区的复兴。
▼分析图,diagram©Henley Halebrown
The new 6-storey 5,000m2 building provides the church with a new community hall and sanctuary, and allows the school to expand to 400 pupils, of which nearly half are on the special educational needs register, whilst enabling the regeneration of the inner city Winstanley & York Road Estate.
▼学校和教堂共用建筑,schools and churches share buildings©David Grandorge
教堂和学校共享一个矩形的二层基座,为这栋公共建筑增添一丝庄重威严。在室内,小教堂的信众聚集在大厅和圣堂中,大厅和圣堂可以合并成一个更大的空间,用于洗礼和其他大型活动。同时,学校配备有表演、用餐、体育运动和集会的空间,在课外时间也能与社区共享。对于建筑师而言,设计的目的是打造能够分配人们聚集方式的空间,既能民主又能创造等级制度的空间,以及既能分散又能团结的空间。
▼学校模型,school model©Henley Halebrown
The chapel and school share a rectilinear, two-storey plinth that gives the project the gravitas of a public building.
Within, the chapel’s congregation gather in the hall and sanctuary that can be combined into a larger space for baptisms and other big events.
Meanwhile the school hall facilitates performance, dining, physical education and assembly, and is shared with the community for events outside of school hours.
For Henley Halebrown this is about making spaces that configure the way people gather; spaces that can democratize and create hierarchies and spaces that can atomise or unite us.
▼共用的一层空间,shared ground floor space©David Grandorge
该项目毗邻铁轨和住宅街道,从 11 层高的塔式建筑和 5 层高的露台可以俯瞰整个项目。在这种情况下,该建筑为学生们创造了一处庇护所,教室略微抬高,呈四层 S 型平面。这些高层围绕东西朝向的露天庭院规划,成为学校内部生活与周边城市生活之间的微观世界。这些庭院采用了通廊式流线型设计,为教室遮阳,使教室既能采光,又能自然通风,无需依靠机械制冷就能创造舒适的学习环境。专业教学空间分散在普通教室中,使学生能够接触到学校的各种课程。
▼露天庭院,outdoor courtyard©David Grandorge
这些露天空间也体现了 Henley Halebrown 作品中反复出现的“边缘性”主题。通过拥抱这一元素,内部和外部之间的界限被打破了。这实际上为原本简单的屏障注入了活力,让墙壁感觉像是一个有人居住的空间,通过将建筑物视为其周围环境的城市延伸,而不是孤立的物体,进一步将建筑结构与周围环境联系起来,既有实际意义,又有文化意义。这在很大程度上是以一种直观的方式来体验建筑,正如建筑师所说的那样,是为了创造“建筑内部的景观”,让建筑的公共领域和私人领域不断地相互影响。
These open-air spaces also play on the recurring theme of liminality that continues to inform Henley Halebrown’s work. By embracing the elements in this way, the boundary between the inside and outside is broken. This literally breathes life into what might otherwise be a simple barrier, making the wall feel like an inhabited space that further contextualises the built fabric with its environment both practically and culturally as well by treating buildings not as isolated objects but instead as urban extensions of their surroundings. This is very much about experiencing architecture in a visceral way and, as the architects say, about creating “landscapes inside buildings” where their public and private realms continuously interplay with one another.
▼室内空间,indoor space©David Grandorge
在泰晤士基督教学校和巴特西教堂,建筑非传统的规模、形式和立面的组合为教堂和学校建立了一种都市形象。在这一社区创造了引人注目的地标效应,学校和教会的文化在建筑中得以体现。同时,乳白色砖砌体和灰色预制件的材料色调与周围街道的中性色调相协调,表明该建筑既是周围环境的一部分,又与周围环境有所区别。
At Thames Christian School and Battersea Chapel, the building’s unfamiliar scale, form, and façade composition establish a civic presence for the chapel and school. This has a welcoming landmark effect in the neighbourhood that sees the culture of the school and congregation reflected in their building. Meanwhile, the material palette of cream brickwork and grey precast harmonises with the neutral tones of the surrounding streets, suggesting the building is both part of and apart from its context.
▼室内空间,indoor space©David Grandorge
富有创造性的 S 型平面布局和通过外部的步行道进入维系住了上层所有空间之间的连结,从而使学校温暖的亲情氛围得以发展,而这是传统的走廊式教室无法实现的。学生们都很喜欢多层次的空中庭院,这为他们提供了他们所需要的室外休闲娱乐区域。该建筑给人的感觉比实际大很多,和他的占地面积不相符。艺术、戏剧、音乐、设计、计算机和科学等专业区域与普通教室相辅相成,图书馆、学习中心和休息室为学生提供了思考空间。
——Stephen Holsgrove,泰晤士基督教学校校长
The creative S shape design with access via external walkways allows connection to be maintained between all spaces on the upper levels enabling the warm relational ethos of the school to flourish in ways that would not be possible in a traditional setup with classrooms off corridors. Pupils love the multilevel courtyards in the sky which provide much needed outdoor recreational space. The building has the feel of something much larger and belies its inner-city footprint. Specialist areas for Art, Drama, Music, Design, Computing and Science complement the general classrooms and a library, study centre and common room provide reflective spaces for pupils.
——Stephen Holsgrove, Head of Thames Christian School says,
▼教堂空间,church space©David Grandorge
S 型平面布局也降低了外部的噪音,尤其是 Clapham Junction 地铁站带来的声学挑战——在最严苛的情况下,可降低 15 分贝,使外部噪音达到 55 分贝,从而使教室能够自然通风,并大大减少主动冷却措施产生的隐含碳和运营碳。
The S-shaped plan also reduces external noise levels and in particular the acoustic challenge presented by Clapham Junction railway station – by 15dB in the most onerous instance – achieving external noise levels of 55dbB allowing classrooms to be naturally ventilated and significantly reducing the embodied and operational carbon associated with active cooling measures.
▼外观,exterior©David Grandorge
除了自然通风,我们对该项目的环境策略以织物遮阳和防止过热的方法为支撑,宽敞的外部连廊为朝南、朝西和朝东的教室提供遮阴。在最近夏天的高温纪录中,学校报告所有的教室都处于适宜的温度,没有出现过热的现象。
In addition to natural ventilation, our environmental strategy for this project is supported by a fabric first approach to solar shading and overheating prevention, whereby a generous external access gallery shades south, west and east-facing classrooms. During the high temperatures recorded in recent summers, the school reported that all classrooms were comfortably occupied and did not overheat.
——设计师 Simon Henley 说道
——Simon Henley says,
不仅如此,将流动空间放置在外部的决定提高了建筑的净总面积,有效地减少了内部调节空间,减少了所需的内部分隔。种种措施一起使项目获得了 BREEAM 卓越级别认证。
更重要的是,泰晤士基督教学校和巴特西教堂项目的设计方式挑战了将建筑使用者与外部世界隔绝开来的密闭和高度工程化的环境。在这里,建筑师通过露天循环和自然通风的通透设计,实现了与大气环境的接近,使学生和教职员工与天气、时间和季节融为一体。这一设计不仅适应了气候,而且对心理健康和幸福感也有积极作用,使居住者舒适地融入周围环境。
Moreover, the decision to externalise circulation improves the building’s net to gross, effectively building less internal, tempered space and reducing the amount of internal partitioning required. These and other measures have led the scheme to be certified BREEAM Excellent.Importantly, the Thames Christian School and Battersea Chapel project has been designed in a way that challenges hermetic and highly engineered environments that divorce building occupants from the outside world. Here the proximity of the atmospheric conditions achieved by Henley Halebrown through a permeable design with open-air circulation and natural ventilation engages pupils and staff with the weather, time of day and seasons. This encourages climate-responsive behaviours and is also positive in terms of mental health and well-being, grounding occupants comfortably in their surroundings.
▼轴测图,axonometric©Henley Halebrown
▼方案场地平面,proposed masterplan©Henley Halebrown
▼场地平面,figure ground floor plan©Henley Halebrown
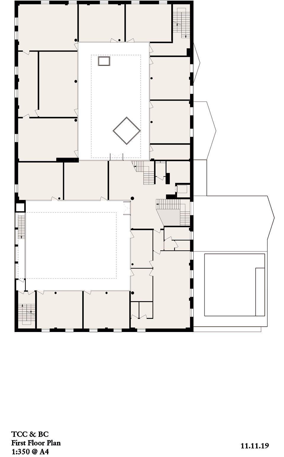
▼一层平面,ground floor plan©Henley Halebrown
▼二层平面,first floor plan©Henley Halebrown
▼三层平面,third floor plan©Henley Halebrown
▼四层平面,fourth floor plan©Henley Halebrown
▼剖面,section©Henley Halebrown
Appointment: 2017
Construction start: April 2019
Completion: 2023
Area: 5,132m2
Client: Winstanley & York Road LLP
Architect: Henley Halebrown
Project architects: Noel Cash, Jack Hawthorne(Henley Halebrown)
Project team: Lea Daniel, Gavin Hale-Brown, Simon Henley, Craig Linnell,Michael Mee(Henley Halebrown)
Executive architect: HLM
Masterplanning: HTA
Structural engineer:Pell Frischman
Services engineer: Desco
Cost consultant: Martin Arnold
Planning consultant: Montagu Evans
Landscape architect: Farrer Huxley
Acoustic engineer: AF Acoustics
Building control: MLM
Project manager: Taylor Wimpey
Main contractor: Midgard
Sustainability
Energy in use: 72.5 kWh/m2/yr
Upfront carbon: 532.2 kgCO2eq/m2
Embodied carbon: 690.6 kgCO2eq/m2
Certification: BREEAM Excellent
客服
消息
收藏
下载
最近


























