查看完整案例

收藏

下载

翻译
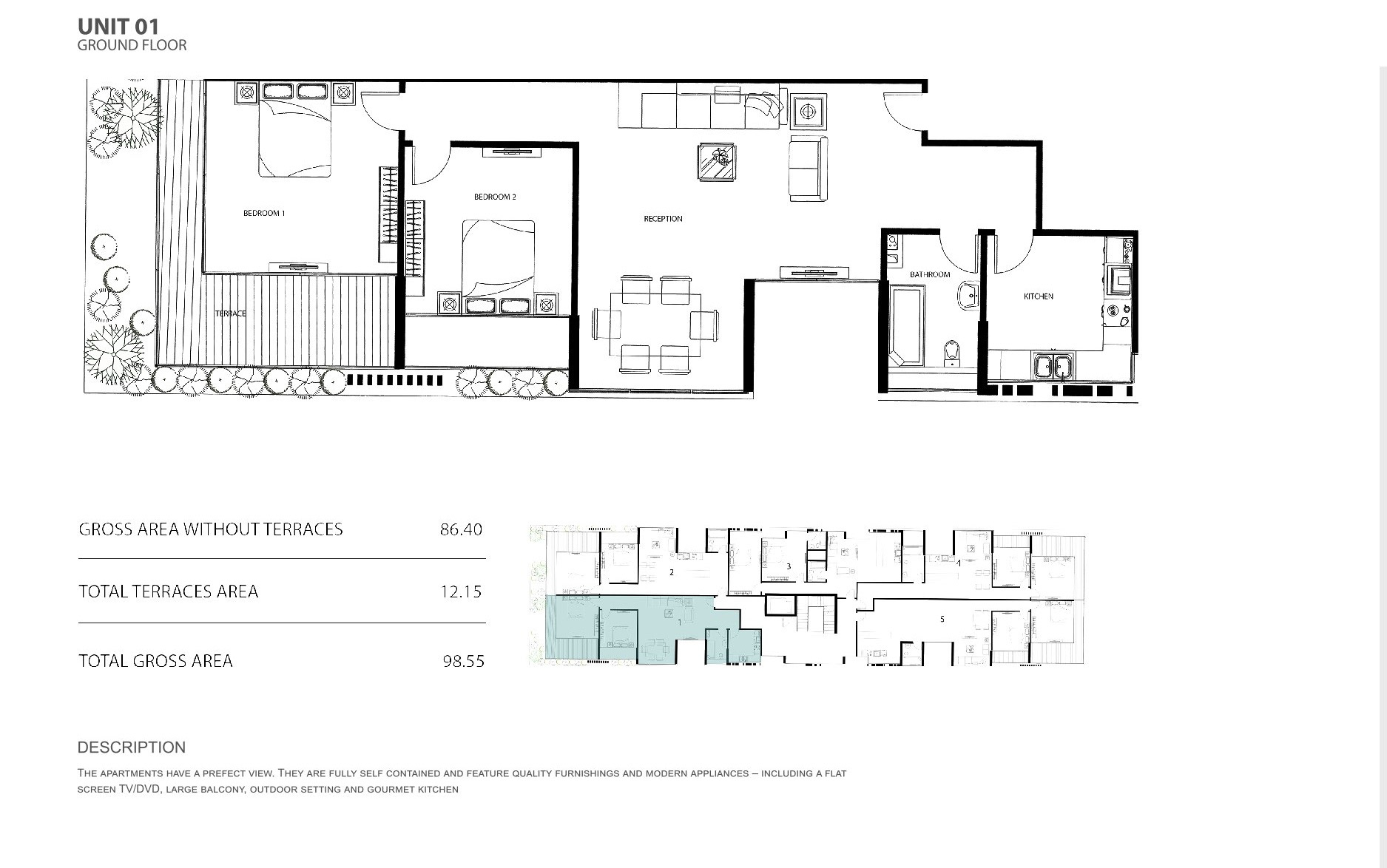
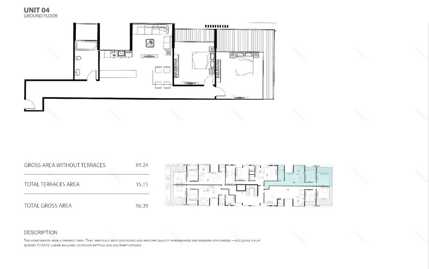
A V I L L I N O
A hotel-residential project including yacht marina, beach, commercial mall, tourist walkway, garages, VIP halls, conferences and outdoor parties
BY LE JARDIN
A building consisting of 5 residential floors and contains two floors, the ground floor and the first of a commercial mall for famous brands It consists of a marina for the yacht, a hotel, swimming pools, a tourist walkway, a garage, places for holding open parties, and places for boat maintenance.
客服
消息
收藏
下载
最近










































