查看完整案例

收藏

下载
设计理念
Design concept
每天穿梭于喧嚣的闹市中,往往身心疲惫不善安宁。在这个充满钢筋水泥的商圈环境中,我们更希望能带给业主一份隐匿于市的自然禅意与宁静。
业主的故乡位于福建霞浦,一个以海边风光著称的地方。在设计这个项目空间时,我们不仅追求自然与宁静的氛围,更希望捕捉并传达霞浦海边轻松自在的生活气息。我们的目标是创造一个无侵略性、
远离商业化的空间,让来访者能够感受到一种
“身临其境”的松弛感和亲近感。
▼入户Entrance
入口采用对称轴线偏轴门,巧妙地融合了传统大宅的气魄与现代简约主义的精炼。门扇开了杜邦透光窗格,内部结构隐约可见,既保持了私密性,又不失通透感。
随着大门开启,圆柱形的构造不仅作为空间的中心点,也象征着探索的起点,它的存在引导着视线和步伐向展厅的各个区域延伸。圆柱景观设计可以巧妙地与季节的更迭相呼应,海棠春、紫薇夏、芦苇秋、腊梅冬...
▼大厅 Hall
一抹蓝金沙在空间中央熠熠生辉,灯光如细碎的珍珠洒落,泛起层层波光。就像那大海,那沙滩,唤起了曾经在海边漫步,手中拾起贝壳的温馨回忆。
整个空间被弧形落地窗环绕,流畅的线条形似自然的海岸线,延伸至视野的尽头。两两相对的摇椅营造出一种轻松愉悦的氛围,粗砂质感的地面与薄纱幔帘的装饰,更是巧妙地模仿了渔民晾晒渔网的场景,为室内空间增添了一抹质朴的海边景象。
采用鸡爪槭和轻纱作为室内外的自然过渡,不仅模糊了室内外的界限,更赋予了空间一种日常生活的观感体验,在不经意间感受时间与空间的流转,自然与人工的和谐共存。
▼品茶区域 Tea tasting area
云朵下,茶台成为了一个宁静的聚会之所。三两好友相聚于此,享受着品茗的乐趣,闲聊着生活的趣事,暂时忘却了尘世的喧嚣。
▼办公
区域
Office area
青砖木屋和墙上的斗笠,是海边的避风港,是工作,也是生活。斗笠的质朴与木屋的温馨,共同营造出一种朴素而真实的场景,让人在忙碌之余,也能享受到海边生活的宁静与惬意。
▼展示
区域
Display area
忙碌过后,一杯咖啡,一块甜点,窗外车如游龙,窗内恬静淡然。宁静与喧嚣的对比,在匆忙的工作中也能找到片刻的安宁。
即便身处钢筋水泥构筑的高楼之中,私密的衣帽间也能成为对大自然的追求与向往的小小角落。
随着夜幕的降临,一天忙碌工作终于画上句号,看着窗外的轻轨和如织的车流,它们在夜色中交织成一幅流动的画卷。仿佛与这座城市的脉动同频,感受着它的活力与节奏。
转眼间,我又将隐入都市丛林,回归到属于自己的静谧空间。
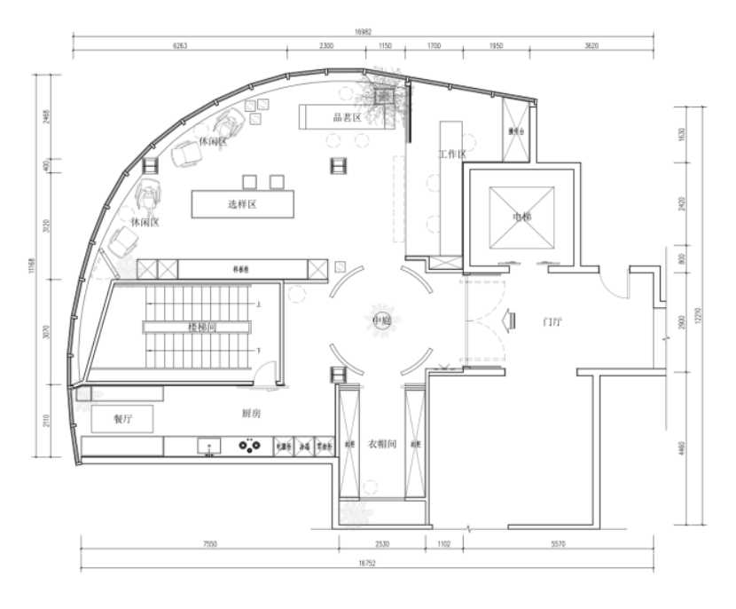
▼项目平立面设计
项目名称:山川不过,木木而林
项目业主:几木筱筑全屋定制
项目地址:上海市徐汇区中山西路
2240号C401-1
项目类型:商业空间展厅
设计团队:提喻空间设计
完成年份:
2024/
5/28
建筑面积:
100平米
摄影版权:
ADI众设像
客服
消息
收藏
下载
最近





























