查看完整案例

收藏

下载
项目基地是一块位于江苏省靖江市十圩港边宽80米,长390米的狭长用地。靖江市南临长江,属于典型的长江下游冲积平原。十圩港就是一条连通长江的水系。由于水利部门的蓝线控制要求,场地内实际可建宽度仅为60m。
项目由三个部分构成:博物馆、展示馆和茶室。政府希望通过这几个项目,使十圩港边的带状公共绿地提供一个有活力的停留点。超低的容积率让建筑与环境之间的主客体关系发生了转变,而仅60m的可建宽度也存在着新建筑介入后把基地分割的危险。设计的意义就是通过建筑重塑一种关系:抽象的重现自然。
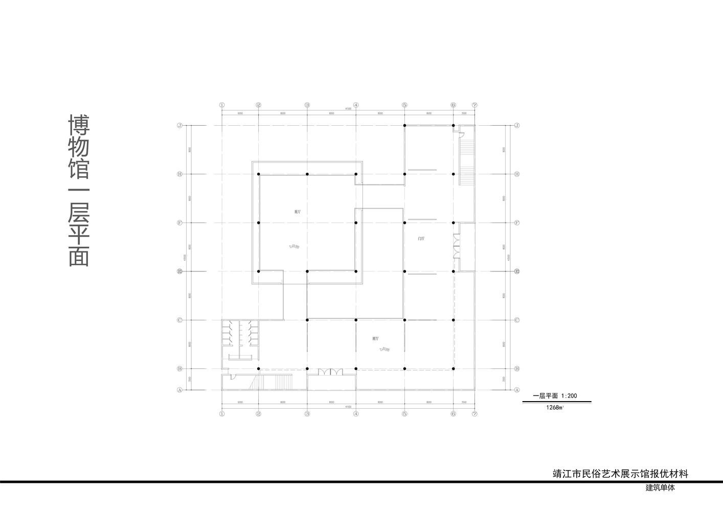
博物馆
博物馆和道路正交方式布置,设计通过一个L型的混凝土墙将建筑含蓄的包裹在基地内,靠马路一侧斜向的草坡限定了来访者进入基地的方式,也增加了对建筑的期待感和神秘性。正方大厅外围的公共空间是以一层空砌的砖作为表皮的,镂空陶土砖让阳光斑驳的撒进室内,创造了一种有趣的意境。
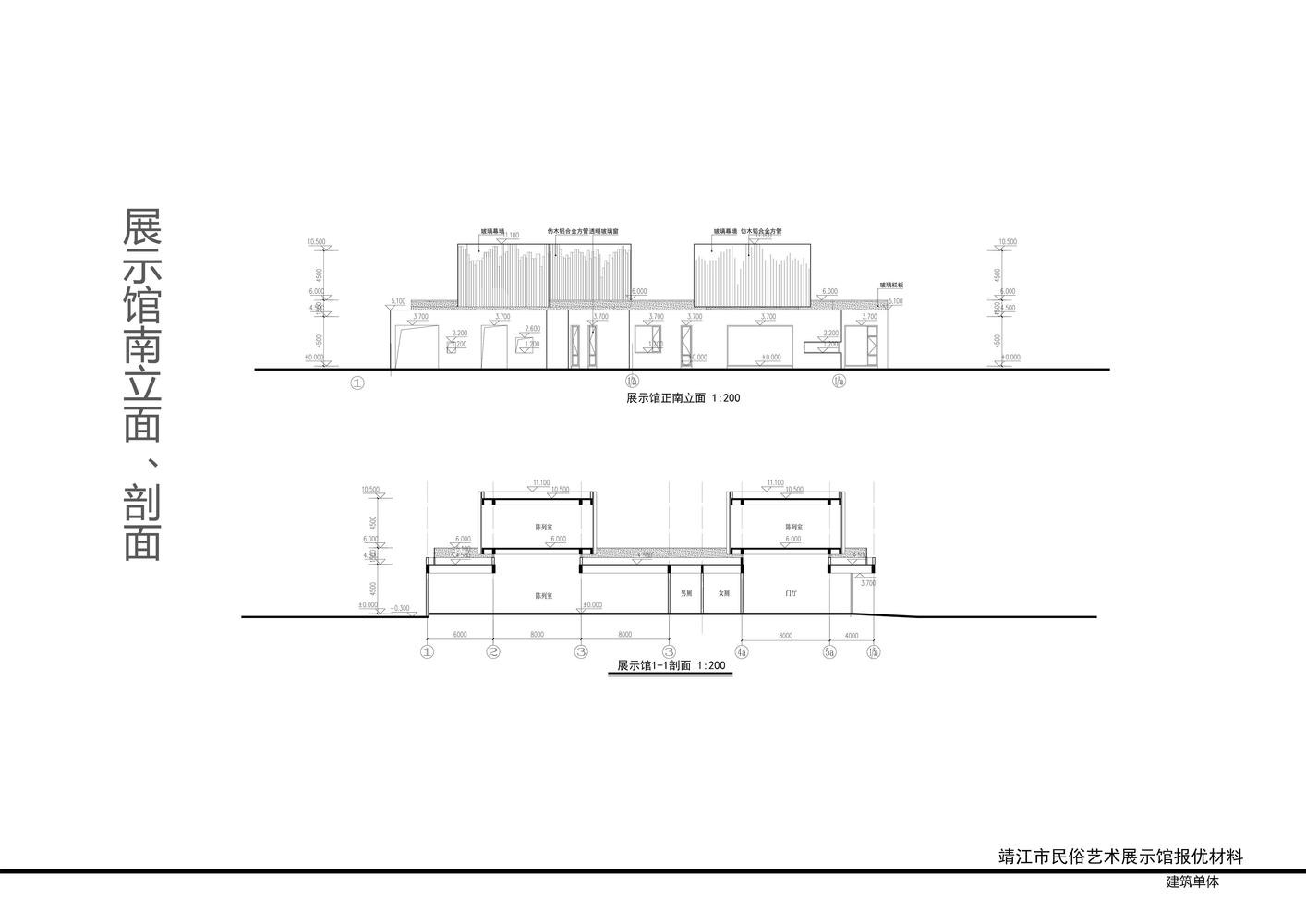
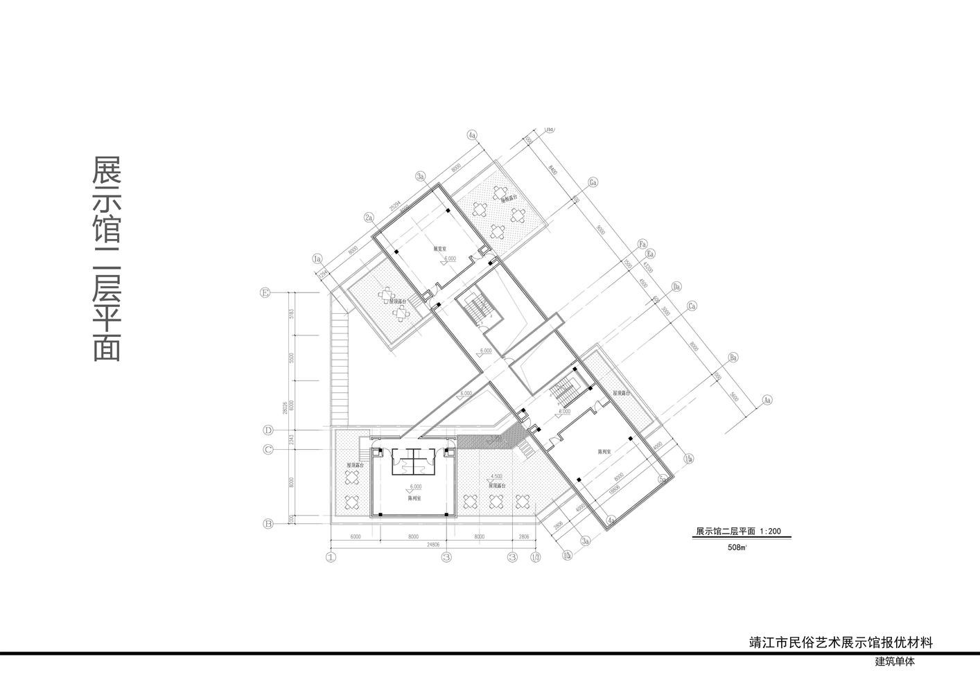
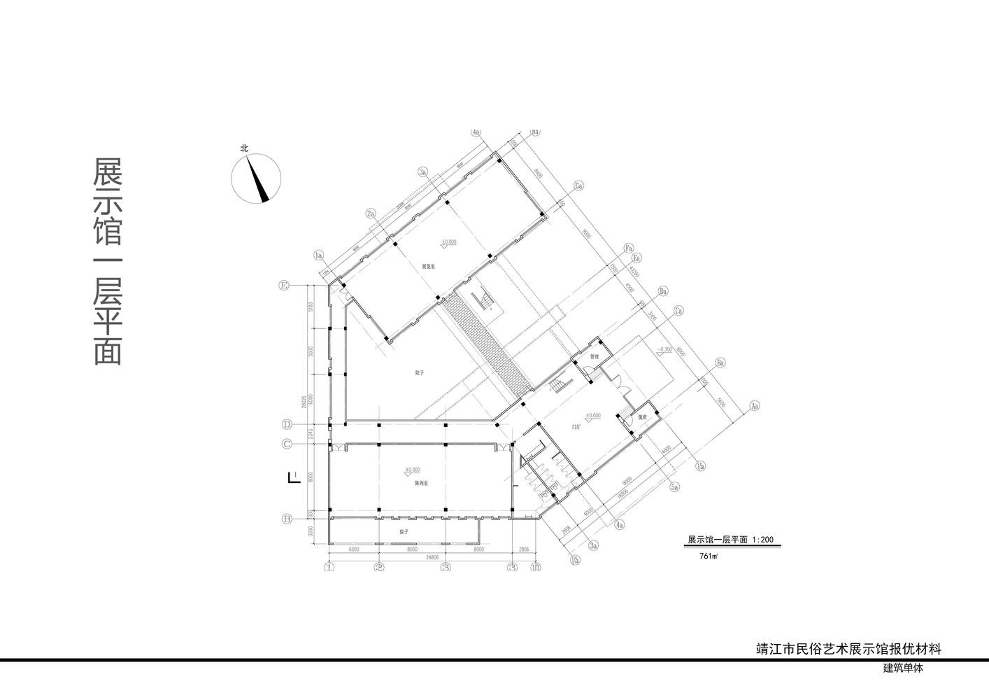
展示馆
展示馆隔水池和博物馆对望,外墙为竹模混凝土的底层和碳化竹幕墙的二层构成。两个体块相互扭转,使得场地的空间在此转折。让线性的室外空间表现出了多维的灭点,从而打破了来访者心中内在的网格系统,形成游走关系,让室外空间和建筑之间的关系呈现出了园林般的趣味。
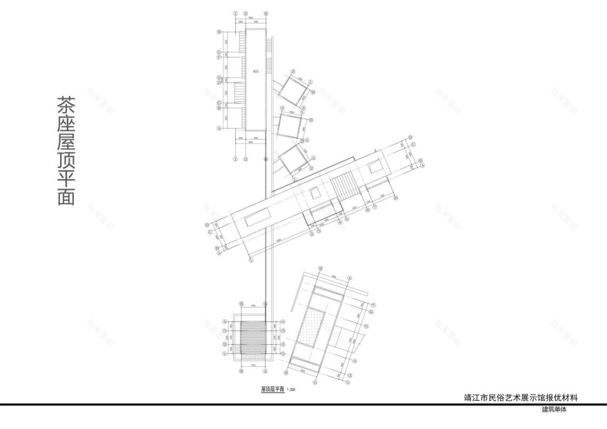
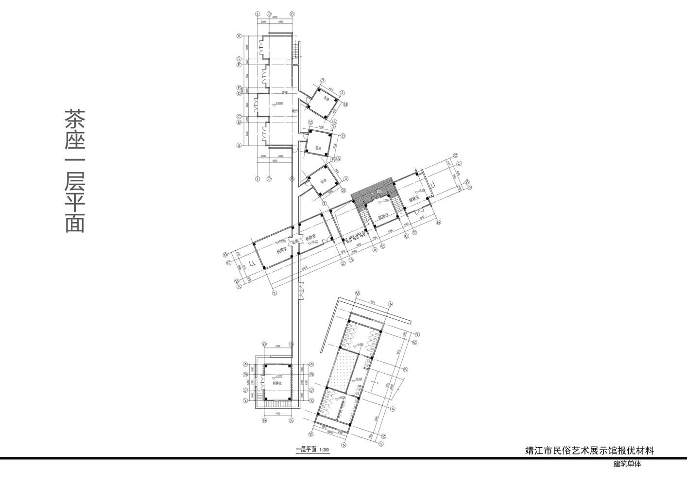
茶室
展示馆北侧是一个公共的开放绿地,茶室就掩映其中。茶室是三个建筑中结构最线性但空间又是最松散的一个。沿河线性设计是为了景观的最大化利用。而一条穿越绕行建筑到屋顶的线路则让建筑体现出了山林般的攀爬乐趣。两棵树冲破屋顶指向天空,更是模糊了建筑地面层的存在。
客服
消息
收藏
下载
最近















































