查看完整案例

收藏

下载
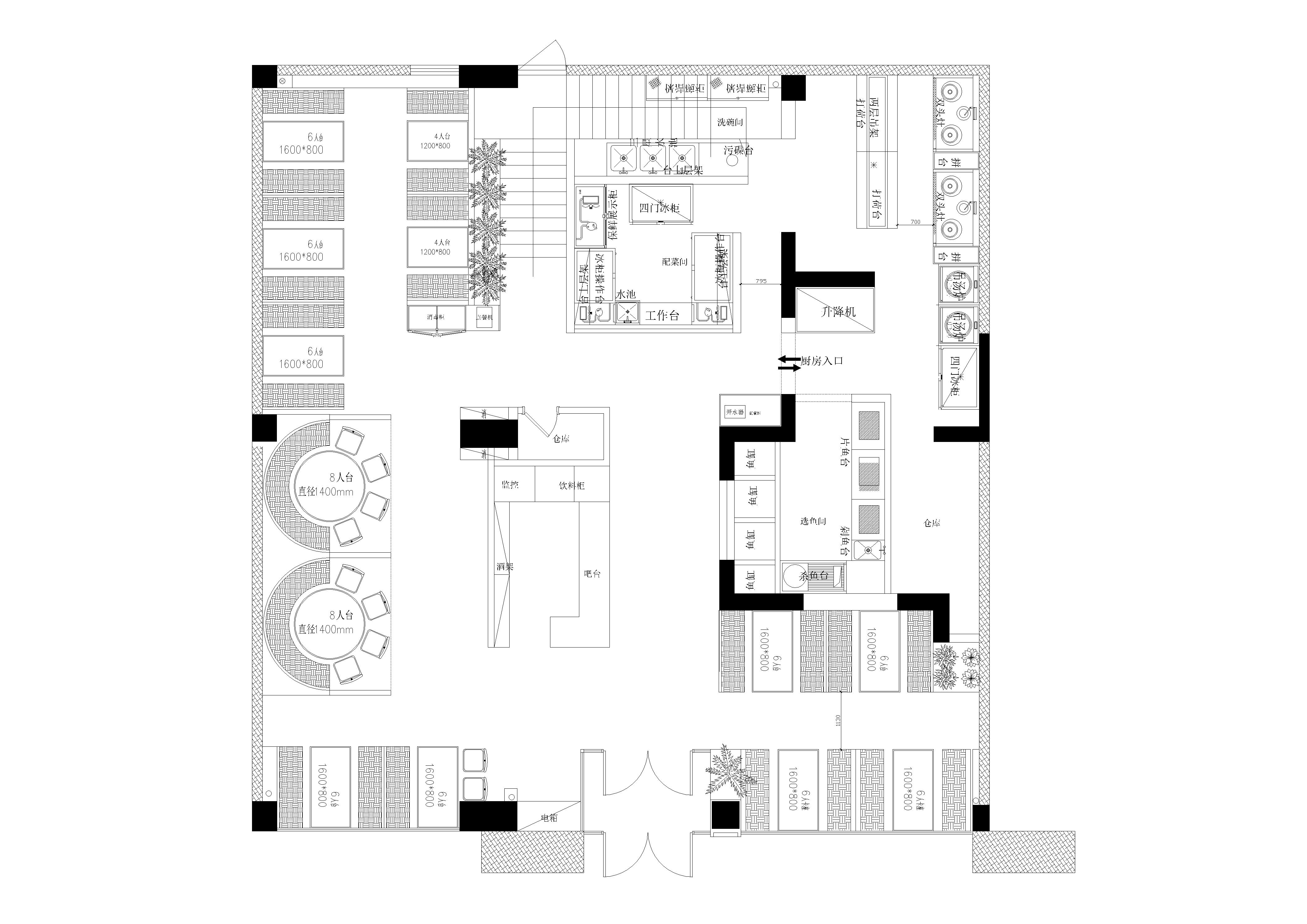
项目名称 ——齐祺渔锅
项目地点 ——河南省新乡市封丘县
项目面积 ——400m²
设计单位 ——LS空间设计事务所
设 计 师 ——Leebinean
设计风格 ——现代
一、店铺概述
我们的火锅店坐落于城市繁华地段,致力于为顾客提供独特而美味的火锅体验。我们秉持着传统与创新相结合的理念,结合现代饮食趋势,打造了一家独具匠心的火锅店。在这里,您可以尽情享受火锅带来的美味与乐趣。
二、装修风格
店内装修融合了现代与时尚的元素,营造出一种轻松愉悦的用餐氛围。我们以红色为主色调,采用舒适的座椅和温馨的灯光设计,让顾客在品尝美食的同时,也能感受到家的温暖。
客服
消息
收藏
下载
最近















