查看完整案例

收藏

下载

翻译
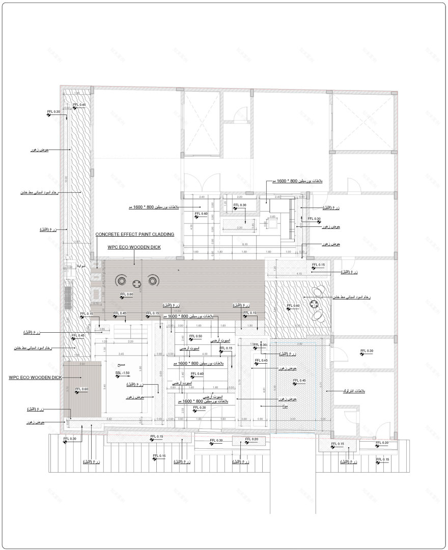
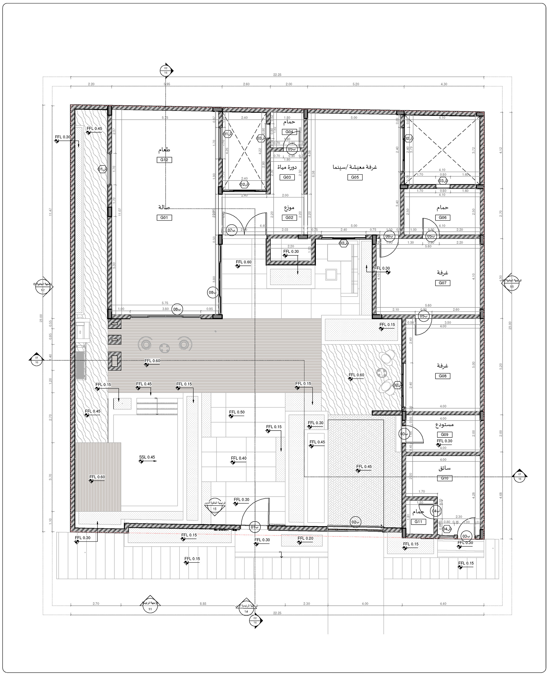
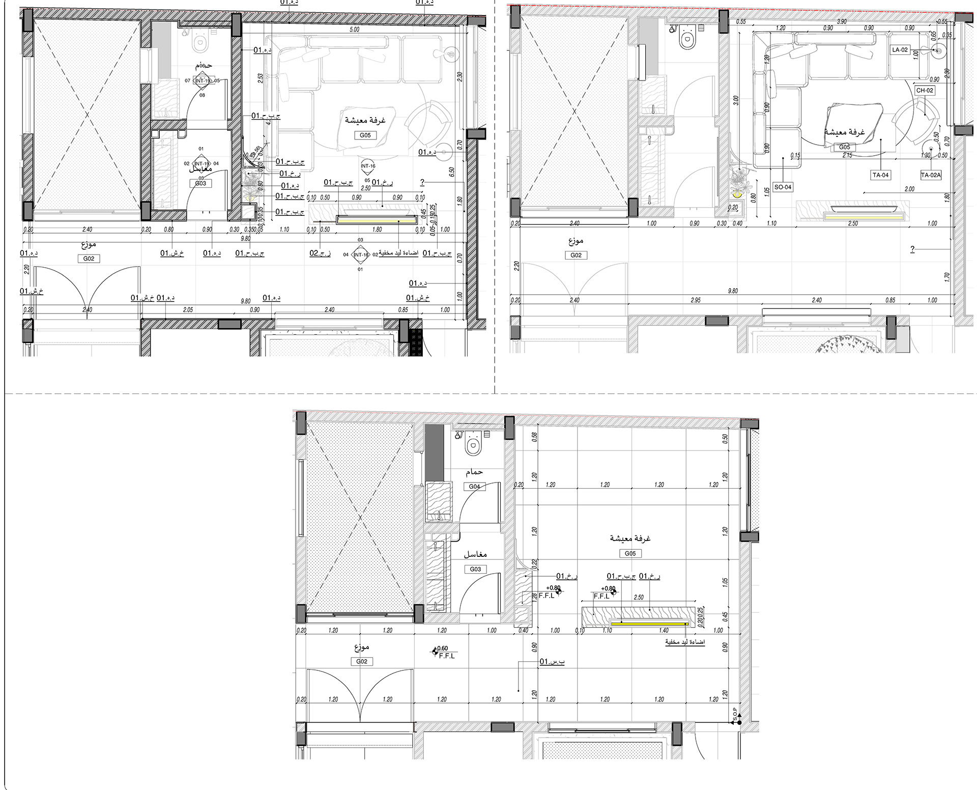
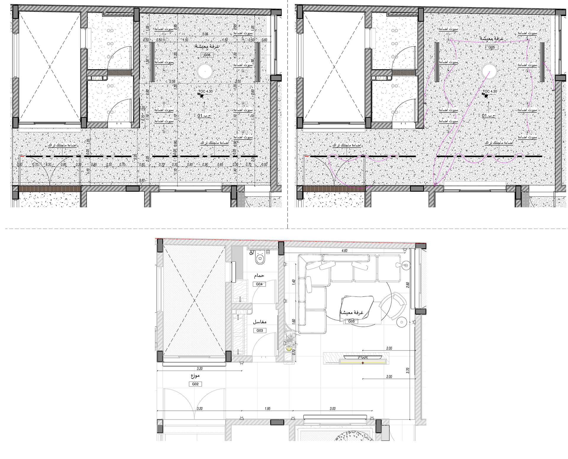
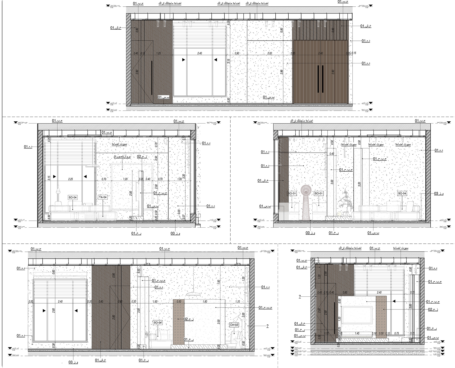
T.O Chalet - Exterior & Interior Package
Project location | Kingdom of Saudi ArabiaAssigned by | Bariq Consultants scope of work | Technical DrawingsYear | 2023
-----------------------------------------------------------------------------------------------------------------------
客服
消息
收藏
下载
最近






































