知末
知末
创作上传
VIP
收藏下载
登录 | 注册有礼

B·H·住宅外部套餐丨沙特阿拉伯丨Bariq Consultants

2024/02/26 20:57:19
查看完整案例
微信扫一扫
收藏
下载
翻译
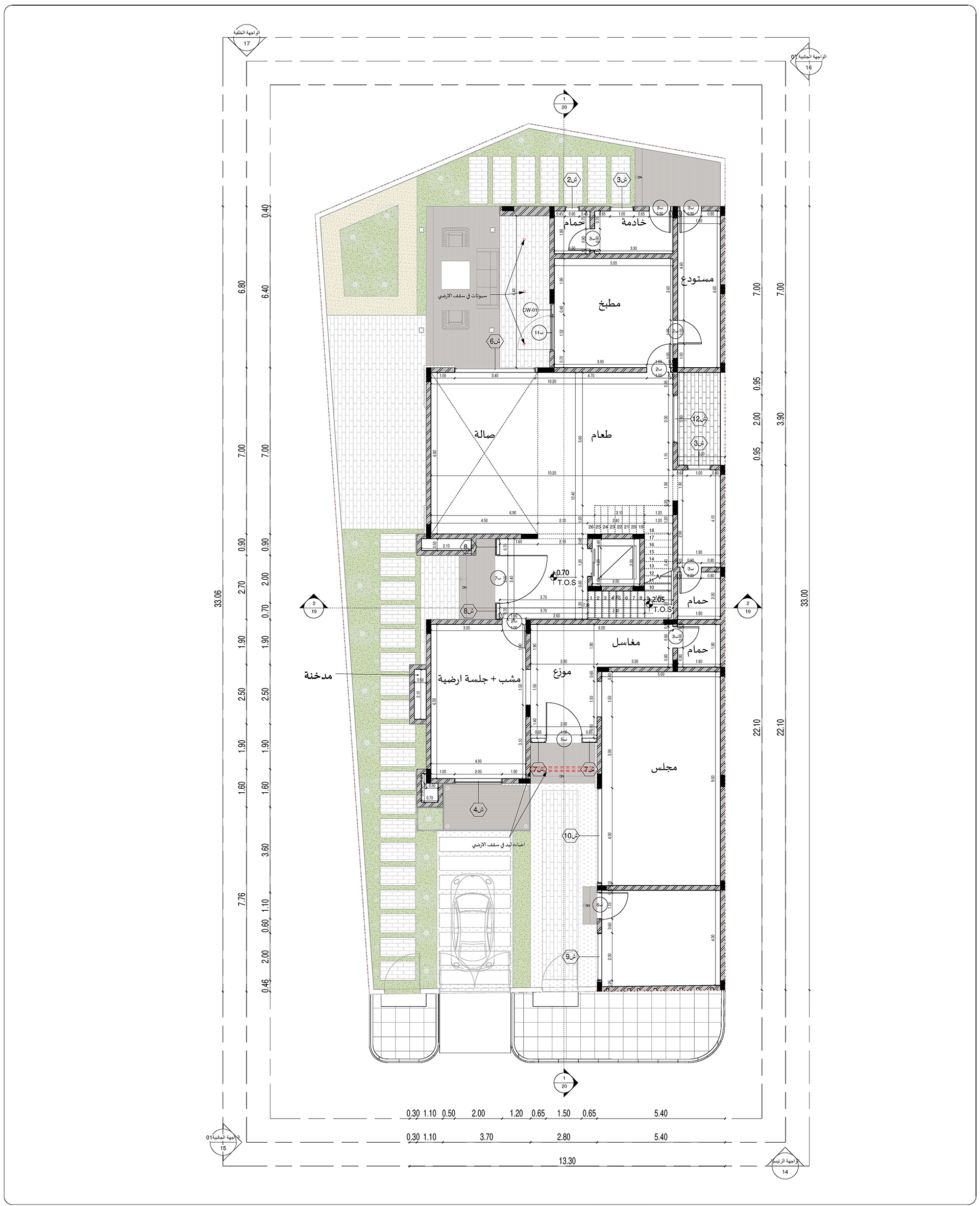
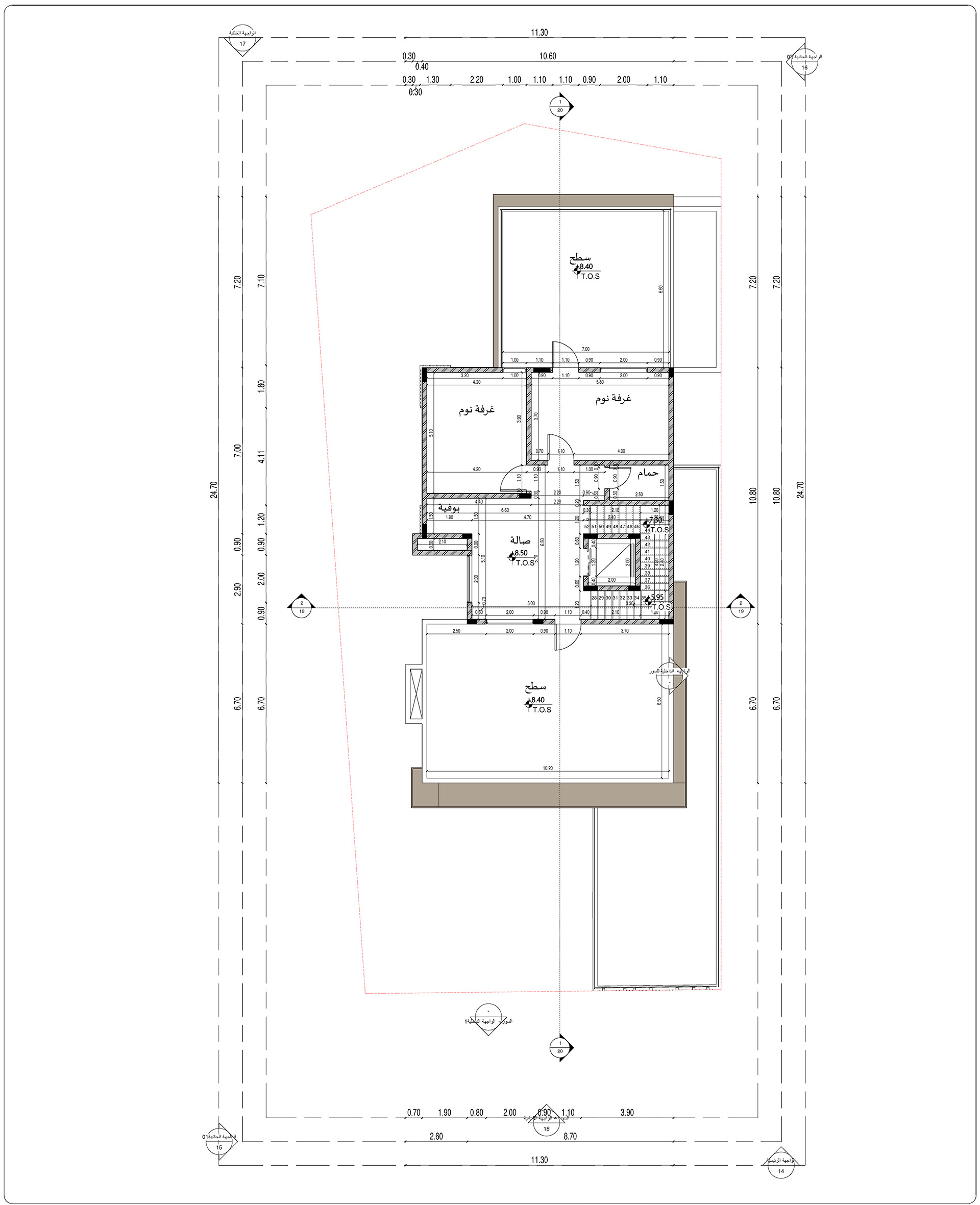
B.H. Modern Villa
Project location | Kingdom of Saudi ArabiaAssigned by | Bariq Consultants ​​​​​​​scope of work | Technical DrawingsYear | 2023
B·H·住宅外部套餐丨沙特阿拉伯丨Bariq Consultants-2
B·H·住宅外部套餐丨沙特阿拉伯丨Bariq Consultants-3
B·H·住宅外部套餐丨沙特阿拉伯丨Bariq Consultants-4
B·H·住宅外部套餐丨沙特阿拉伯丨Bariq Consultants-5
B·H·住宅外部套餐丨沙特阿拉伯丨Bariq Consultants-6
B·H·住宅外部套餐丨沙特阿拉伯丨Bariq Consultants-7
B·H·住宅外部套餐丨沙特阿拉伯丨Bariq Consultants-8
B·H·住宅外部套餐丨沙特阿拉伯丨Bariq Consultants-9
B·H·住宅外部套餐丨沙特阿拉伯丨Bariq Consultants-10
B·H·住宅外部套餐丨沙特阿拉伯丨Bariq Consultants-11
B·H·住宅外部套餐丨沙特阿拉伯丨Bariq Consultants-12
B·H·住宅外部套餐丨沙特阿拉伯丨Bariq Consultants-13
B·H·住宅外部套餐丨沙特阿拉伯丨Bariq Consultants-14
B·H·住宅外部套餐丨沙特阿拉伯丨Bariq Consultants-15
南京喵熊网络科技有限公司 苏ICP备18050492号-4知末 © 2018—2020 . All photos and trademark graphics are copyrighted by their owners.增值电信业务经营许可证(ICP)苏B2-20201444苏公网安备 32011302321234号
客服
消息
收藏
下载
最近