查看完整案例

收藏

下载
将一所废弃小学改造成一座托老所,是低生育率和人口老龄化大背景下的一种功能置换策略。我们希望通过空间改造,为 96 位海岛留守老人塑造属于他们的精神家园,唤醒他们沉淀在时光中的温馨回忆。
——孟凡浩
“Transforming an abandoned elementary school into an elderly care home is a functional repurposing strategy addressing the challenges posed by an aging population and declining birth rates. Through thoughtful spatial redesign, we aspire to create a sanctuary for the 96 elderly residents remaining on the island, rekindling their cherished memories from times past. “
– Meng Fanhao
▼日常之景,Daily view© 存在建筑-建筑摄影
在舟山群岛的怀抱中,柴山岛如同一颗被时光遗忘的珍珠。这个曾经渔业繁荣的渔村,见证了数百艘渔船满载而归的盛景。而随着渔业资源保护,过度捕捞的时代已经过去,年轻一代纷纷离岛寻找新的机遇,这里逐渐沦为了一座“孤岛”。岛上仅存的 96 位老人,成了这片土地最后的守望者。
Cradled within the embrace of the Zhoushan Archipelago, Chaishan Island is like a pearl forgotten by time. This once-thriving fishing village saw the majestic return of hundreds of boats laden with their catch. However, with the advent of fishery conservation and the end of overfishing, the younger generation left the island in pursuit of new opportunities, rendering it an “isolated island.” The remaining 96 elderly residents have become the final watchers of this land.
▼柴山岛风貌,The Scenic Charm of Chaishan Island © 图源:《梦想改造家》
随着人口向城市外迁,乡村日渐凋敝,留守老人的养老问题也日益凸显。在老龄化趋势加剧的背景下,乡村养老服务成为治理的当务之急。
为解决岛上老人的医养护理需求,line+联合创始人、主持建筑师孟凡浩受舟山市普陀区白沙管委会委托,将一所小学设计改造成一座托老所。
作为 line+的首个公益项目,我们期冀这座托老所能成为海岛的一盏明灯,驱散老人的孤独,为他们提供一个兼具公共社交与医养功能的养老家园,让老人们能够安享晚年。
As the population migrates to urban areas, rural villages fall into decline, and the issue of elderly care becomes increasingly urgent. Amidst the growing trend of an aging population, rural elderly care services have become a critical governance issue. To address the medical and nursing needs of the island’s elderly, Meng Fanhao, co-founder and chief architect of line+, was commissioned by the Baisha Management Committee of Zhoushan to transform an elementary school into an elderly care home. As the first public welfare project, we aspire for this nursing home to become a beacon on the island, alleviating the loneliness of the elderly and providing them with a sanctuary that combines public social spaces and medical care, allowing them to enjoy their later years in comfort.
▼日常之景,Daily view©存在建筑-建筑摄影
与传统乡村振兴侧重于文旅开发不同,line+以柴山岛留守老人的人文关怀为导向,帮助老人就地养老,为乡村注入生机和活力。通过创造一个拥有共享性公共空间、和谐宜居的生活环境,让他们在宁静中重拾温馨记忆,将托老所打造成连接老人与社区的桥梁,回应在乡村提供公共性养老基础服务的课题探索。
Unlike traditional rural revitalization projects that focus on cultural tourism development, line+ takes a humanitarian approach to the elderly on Chaishan Island, helping them age in place and breathe new life into the village. By creating a shared public space and a harmonious living environment, we aim to help the elderly rediscover warm memories in tranquillity, transforming the elderly care home into a bridge that connects them with the community. This project addresses the challenge of providing foundational public elderly care services in rural areas.
▼夜览鸟瞰,Bird’s eye view at night©存在建筑-建筑摄影
01.现状及限制 Current Situation and Limitations
柴山岛隶属舟山普陀区白沙乡,是一座陆域面积 0.88 平公里的悬水小岛。原有建筑地处柴山岛中心区位,是全岛屈指可数的几个公共建筑之一。场地是一栋始建于 20 年前的小学,并于 4 年前改造成为临时养老院,因为设施简陋,很少有老人愿意入住。
Chaishan Island, part of Baisha Township in Zhoushan Putuo District, is a small island with an area of 0.88 square kilometers. The original building, located in the island’s central area, is one of the few public structures. Built as an elementary school 20 years ago, it was converted into a temporary elderly care home four years ago. However, due to its basic facilities, few elderly residents were willing to stay.
▼托老所改造前,Before the renovation © line+
经由前期调研,团队对场地的现存问题予以了梳理。地形因素致使场地内外高差显著;公共区域狭促,难以契合活动需求;老人居室南向为公共走廊,加剧光照匮乏与潮湿之弊端。上述缺陷致使养老院的实际使用价值低下,不利于老人居住。因此,改造所需要解决的不单单在于建筑物的修缮,更在于空间的重构。
Preliminary research identified several key issues with the site. The terrain caused significant elevation differences within and around the site. Public areas were cramped and failed to meet activity needs. The elderly residents’ rooms faced a public corridor to the south, exacerbating issues of insufficient lighting and dampness. These deficiencies led to low usability and made the facility unsuitable for elderly living. Therefore, the renovation needed to address not only the building’s repairs but also a complete spatial reconfiguration.
▼现状问题分析,Analysis of Current Issues ©line+
在改造施工过程中,团队面临诸多挑战。柴山岛每日航运次数有限,建筑废料无法及时移至填埋场,只得暂时在岛上空余之处堆积。同时,运输水泥、沙石和钢筋等建材也是棘手难题。岛上道路狭窄且老旧,三千多吨建筑材料只能通过施工队伍分批次小规模运送至现场。
During the renovation, numerous challenges arose. Limited daily shipping routes to Chaishan Island meant building waste could not be promptly moved to landfills and had to be temporarily piled up on the island. Transporting cement, sand, and steel was also challenging. The island’s narrow and old roads required over 3,000 tons of construction materials to be transported in small batches.
▼夜览周边环境,Sourrounding context©存在建筑-建筑摄影
为解决这一问题,我们与业主团队一起讨论,决定修建一条贯通至码头的环形道路。同时,结合未来岛屿的综合开发计划,连接山顶与各区域。所有材料首先集中运抵山顶,再逐步向下配送至指定位置。
To address this issue, we discussed it with the client team and decided to build a ring road connecting to the pier. This would also integrate with the island’s future comprehensive development plan, linking the mountaintop with various areas. All materials would first be transported to the mountaintop and then gradually distributed to designated locations.
▼项目概览
Overall view
©存在建筑-建筑摄影
02.记忆的回溯
Recalling Memories
柴山岛自然原始,小居古朴,环抱于山与海之间。设计初始,孟凡浩与团队深入岛中,与岛上的老人们紧密交流,了解他们的真实需求,倾听他们的故事。在实地考察中,得知这些老人大部分都是渔民,靠海吃海。回忆往昔,那段青春壮年的时光依旧历历在目。想到过去,如今这些眼神黯淡的老人们,双眼重新焕发神采。
▼倾听留守老人的需求,Meng Fanhao in close communication with villager
Chaishan Island, naturally primitive and quaint, lies nestled between mountains and the sea. At the beginning of the design process, Meng Fanhao and the team engaged closely with the elderly residents to understand their needs and listen to their stories. During field investigations, they discovered that most of the elderly were fishermen who had lived off the sea. As they reminisced about their youth, those memories remained vivid. Reflecting on the past, the elderly’s eyes, once dim, regained a sparkle.
▼夜览鸟瞰,Bird’s eye view at night©存在建筑-建筑摄影
托老所设计灵感源自渔船,其端部形体底面经曲面处理和悬挑,使整体形象更为鲜明,宛如一艘“漂浮”于岛上的船只。以此触动老人的情绪与感知体验,唤醒老人的青春记忆,且以建筑为媒介传递柴山岛的故事。
The design of the care home draws inspiration from fishing boats, featuring curved end shapes and cantilevers that create a striking appearance, making it resemble a “floating” boat on the island. This design evokes the emotions and sensory experiences of the elderly, awakening their youthful memories and using architecture as a medium to convey the story of Chaishan Island.
▼生成分析,Generating Analysis ©line+
▼项目模型,Model Photo ©line+
03 公共空间最大化,立体化
Maximizing and Structuring Public Space
改造前托老所住有 4 位老人,其余岛上老人则居家养老。随着老年人的生活半径会随着年龄的增加逐步缩小,老人更需要聚集性公共空间满足日常、文化和社会交往需求。改造旨在帮助老人与社会建立联系纽带,减少他们的孤独感。
Before the renovation, the care home housed only four elderly individuals, while the rest of the island’s seniors aged in place. As the living radius of the elderly shrinks with age, they increasingly need communal public spaces to meet their daily, cultural, and social needs. The renovation aims to help the elderly establish social connections, reducing their sense of loneliness.
▼建筑概览,Overall view©存在建筑-建筑摄影
▼建筑近景,Close view©存在建筑-建筑摄影
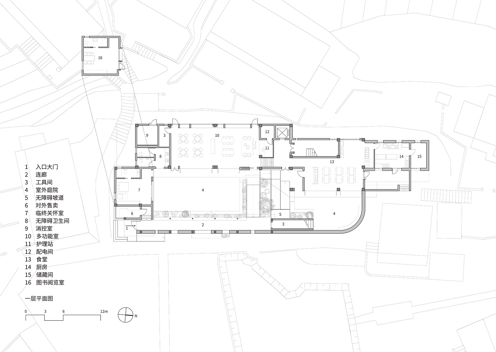
因为用地面积狭小,我们将首层空间全部用于公共空间,临终关怀室、共享食堂、厨房、多功能厅等,开放给岛上所有居民,二层则是养老居住空间。
▼1F 平面改造前后对比,Before and After Comparison of Ground Floor Renovation ©line+
Given the limited land area, the entire first floor was dedicated to public spaces, including a hospice, shared dining hall, kitchen, and multipurpose hall, all open to the island’s residents. The second floor is reserved for elderly living quarters.
▼空间展示,Space display© line+
设置多层屋顶露台,以一条坡道串联首层院落与所有露台,用花池和座椅区隔动线与空间,为老人提供充足的户外活动和停留空间,实现狭小用地下的公共空间最大化和立体化。
Multi-level rooftop terraces, connected by a ramp from the first-floor courtyard, use flower beds and benches to separate movement lines and spaces. This design provides the elderly with ample outdoor activity and resting areas, maximizing and structuring the public space in the limited area.
▼屋顶露台,Multi-level rooftop terraces ©存在建筑-建筑摄影
流线重组
Restructuring the Flow
原托老所依山而建,所占的东西两块台地间有 1.2 米的高差。若仅抬高西侧地基,从场地外部进入院落内的高差达到近两米,对老人不便。因此,我们保留原台地,将西侧地势低的台地与外部道路相连,确保通行无阻。
▼改造前院落空间,Courtyard Before Renovation © line+
The original care home was built on the hillside, with a 1.2-meter height difference between the east and west terraces. Raising the west side foundation alone would create a nearly two-meter height difference from the external road to the courtyard, inconvenient for the elderly. Therefore, we retained the original terraces, connecting the lower western terrace with the external road to ensure unobstructed access.
▼院落空间,Courtyard space ©存在建筑-建筑摄影
原院落虽开敞但空间利用率低。为了塑造新的空间层次,我们改变入口位置,优化动线,使用一条连廊将人流引导至中间一层院落空间再进入室内,串联托老所的外部与内部。
The original courtyard, though open, had low space utilization. To create new spatial levels, we changed the entrance position, optimizing movement lines. A corridor guides people to enter the indoor space through the central courtyard, linking the place’s exterior and interior.
▼入口位置,Entrance©存在建筑-建筑摄影
▼走廊空间,Corridor space©存在建筑-建筑摄影
开放庭院与多功能厅的边界,在保留院子完整性的同时,增大了户外公共区域与室内的联动性,实现主院落室内外的景观互动,增强托老所的社交性。
Boundaries between the courtyard and the multipurpose hall were opened, increasing interaction between outdoor public areas and indoor spaces while preserving the courtyard’s integrity. This enhances the social aspect of the main courtyard by promoting indoor-outdoor landscape interaction.
▼户外公共空间,Outdoor public areas ©存在建筑-建筑摄影
▼室内外互动,Indoor and outdoor interaction ©存在建筑-建筑摄影
厨房与食堂的联动 Kitchen and Dining Hall Integration
在一层东侧,我们将场地周边的一栋民居纳入到整体改造范围中,将其与主体建筑连接,共同构建成了一个宽敞明亮的共享食堂和厨房。这一改造不仅为老人们提供了一个更高质量的用餐空间,更是成为了一个活动交流的多功能空间。
▼改造前餐厅内部空间,Interior Space of the Dining Hall Before Renovation © line+
On the eastern side of the first floor, we incorporated a nearby residential building into the overall renovation plan, connecting it to the main structure to create a spacious, bright shared dining hall and kitchen. This transformation not only provides a higher quality dining space for the elderly but also serves as a multifunctional space for activities and interactions.
▼餐厅,Dining Hall ©存在建筑-建筑摄影
屋顶视野创造
Creating Rooftop Views
屋顶空间改造加强托老所与岛屿景观联系,拓宽老人视野。屋顶花园预留了天窗,增强二层卫生间的采光,最大限度地增加了光线进入建筑的方式。
The rooftop space renovation strengthens the connection between the nursing home and the island’s landscape, broadening the elderly’s view.
The rooftop garden includes skylights to enhance the lighting in second-floor bathrooms, maximizing sunlight penetration into the building.
▼屋顶空间,The rooftop space ©存在建筑-建筑摄影
▼屋顶空间近景,The rooftop space detials©存在建筑-建筑摄影
▼二层卫生间采光,Second floor bathroom lighting ©存在建筑-建筑摄影
围绕天窗还建造了座椅、菜园等景观空间。同时,增设视野开阔的屋顶茶室,丰富了屋顶的活动性和功能性。宽敞明亮的窗户将小岛风景揽入茶室,提供给老人一个自然雅致的休憩交流空间。
Around the skylights, landscaped spaces with seating areas and vegetable gardens were created. A rooftop tearoom with expansive views was also added, enriching the functionality and activity options of the rooftop. Large windows capture the island scenery, providing the elderly with a natural and elegant space for rest and social interaction.
▼屋顶茶室,Rooftop tearoom ©存在建筑-建筑摄影
对屋面的空间释放,放大了景观势能,扩大实际使用面积。让老人从屋顶视角眺望岛屿和大海,增添慰藉。
Expanding rooftop space increases the landscape’s potential and usable area. From the rooftop perspective, the elderly could observe the island and the sea, providing comfort.
▼屋顶远眺,Rooftop view ©存在建筑-建筑摄影
04.医养空间的蜕变
Transformation of Medical and Nursing Spaces
针对建筑空间布局不均、功能兼容性差的问题,我们通过区域划分,实现小空间多功能融合,优化医养空间布局。
To address the issues of uneven space layout and poor functional compatibility, area division was employed to optimize the layout of medical and nursing spaces, achieving multifunctional integration in small areas.
▼爆炸分析图,Exploded Diagram © line+
居住区的重塑
Reshaping living area
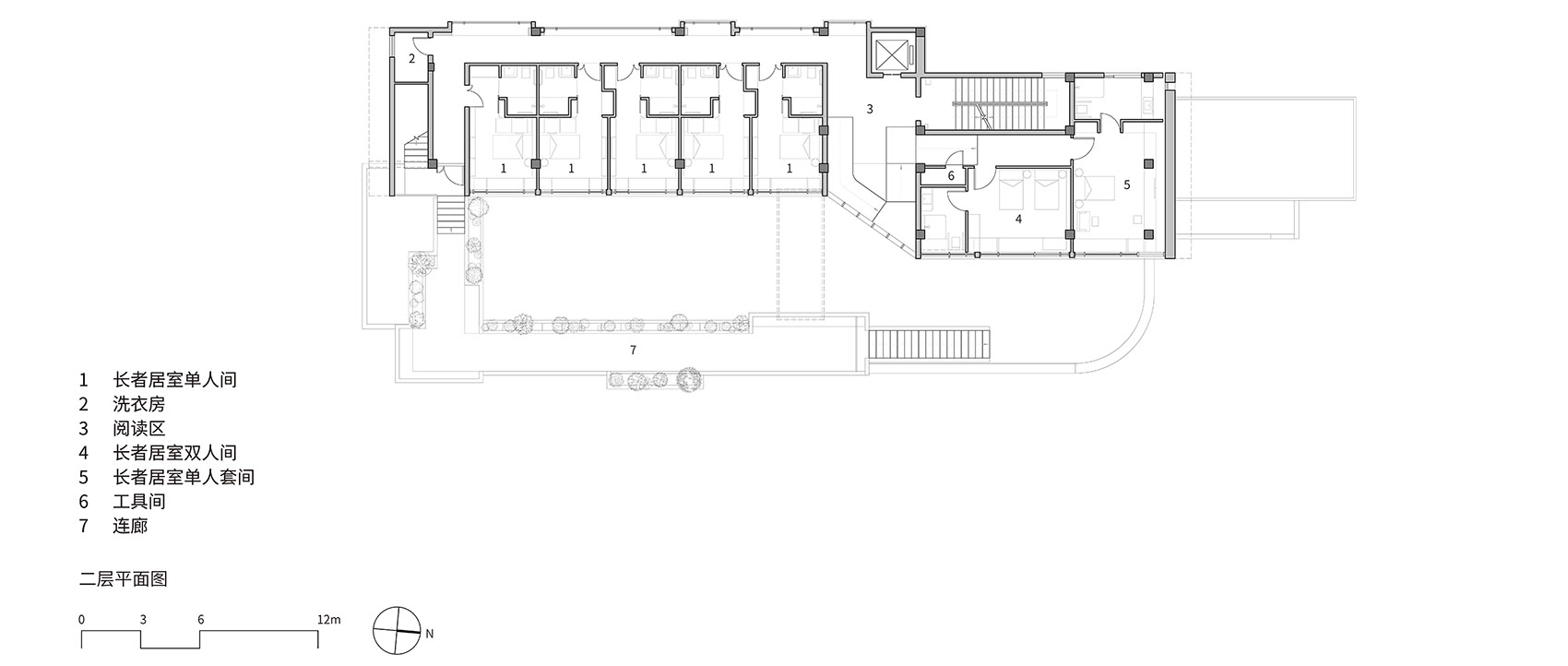
二层原为居住空间,改造前,走廊位于建筑朝阳面,对老人卧室的采光有较大影响。基于此,我们将走廊、楼梯等辅助动线调整至建筑背阴面,而将向阳面留给老人居住,以提供更好的光照、通风和视野。
▼2F 平面改造前后对比,Before and After Comparison of Second Floor Renovation © line+
▼改造前老人卧室,Bedroom Before Renovation © line+
▼窗套体系轴测图,Axonometric Drawing of Window Casing System © line+
The previous second-floor living spaces suffered from poor lighting and ventilation. Before the renovation, a south-facing corridor occupied the sunny side of the building, affecting the light in the elderly’s bedrooms. Based on this, auxiliary movement lines like corridors and staircases were moved to the north side, repurposing the south-facing space for elderly bedrooms to ensure ample light, ventilation, and views.
▼卧室空间,Bedroom©存在建筑-建筑摄影
▼窗台处,Window sill ©存在建筑-建筑摄影
原本二层有连接东西建筑的高差区域,不便于老人通行。从而加入一个公共空间,将东西两边标高不同的卧室区分隔开,用无障碍坡道连接。还增设了书吧这类多样化休息、交流空间。书吧将室内空间室外化,让出行不便的老人也能亲近自然,享受岛屿风光。
▼改造前建筑内部高差区域,Interior Height Difference Area Before Renovation © line+
The original second floor had height differences between the east and west buildings, making it difficult for the elderly to pass through. To solve this, a public space was added to separate the east and west bedroom areas with different heights, connected by an accessible ramp. A book bar was also added, providing diverse rest and interaction spaces. This book bar integrates indoor and outdoor spaces, allowing elderly residents with mobility issues to enjoy nature and the island scenery.
▼无障碍空间,Accessible rampe©存在建筑-建筑摄影
适老化提升 Elderly-oriented enhancement 安全性是适老化设计的关键,改造目标为打造有适老化细节的建筑空间。原建筑内由于高低地势而建造的陡峭台阶对于养老居住并不合理。因此,改造时移动楼梯间至场地中心,并配置一台可达屋面层的电梯联系各个空间,垂直交通动线的方式解决了老人上下楼的问题。
Safety is paramount in elderly-oriented design, focusing on creating a space with age-friendly details. The original building’s steep stairs, due to varying elevations, were unsuitable for senior residents. During the renovation, the stairwell was relocated to the center of the site, and an elevator was installed to reach the roof level, connecting all spaces and addressing the vertical movement challenges for the elderly.
▼远观,Distant view©存在建筑-建筑摄影
同时,将室内外全部楼梯踏步放宽改缓,增加扶手适合老人缓步而行。在整体空间中全部采用无障碍通道相连,提高场地的通达性。设置间隔性的座椅辅助于长距离走廊,辅助行动不便老人休息。
▼改造前内部空间,Interior Space Before Renovation © line+
Indoor and outdoor stair steps were widened and gentled, and handrails were added to accommodate the elderly’s pace. Accessible pathways now connect the entire space, enhancing site accessibility. Intermittent seating along long corridors provides rest spots for those with mobility difficulties.
▼走廊空间,Corridor©存在建筑-建筑摄影
▼楼梯空间,Stairs©存在建筑-建筑摄影
在老人卧室中强化了适老性细节,更新了专业的护理床和呼救设备提升护老便捷性,并将家具的边角都经过了处理,减少了尖锐的边缘和角落。
In the bedrooms, enriched elder-friendly details are updated with professional nursing beds and emergency equipment for convenience. Furthermore, treated furniture edges to reduce sharp corners.
▼卧房细部,Bedroom detials©存在建筑-建筑摄影
原卫生间空间狭小,不满足无障碍设计规范 1.5m 的轮椅回转空间,因此整改了布局,提高室内无障碍设施的合规性。同时消除卧室与卫生间之间的地面高差,将光面地砖替换为防滑耐摔的水磨石材质,提升了内部空间使用的安全性。
▼改造前卫生间,Bathroom Before Renovation © line+
The original bathrooms were small and did not meet the 1.5-meter wheelchair turning radius requirement for accessible design. The layout was redesigned to improve compliance with accessibility standards, eliminate height differences between bedrooms and bathrooms, and replace smooth tiles with non-slip terrazzo, enhancing safety.
▼卫生间,Toliet©存在建筑-建筑摄影
05.色彩与在地材料的延续
Continuation of Colors and Local Materials
我们尊重岛上的场地记忆和村落肌理,为了更好的将建筑融入环境,使用在地元素作为色彩与材料运用的依据。
Respecting the island’s memory and village texture, local elements were used as the basis for color and material application to seamlessly integrate the building with its environment.
▼柴山岛民居立面风貌,Residential facade style © line+
红与蓝缘起于渔民为船只涂上新漆之后,总将剩余的颜料涂于自家门窗上,这些色彩凝聚成了特有的居民立面印记。我们将红色和蓝色使用在二层卧室的外部立面以及内部窗台上,也以彩漆木板的形式穿插于交通空间和户外坡道上。鲜明的色彩帮助老人清晰定位空间,区别场地内不同地点。
The use of red and blue originated from fishermen who painted their boats and then used the leftover paint on their home doors and windows, creating unique facade imprints. These colors were applied to the exterior facades and interior windowsills of the second-floor bedrooms, as well as on painted wood panels in movement spaces and outdoor ramps. These distinct colors help the elderly navigate and distinguish different areas within the site.
▼建筑外观,Exterior view©存在建筑-建筑摄影
▼建筑外观近景,Exterior close view©存在建筑-建筑摄影
建筑主体材料选用了水洗石涂料,以其独特的颗粒感赋予建筑表面丰富的肌理效果,显著提升了建筑的质感。入口围墙应用岛上常用的毛石材料,连廊采用钢柱,形成轻与重的对比,丰富托老所的材料层次,呼应在地建筑氛围。
The main building material is washed stone paint, which gives the surface a rich texture with its unique graininess, significantly enhancing the building’s aesthetics. The entrance wall features locally common rubble stone, while the corridor uses steel columns, creating a contrast between light and heavy materials and enriching the care home’s material layers to echo the local architectural atmosphere.
▼立面材质,Facade materials © line+
▼立面材质细部,Facade materials detials©存在建筑-建筑摄影
▼墙身细部,Facade detials©存在建筑-建筑摄影
此外,周围老房子中常常将渔网作为入口或者围栏的隔档材料。我们提取这一元素,将连廊和顶层眺望灯塔的防护网的质地仿照渔网样式呈现,赋予材料新的表现力。
Additionally, old houses often used fishing nets as barriers for entrances or fences. This element was incorporated into the design, with fishing net-like materials used for the corridor and rooftop lookout tower safety nets, giving these materials new expressive power.
▼隔档材料,Barriers©存在建筑-建筑摄影
06.结语
Conclusion
柴山岛的老人们与海相依,生于海边、养于海边,也许就是他们最朴实的愿望。深知这份期盼与需求,line+怀着对乡村激活和振兴的关注,投身于这个公益性托老所项目。我们渴盼能让更多人留意到这些弱势群体的生活景况,期冀将其打造成契合养老需求且独具在地特色的空间,为留守老人送上温暖与关怀。
The elderly residents of Chaishan Island have always lived by the sea, born and raised by its shores, reflecting their simplest wishes. Understanding this deep-seated need, line+ took on the public welfare project of revitalizing the elderly care home, focusing on rural activation and revitalization. The aim is to draw more attention to the living conditions of these vulnerable groups, creating a space that meets elderly care needs while preserving local characteristics, and offering warmth and care to the elderly residents left behind.
▼全景夜览,Night view©存在建筑-建筑摄影
▼生活场景,Life scenes ©存在建筑-建筑摄影
此次项目,不仅是乡村改造设计上的一次探索与实践,更是心灵的一场深深触动与传递。我们联动各行业的精英团队,共同为柴山岛的未来助力。在此,我们衷心感谢所有参与此项目的团队与赞助品牌,正因有你们,柴山岛的浮船之梦得以更臻圆满,孤岛不孤。
This project is not only an exploration and practice in rural renovation design but also a heartfelt touch and transmission. We mobilized elite teams from various design industries to contribute to the future of Chaishan Island. Heartfelt thanks go to all the teams and sponsoring brands involved in this project. Your efforts have made the dream of a floating boat on Chaishan Island a more perfect reality, ensuring that this isolated island is no longer lonely.
▼总平面图,Site Plan © line+
▼一层平面图,Ground Floor Plan © line+
▼二层平面图
Second Floor Plan© line+
▼三层平面图,Third Floor Plan© line+
▼四层平面图,Fourth Floor Plan© line+
▼剖面图,Section © line+
▼墙身大样,Wall Section © line+
项目名称:白沙港村托老所
建筑、室内、景观设计:line+建筑事务所
主持建筑师/项目主创:孟凡浩
项目建筑师:何雅量
设计团队:徐一凡、胥昊、王炯皓(实习)(建筑),金煜庭、范笑笑、叶鑫、徐以唱、金凯迪、张玮轩(实习)、陈寒熙(实习)(室内),李上阳、金剑波、饶非儿、苏陈娟(景观)
驻场设计师:徐一凡、徐以唱、叶鑫
业主:舟山市普陀区白沙岛管委会
项目策划:朱晓鸣、赵利军
节目合作方:上海东方卫视梦想改造家
施工图合作单位:三峡大学建筑设计研究院
施工总包单位:浙江昌屹建设有限公司
现场施工总协调:赵利军
导视设计:M.TP 104
项目位置:浙江舟山,柴山岛
建筑面积:799㎡
设计周期:2023/6-2023/9
建设周期:2023/9-2024/5
结构:钢筋混凝土框架结构
材料:混凝土、钢材、水洗石涂料、肌理涂料、哑光不锈钢、木纤维板、毛石
摄影:存在建筑-建筑摄影、line+
感谢赞助品牌
外立面水洗石:特丽宇
外立面木纤维板:克姆伍德
门窗:墅标门窗
室内涂料:立邦涂料
室内厨电:林内
室内木作:墅湃家居
瓷砖地砖:东鹏瓷砖
灯光灯具:企一照明
空调地暖:约克空调
卫浴:恒洁卫浴
水磨石,岩板:东星
室外座椅:宁波禾隆新材料
Project Name: Baisha Port Village Elderly Care Home
Architectural, Interior, and Landscape Design: line+ studio
Chief Architect/Project Lead: Meng Fanhao
Project Architect: He Yaliang
Design Team: Xu Yifan, Xu Hao, Wang Jionghao (Intern) (Architecture), Jin Yuting, Fan Xiaoxiao, Ye Xin, Xu Yichang, Jin Kaidi, Zhang Weixuan (Intern), Chen Hanxi (Intern) (Interior), Li Shangyang, Jin Jianbo, Rao Feier, Su Chenjuan (Landscape)
On-Site Designer: Xu Yifan, Xu Yichang, Ye Xin
Client: Baisha Island Management Committee, Zhoushan Putuo District
Project Planning: Zhu Xiaoming, Zhao Lijun
Program Partner: Dragon Television Dream Home Makeover
Construction Drawing Partner: China Three Gorges University Architectural Design Institute
General Contractor: Zhejiang Changyi Construction Co., Ltd.
On-Site Construction Coordinator: Zhao Lijun
Signage Design: M.TP 104
Location: Chaishan Island, Zhoushan, Zhejiang
Building Area: 799㎡
Design Period: 2023/6-2023/9
Construction Period: 2023/9-2024/5
Structure: Reinforced Concrete Frame Structure
Materials: Concrete, Steel, Washed Stone Paint, Paint, Matte Stainless Steel, Wood Fiberboard, Rubble Stone
Photography: Arch-Exist, line+
Sponsoring Brands
Exterior Washed Stone: Zhejiang Teliyu Industrial Co., Ltd.
Exterior Wood Fiberboard: Compact wood
Doors and Windows: SHOBT
Interior Paint: Nippon Paint
Interior Kitchen Appliances: Rinnai
Interior Woodwork: Hangzhou Shupai Home Furnishing Technology Co., Ltd
Ceramic and Floor Tiles: DONGPENG
Lighting: KEEY
Air Conditioning and Floor Heating: Johnson Controls
Sanitary Ware: HEGII
Terrazzo, Rock Panels: Dongxing Stone
Outdoor Seating: Honorwood
客服
消息
收藏
下载
最近


















































































