查看完整案例

收藏

下载

翻译
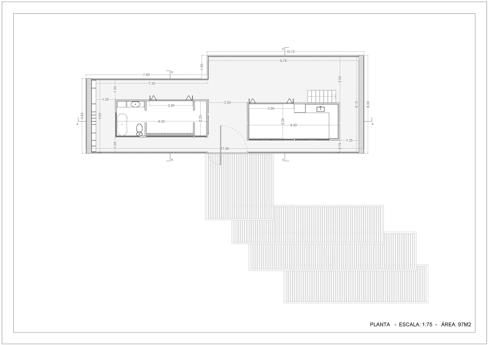
Proyecto de vivienda unifamiliar 97m²
Esta vivienda unifamiliar de 97 m² fue concebida a partir de la adaptación de dos contenedores, envueltos en una piel de hormigón pre moldeado, ensamblada in situ, y revestida con chapa metálica.
El atractivo principal de este proyecto es su terraza invernal con una hermosa chimenea. El espacio interior es acogedor, fluido y ofrece diversas áreas funcionales, incluyendo un rincón de lectura, una biblioteca moderna, un jardín y una huerta. En los contenedores se encuentran los espacios destinados a los servicios, como la cocina, el comedor, la habitación, el baño y el vestidor.
Es con gran entusiasmo que les presento esta hermosa vivienda.
Este proyecto fue desarrollado en el estudio Gauss Rubrican SA.
客服
消息
收藏
下载
最近






















