知末
知末
创作上传
VIP
收藏下载
登录 | 注册有礼

三维室内建筑设计

2020/06/07 04:34:30
查看完整案例
微信扫一扫
收藏
下载
翻译
Hello
Behancers.
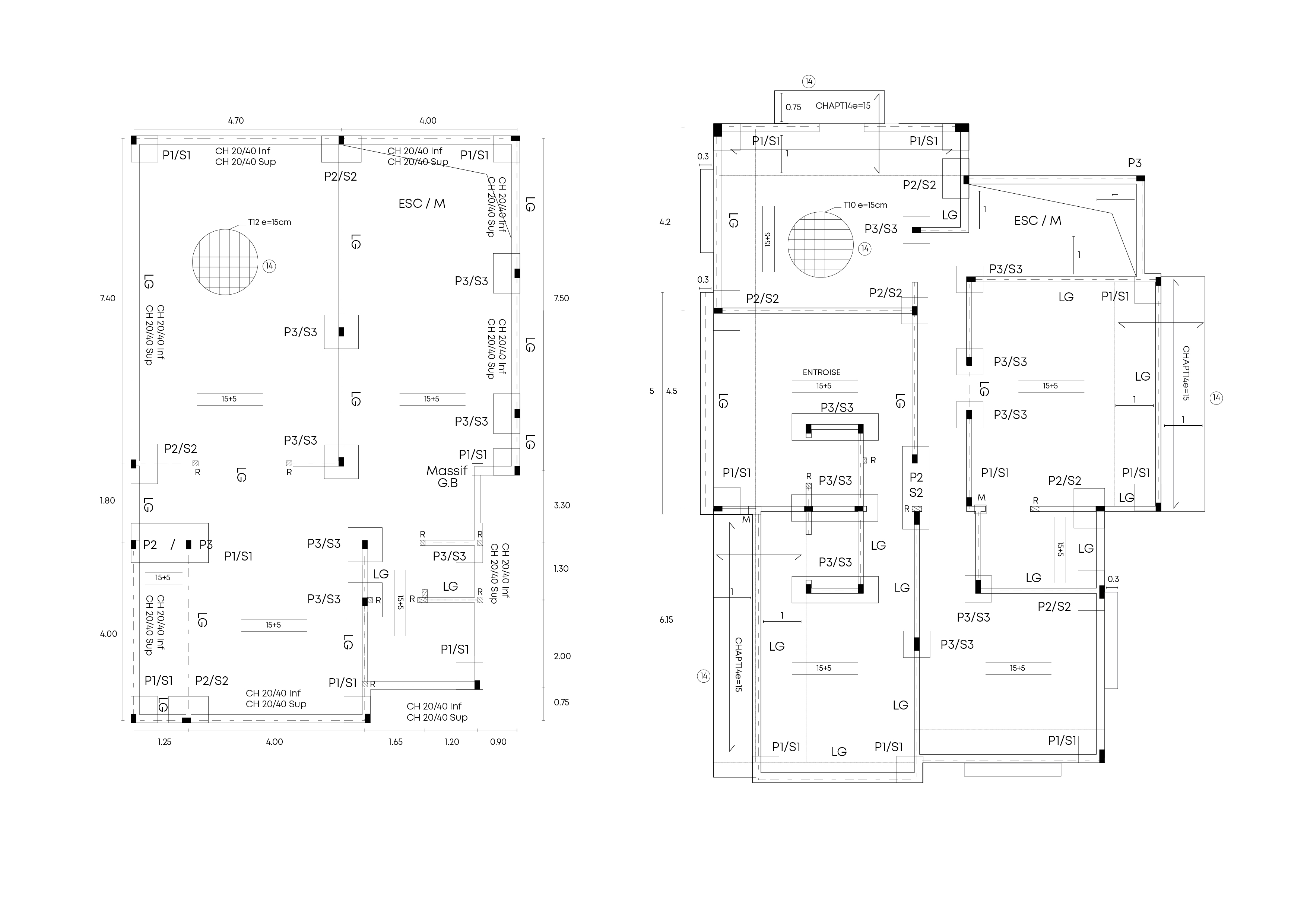
I just finished my last project in Architecture Field, it looks a villa designed & will be constructed by my company, Here's somme from plans and 3D Interior design, I used cinema 4D & Corona render
三维室内建筑设计-3
三维室内建筑设计-4
三维室内建筑设计-5
三维室内建筑设计-6
三维室内建筑设计-7
三维室内建筑设计-8
三维室内建筑设计-9
三维室内建筑设计-10
三维室内建筑设计-11
三维室内建筑设计-12
三维室内建筑设计-13
南京喵熊网络科技有限公司 苏ICP备18050492号-4知末 © 2018—2020 . All photos and trademark graphics are copyrighted by their owners.增值电信业务经营许可证(ICP)苏B2-20201444苏公网安备 32011302321234号
客服
消息
收藏
下载
最近