查看完整案例

收藏

下载
引绿入园,共享庭院
Introducing Green into the Garden
Shared Courtyard
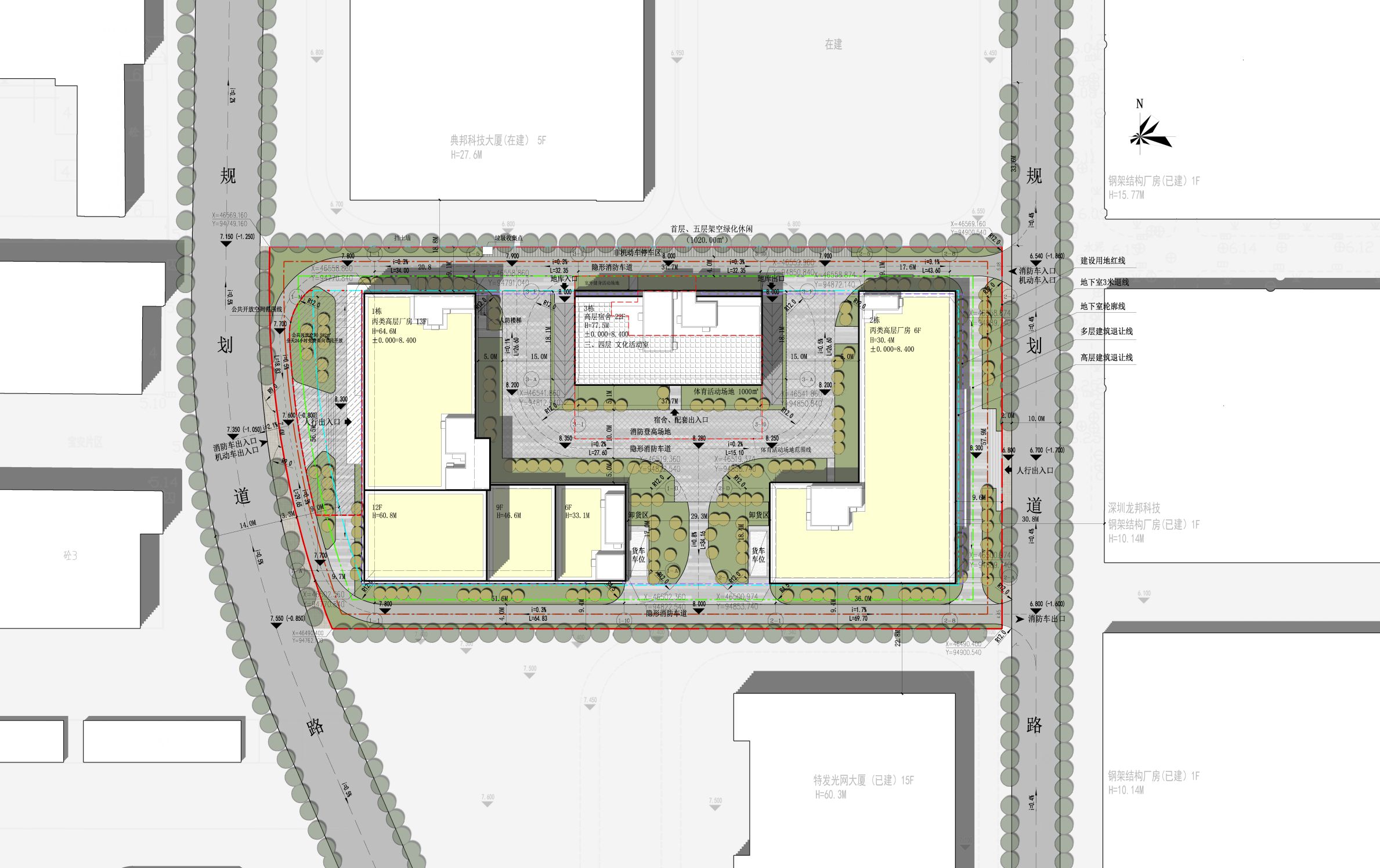
项目为两家医疗企业的联合用地项目,兼顾两家企业各自对外的形象展示面要求,主楼沿东西两条城市道路平行布置,中间放置综合配套楼,最大化的围出内庭院空间,满足消防和员工活动要求,不同标高的架空和退台共同构成多维立体绿化。
▲ 总平面图
简洁、现代
Simple and modern
打破单一的肥大体量,注重立面构成的舒适比例,让企业文化建筑化表达;立面选材主要为铝板、穿孔铝板和玻璃,彰显企业的科技感。
▲ 西东侧透视图 纯粹的虚实对比构成,精致的锯齿形金属外遮阳杆件,透着企业的精密科技性。
▲ 内院透视图
比例推敲
Proportional inference
受限于较紧凑的用地和一定工艺要求的平面尺寸,立面采用切割的设计手法,分解、重构,最终得到适合它的比例状态。
▲ 西侧鸟瞰图
节点设计
Node design
控制造价的前提下,窗节点考虑玻璃窗框的隐藏设计,同时把开启扇置于竖向杆件的穿孔铝板背后,保证外露的玻璃窗纯粹、完整,达到无框的效果;平面根据不同的功能要求,设置了3种锯齿形的倾斜角度,展现不同的姿态。
客服
消息
收藏
下载
最近











