查看完整案例

收藏

下载
Six Senses Kyoto
京都六善酒店
京都六善酒店于 4 月 23 日盛大开业,这标志着该品牌在日本的首次亮相。酒店地处东山区核心地带,毗邻京都国立博物馆,场地面积约 4,857,76㎡,建筑和室内设计由 BLINK Design Group 负责。
酒店为地上 4 层,地下 2 层,设计以平安时代的优雅为主题,并融入了《源氏物语》作为灵感元素。
酒店的建筑设计简洁大方,展现出对京都古城传统建筑的尊重与敬意。建筑物的外墙采用了自然色调的石材和木材,与周围环境融为一体,营造出与自然和谐相处的氛围。
步入酒店,犹如穿越时空抵达平安时代的京都。木质的天花板与门槛、地毯与沙发休憩区的和谐搭配,精致的墙壁描绘以及各种艺术品,整体设计融合了多种特色。
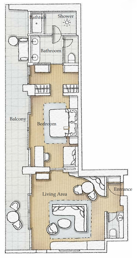
酒店内仅有的 81 间客房,共 12 种房型,其中 8 间为套房,面积从 42㎡起,大部分客房都配备了私人露台,既能增加客房的舒适度,也为客人带来了更加私密和放松的居住体验。
01.酒店客房
高级特大号套房
Superior King
面积丨42㎡
△客房户型图
这一客房以木质元素为主,营造出一处温馨而典雅的居住空间,精心挑选的家具和装饰品展现出精湛工艺和细腻品味。
床头背景板雕刻着樱花纹样,部分可翻转的格栅内涂抹的紫色与床尾毯相呼应。
豪华特大号套房 Deluxe King 面积丨 42㎡
△客房户型图
该客房拥有 42㎡空间,最多可容纳 3 人入住,房间可俯瞰内部庭院或街道,为客人提供舒适的居住体验。
豪华双床房
Deluxe Twin
面积丨45㎡
△客房户型图
双床房提供了更灵活的住宿选择,房间还设有一个阳台,可以在室外空间感受到大自然的美妙和宁静。
豪华花园特大号套房 Deluxe Garden King 面积丨 42㎡△客房户型图 该大号套房拥有宽敞的卧室和起居区,因位于历史悠久的丰国神社前排,可以尽情欣赏庭院景致。
豪华花园双床房 Deluxe Garden Twin 面积丨 45㎡△客房户型图豪华花园双床房中配有两张舒适的单人床,以及一个小型起居区。住客可以在阳台上放松身心,欣赏庭院美景享受宁静和放松的时刻。
城市小型套房 Junior Suite City 面积丨 65㎡
△客房户型图
这间小型套房拥有 65㎡的宽敞空间,房间内设有独立的起居区,并配备了各种所需的现代化设施,确保了住宿的便利性。
豪华花园小型套房
Deluxe Junior Suite Garden
面积丨62㎡
△客房户型图
豪华花园小型套房拥有温馨舒适的氛围,让住客在京都的旅程中能感受到家的温暖,还可以从面向丰国神社和花园的阳台上欣赏到京都的美景,尽情享受大自然的魅力和宁静。
豪华花园套房 Deluxe Suite Garden
面积丨88㎡
△客房户型图
这间套房设有独立的起居区,让人可以尽情放松享受宾至如归的感觉。同时,套房还配备了一个 28㎡的阳台,能欣赏到周围壮丽景色,为住宿增添了独特的魅力和美好体验。
尊贵花园特大号套房 Deluxe Suite Garden 面积丨 72㎡
△客房户型图
这间套房直接通往美丽的私人日式花园,与其他客房隔离开来,无论是在室内欣赏景色还是走出阳台,都将感受到与众不同的入住体验,享受到逃离喧嚣、放松心灵的愉悦感受。
尊贵花园双床套房 Premier Suite Garden Twin 面积丨88㎡
△客房户型图
这间独特的尊贵花园双床套房坐落在绿树环绕的宽敞私人花园中,打造了一个独一无二的居住空间。套房设有一间带两张单人床的大卧室,提供宽敞舒适的休息场所;一间设有沙发的客厅;以及一间设备齐全的大浴室,提供舒适的洗浴体验。
超豪华尊贵套房
Grand Premier Suite
面积丨96㎡
△客房户型图
超豪华尊贵套房总面积达到 96㎡,这间套房风格现代,设计精致,充满了优雅和舒适感,非常适合那些追求额外空间和高品质住宿体验的客人。更可以站在套房 42㎡ 的 L 形阳台上,俯瞰内部庭院和京都市的美景。
三居室顶层套房 Three Bedroom Penthouse Suite 面积丨 238㎡
△客房户型图
顶层酒店套房是酒店中最豪华的住宿选择,套房位于酒店的顶层,拥有三间卧室,包括两间特大床卧室和一间双床卧室,每间卧室均配有私人套间浴室,提供最大的舒适度和隐私性。此外,还设有配备着舒适沙发的宽敞起居区和设备齐全的小厨房,以及私人用餐区,用餐区还提供由厨师精心制作的新鲜时令菜肴的定制菜单,为用餐体验增添一丝奢华和美味。
02.酒店配套
京都六善酒店的配套设施也很丰富多样,包括餐厅、酒吧、水疗中心、Spa、室内泳池、健身房等。
# 全日制餐饮 Sekki #
Sekki 作为酒店的全日制餐厅,菜单受我国 24 个节气启发,秉承「从农场到餐桌」的择优选择,提供一系列健康的现代美食。
# 咖啡馆 Café Sekki #
Café Sekki 作为 Sekki 餐厅的延伸,在这你可以品尝到新鲜的啤酒、精酿茶、新鲜果汁,以及新鲜出炉的蛋糕和糕点。此外,这里还会定期举办各种美食活动,如和果子制作课程等。
# 酒吧 Nine Tails #
这个叫做 Nine Tails 的酒吧,以药房为设计灵感,并将「烧杉」的雪松木融入设计当中。古朴的木制家具和精致的装饰营造出一种独特的氛围。烧杉木的香气弥漫其中,增添了一抹浓郁的风情。
酒吧休息区的布置和温馨灯光营造出一个惬意的氛围,为客人提供了一个独特而舒适的用餐和品酒场所。
# 室内泳池 #
酒店的室内泳池设计兼顾了功能性和美观性,水质清澈,让人感觉清爽舒适。泳池区域的布局设计合理,设有躺椅和休息区,供客人放松休息或观看泳池活动。
# SPA # SPA 的设计以木质和石材装饰为主,营造出宁静、明亮的氛围。
SPA 区域还设有专业的疗程和护理,根据个人的需求和偏好提供个性化的护理方案。
# 健身房 #
酒店健身房是个明亮通风的空间,能让人感到舒适。室内拥有现代化的健身设施和器材,提供全面的锻炼体验。无论是偏爱有氧运动还是力量训练,都能满足。
# 儿童游乐场 #
酒店中还为小朋友设计了一个安全、有趣的儿童游乐场,室内设计很有童趣,旨在激发孩子们的创造力和想象力,同时也能够满足小朋友尽情玩耍和互动的乐趣。这里还会定期组织各种有趣的活动和游戏,如手工艺品制作、绘画比赛、小型运动比赛等,让孩子们度过愉快的时光,并结识新朋友。
六善酒店的开业标志着日本酒店业的一个新里程碑,酒店的每一个细节都体现了对品质和舒适度的极致追求。如需委托 BLINK Design Group。
客服
消息
收藏
下载
最近





















































