查看完整案例

收藏

下载
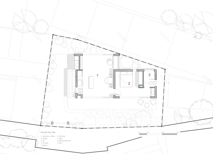
设计的亮点是绘画室,这是一个集绘画、教学、展览、阅读和休闲于一体的多功能空间。该空间的家具设计便于快速灵活更换。该工作室通过楼梯连接到隐藏的储藏室,并通过书架上的隐藏门连接到卧室。郁郁葱葱的绿色花园充当天然的空气净化器,减少噪音并提供新鲜空气。家庭空间将客厅和厨房与灵活的家具结合在一起,鼓励家庭成员、朋友和学生之间的互动。
一个特别的亮点是工作室和家庭生活区,两个空间由一个单独的楼梯隔开。从那里,我们确保了两个具有不同属性的空间的隐私。该项目旨在通过提供退缩的终极通风和大型玻璃推拉门来适应越南中部地区的恶劣气候。该设计采用了几种解决方案来适应极端天气。夏季通过退缩来增强空气通风,从而形成风捕捉和释放点。
综合绿色空间可减少热辐射、降低内部温度,并起到空气过滤器和噪音屏障的作用。组合式混凝土瓦屋顶可抵御热带风暴,大容量雨水排水系统为地面花园供水。材料的选择考虑了成本效益和最低的装修需求。结构上使用抛光混凝土以避免额外负荷并易于清洁。水磨石和鹅卵石具有耐用性、防滑性和易于维护性。该地区种植的当地天然木材具有经济效益。使用当地材料和工匠可确保质量和文化相关性。
该项目是渔村的绿色亮点,加强了社区联系,为人们带来了新的视角。它反映了房主希望为所有成员提供一个温暖、繁荣和安全的家,连接几代人和社区。
项目设计:Chong Chóng Architecture
项目面积: 161.2501349m²
项目年份:2023
供应商: Sika, Anfaco, INAX, Rolan, Zento
Design Team Leader: Nguyen Van Chuong
Interior 设计师: Banh Ai Tran
设计团队: Nguyen Van Trong, Bui Ngoc Cuong, Dinh Viet Hoang, Duong Chieu Anh, Nguyen Truong Thanh, Le Hong Quan
Supervisor: Phan Van Long
Waterproofing: NCC Company
项目成市: Thành phố Hội An
项目国家: Vietnam
设计师:Chong Chóng Architecture
语言:英语
客服
消息
收藏
下载
最近


























