知末
知末
创作上传
VIP
收藏下载
登录 | 注册有礼

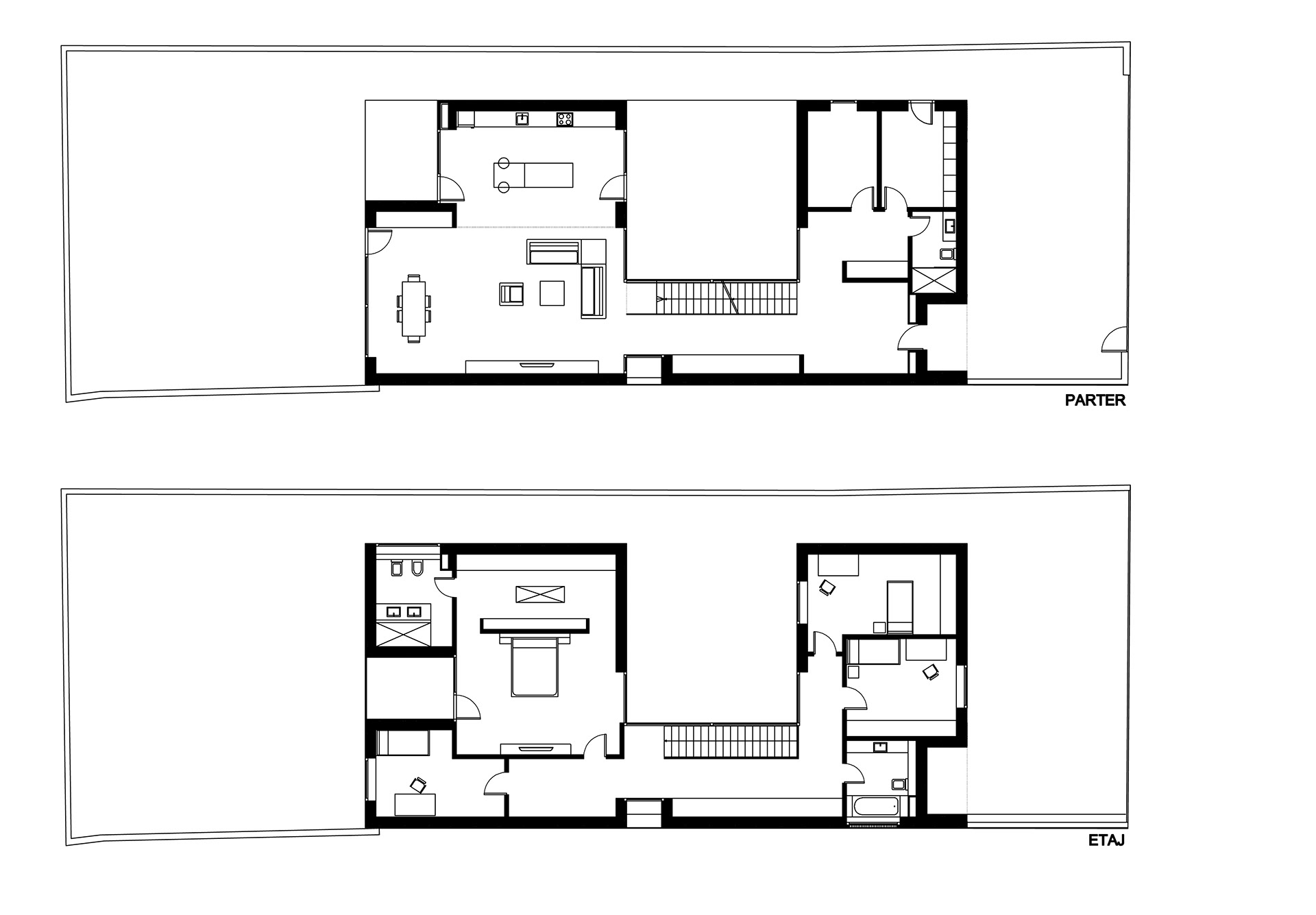
Unifamilial House

2024/07/12 22:20:52
查看完整案例
微信扫一扫
收藏
下载
翻译
Unifamilial House-0
Unifamilial House-1
Unifamilial House-2
Unifamilial House-3
Unifamilial House-4
Unifamilial House-5
Unifamilial House-6
Unifamilial House-7
Unifamilial House-8
Unifamilial House-9
南京喵熊网络科技有限公司 苏ICP备18050492号-4知末 © 2018—2020 . All photos and trademark graphics are copyrighted by their owners.增值电信业务经营许可证(ICP)苏B2-20201444苏公网安备 32011302321234号
客服
消息
收藏
下载
最近