查看完整案例

收藏

下载

翻译
2023
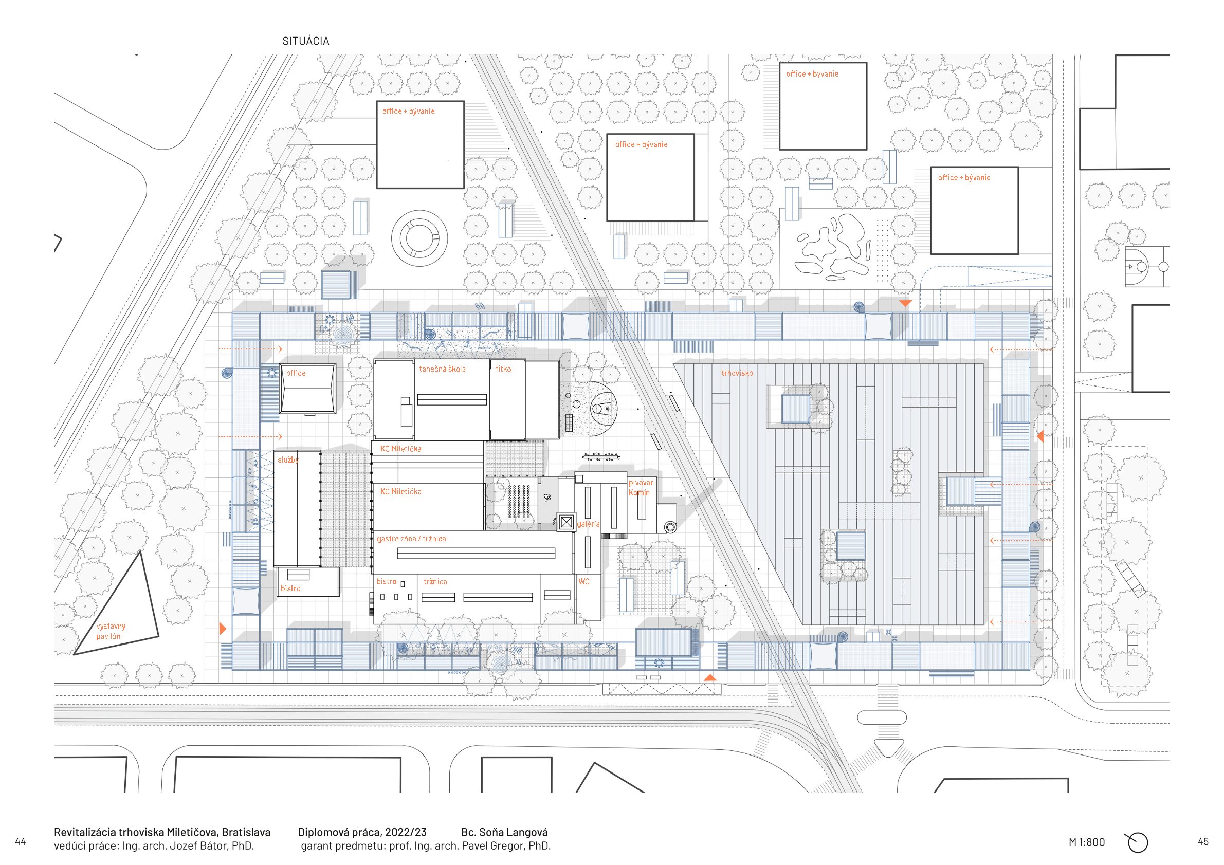
Revitalisation of Miletičova market, Bratislava
The Miletičova open-air market, known as ‘Miletička’, is considered one of the phenomena of Bratislava, both in terms of its history and its current popularity among the citizens of Bratislava. Thanks to its location and size, it has the potential to become a central marketplace of citywide significance - but this requires a thorough revitalisation of the entire area. Despite its current state of neglect, spatial vagueness and operational inadequacies, Miletička has a life of its own. The contemporary life of Miletička, its atmosphere, provisionality, chaos and diversity form the basis of the master’s thesis. The aim of the thesis is a comprehensive revitalisation of the market area, with an emphasis on preserving its authenticity.
客服
消息
收藏
下载
最近









































