查看完整案例

收藏

下载
距离东京墨田区曳舟站步行仅10分钟的距离,这里矗立着一座重生的历史建筑。建筑事务所Roovice,Cabbage Truck和木工一起合作,承担了振兴这座拥有百年丰富历史的联排住宅的任务。
Situated just a 10-minute walk from Hikifune station in Sumida, stands a piece of history reborn. Roovice, in collaboration with the woodwork and architectural studio Cabbage Truck, undertook the task of revitalizing a row house with a rich heritage spanning over a century.
▼住宅外观,exterior of the residence ©Akira Nakamura
▼住宅外观,exterior of the residence ©Akira Nakamura
屋主从他的父亲那里继承了破败的房屋。由于居住在不同的城市,他很难亲自打理房屋,因而加入了Kariage计划。通过这个项目,Roovice承接了空置旧房的改造和转租工作,业主无需支付任何费用,从而为日本日益严重的空房问题提供了解决方案。
The owner inherited the dilapidated property from his elderly father. Living in a different city made it challenging for him to tend to the house himself, prompting his participation in the Kariage initiative. Through this program, Roovice undertakes the renovation and subsequent subleasing of old vacant houses at zero cost to the owner, offering a solution to Japan’s growing issue of akiya, or empty properties.
▼入口玄关,threshold©Akira Nakamura
为了保护历史建筑的重要意义,房屋的改造始于必要的防震措施,例如加建新的减震器,以确保房屋的结构可以抵御未来地震的可能。接下来的重点转向室内,室内的重点是在保留原有特色的同时,对厨房、浴室和卫生间等重要空间进行现代化改造。
Embracing the historical significance of the building, the renovation began with essential seismic updates such as adding new dampers, ensuring the structure’s resilience to earthquakes for years to come. Attention then turned to the interior, with a focus on preserving original features while modernizing essential spaces – the kitchen, bathroom, and toilet.
▼住宅一层空间,the ground floor space©Akira Nakamura
▼厨房及浴室,kitchen and bathroom©Akira Nakamura
这座房子的独特魅力之一,就是从入口处开始的独特的圆形木制台阶。在房屋改造的过程中,入口墙壁上的窗户被打开,自然光洒满客厅,墙内的原始材料也随之显露出来。墙壁的上半部分选择裸露在外,致敬昔日传统的建造方法,展示了其工艺的真实性。
One of the house’s unique charms was the distinct round-shaped wooden step leading the way from the entrance.During the renovation, the window in the entrance wall was opened up, flooding the living room with natural light and revealing historical materials within the wall. Opting to leave the top part exposed, the wall now stands as a tribute to the traditional construction methods of yesteryear, showcasing the authenticity of its craftsmanship.
▼入口墙壁上的窗户被打开,the window in the entrance wall was opened up©Akira Nakamura
▼墙壁的上半部分选择裸露在外,leave the top part exposed©Akira Nakamura
虽然一层的基础性布局没有被改变,但进行了策略性的调整,例如重新移动了分隔墙,为厨房和浴室创造了更多的空间。其余多余的墙壁被拆除,创造出一个开放的空间。浴室里原有的瓷砖被保留了下来,保持了与房子过去的联系,而以前的橱柜单元和来自 Toolbox 的新厨房设备则将传统与现代便利完美地融合在了一起。
While the fundamental layout of the first floor remained unchanged, strategic adjustments, such as relocating the separating wall, created additional space in the kitchen and bathroom. The rest of the unnecessary walls were dismantled to create an open space. Original tiles in the bathroom were preserved, maintaining a connection to the house’s past, while the former shelving unit and a sleek new kitchen unit from Toolbox seamlessly blend tradition with modern convenience.
▼改造后厨房,kitchen after renovation©Akira Nakamura
▼改造后浴室,bathroom after renovation©Akira Nakamura
改造工作继续在楼上进行,在拆除传统日式储藏室(oshiire)的墙壁时,建筑师发现了一幅迷人的壁纸拼贴画,决定将其作为一件艺术品保留下来。Rawan 地板为新建的宽敞房间增添了温暖和特色,新旧天花板的混合使用既保留了房屋的原汁原味,又确保了结构的完整性。
The renovation continued upstairs, where dismantling the walls of a traditional Japanese storage, oshiire, exposed a captivating wallpaper collage which we decided to preserve as a piece of art. Rawan flooring adds warmth and character to the newly created one spacious room, where a blend of old and new ceiling boards preserves the house’s authenticity while ensuring structural integrity.
▼二层空间,upstair space©Akira Nakamura
▼壁纸拼贴画,a captivating wallpaper collage©Akira Nakamura
▼二层空间,upstair space©Akira Nakamura
▼阳台,balcony ©Akira Nakamura
通过对房屋进行改造,建筑师的目标是在铭记历史与拥抱未来之间实现平衡。通过为这栋联排住宅注入新的生命, Roovice和Cabbage Truck事务所不仅仅重现了这栋住宅的建筑历史,也在尊重传统的前提下,为解决日本的空房问题点亮希望。
Throughout the renovation, our aim was to create a delicate balance between honoring the past and embracing the future. By breathing new life into this row house, Roovice and Cabbage Truck have not only revitalized a piece of architectural history but also hopefully offered a beacon of hope for addressing Japan’s housing challenges with reverence for tradition.
▼新旧天花板的交接,a blend of old and new ceiling boards©Akira Nakamura
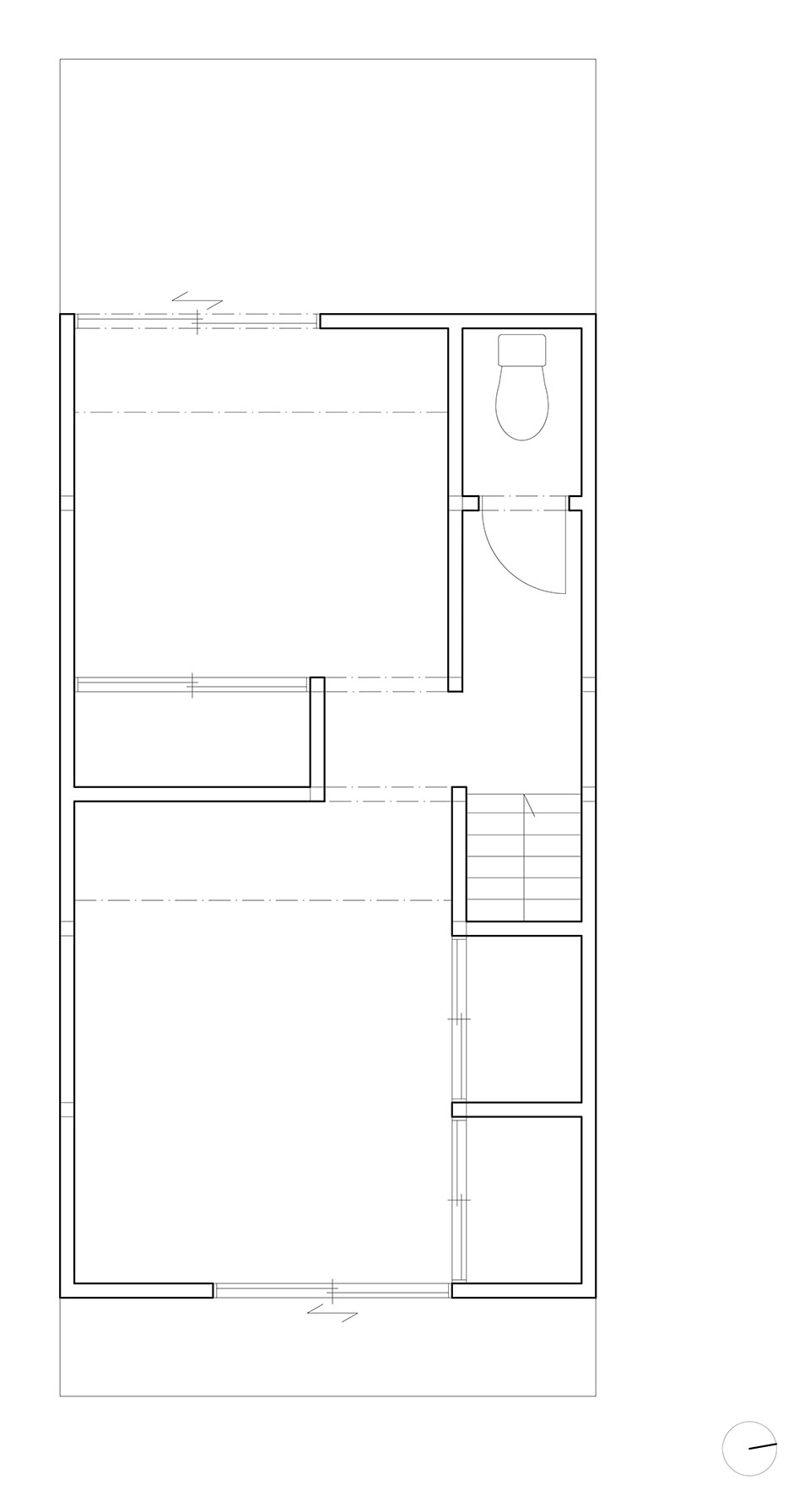
▼改造前平面,plan before renovation©Akira Nakamura
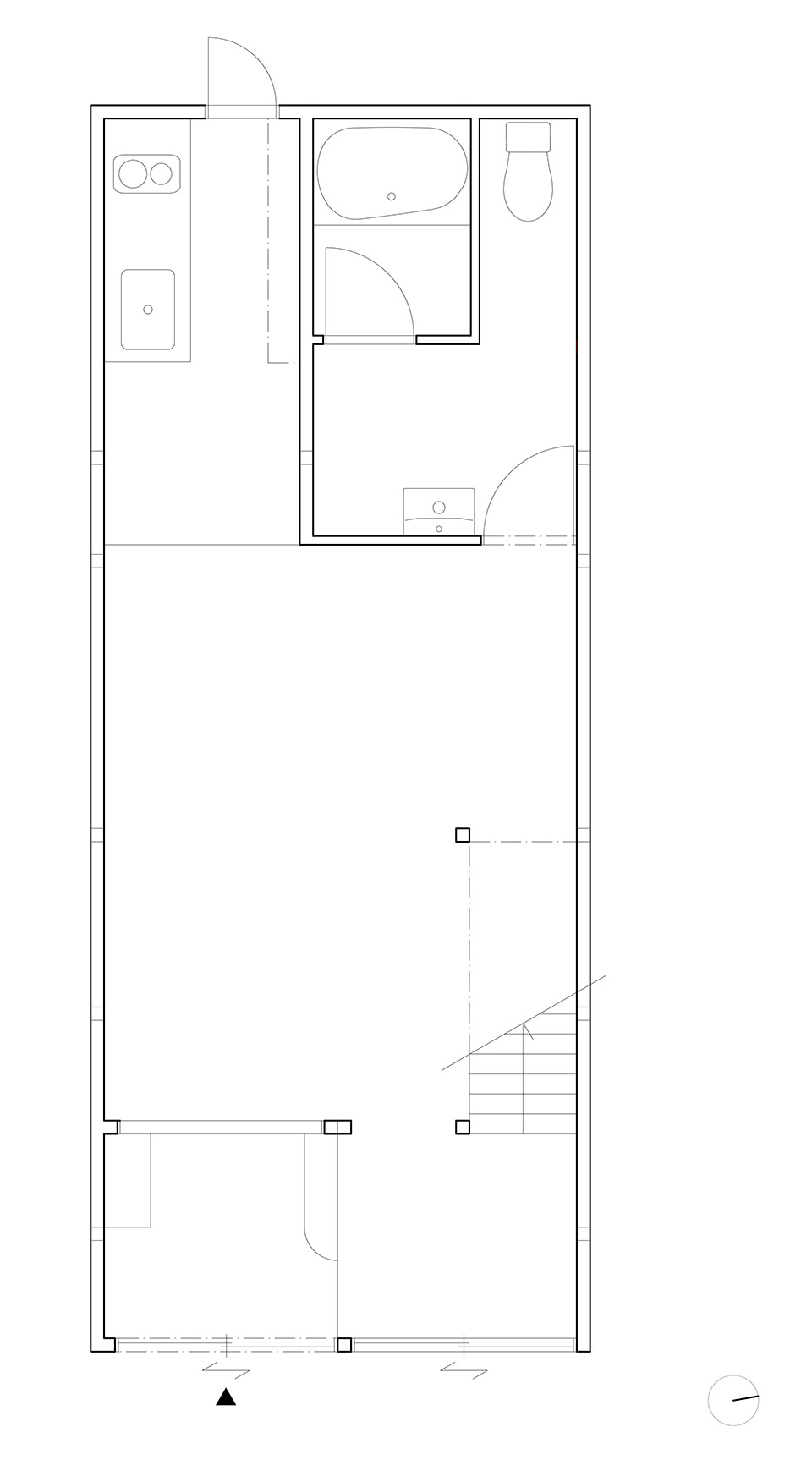
▼改造后平面,plan after renovation©Akira Nakamura
Design: Roovice + Cabbage Truck (Hikaru Watanabe)
Construction: Roovice + Cabbage Truck (Hikaru Watanabe)
Photography: Akira Nakamura
客服
消息
收藏
下载
最近












































