查看完整案例

收藏

下载

翻译
Location : green valley ,6th of October city Cairo ,Egypt
Area : 200 m2
Architect : Abdullah shakir
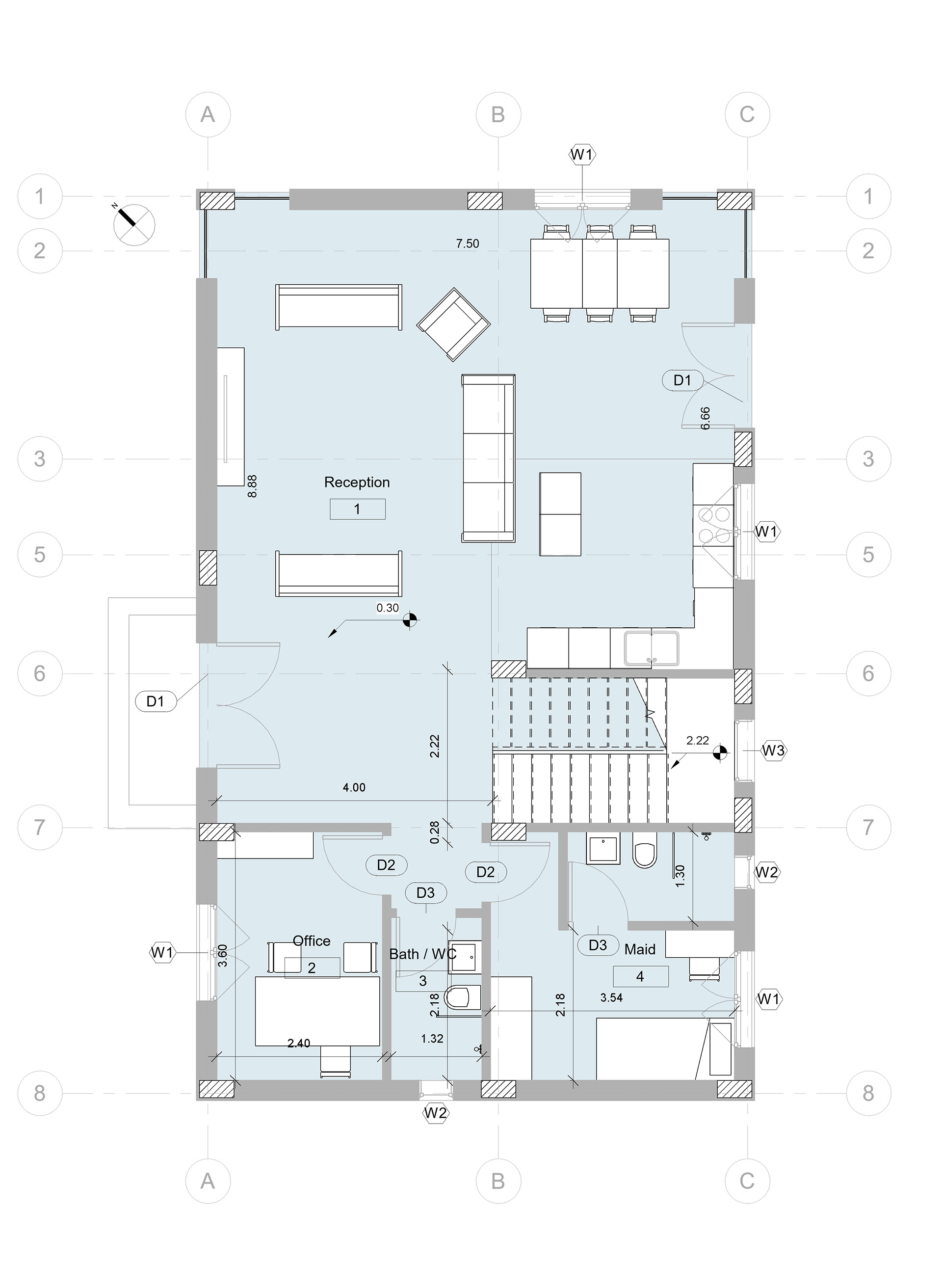
Description : compound in green valley 7 villas ,Floors design ,elevation and landscape
The client wanted the design to be simple and attractive, using finishing materials for the facade that would not be expensive. He relied on the distribution of trees, large windows, and glass walls that give beautiful reflections to the outside and high lighting for the interior. Light colors were chosen due to the hot Egyptian climate in the summer, and the walls were designed to be 25 cm wide to insulate the heat from The building has a reflective white color and windows made of three layers of glass to reduce the heat of the building
Ground Floor and 1st Floor
客服
消息
收藏
下载
最近








