查看完整案例

收藏

下载
∆ 建筑面对海湾围城院落
项目概况01
阿里云中心占据了一个完整的城市街区,建筑的容积率和高度被规划导则控制在更加适合步行体验的范畴。建筑三面围合,面向海湾开敞,延续了街道的秩序感。但建筑界面并不死板,建筑体块通过“堆叠”的方式,改变现有城市的尺度感与天际线。堆叠的体量把大尺度的建筑分解成一个个看似随意叠加的方盒子,使建筑形体消解在了城市背景之中。小尺度的叠加一方面与阿里巴巴致力服务于中小企业的理念相同,另一方面这种有趣而丰富的形态也更平易近人,比起精英派的高层写字楼更具亲和力。
∆ 体量如积木般堆叠
分区与功能布局02
建筑师显然不止满足于形体上的消解,在空间处理上,建筑师也试图将地块内的空间与城市空间融合的更加紧密。与以往“划地自治”的传统做法不同,建筑师尝试将城市环境引入地块内部。为此,设计提炼出五个要素(十字通廊、围院、街墙、尺度外大里小、骑楼),作为项目对于城市环境的回应。建筑虽以围合的形式限定出了街道与地块的视觉界面,但利用十字通廊将人与车引入基地内部,在物理连接层面使地块融于城市之中。地块内外,行人在公共空间里的活动是连续的。而东西两侧的沿街界面也通过传统的“骑楼”形式创造灰空间,模糊了从街道进入建筑的边界。
∆ 建筑区位图
∆堆叠的体块与错落的平台交织在一起
∆ 灵动的连廊释放了地面空间
建筑内的公共空间也不再是专属于办公人员的内部空间。屋顶平台与连廊组成的空中路径以城市广场为起点,将城市与建筑组织在了一起。路径上功能丰富,如同城市街道,活动繁多。这些空间充分对外,视线开阔,也成为了建筑内部私密办公空间与城市空间的过渡空间。
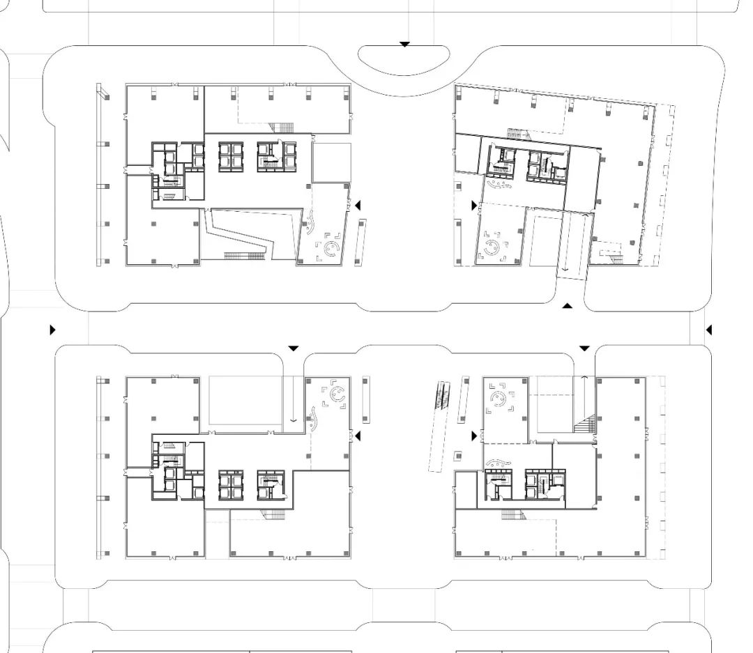
∆ 一层平面图
∆ 丰富的体量变化形成景观
∆ 建筑与城市的边界结合水系形成通透开放的步行空间
结语Epilogue03
随着信息时代的到来,人们对于办公建筑的需求在效率和功能之外更进一步,希望能在其中体验富有意义的生活场景。在这样开放自由的办公空间中所诞生的场所精神,带来了对企业的归属感与认同感以及面向未来的时代特征。阿里云中心目前仅使用了4座塔楼其中的两座作为研发办公场所。另外两座塔楼引入了阿里平台上的研究型企业入驻,阿里云中心已经不是一家企业独用的建筑,它变得更加混合、更加有机,更加生动,从而成为促进一个新时代的积极符号。
项目档案
项目名称:阿里巴巴集团云计算研发中心(阿里云中心)
开发单位:阿里巴巴集团
项目地址:广东省深圳市南山区科苑北路
用地面积:16292平方米
建筑面积:110435平方米
建筑高度:69米
建筑设计:CCDI 悉地国际
全过程设计:CCDI 悉地国际
设计/建成:2011年 / 2015年
结构形式:钢筋混凝土框架-核心筒结构
建筑摄影:方健
客服
消息
收藏
下载
最近












