查看完整案例

收藏

下载

翻译
Architects:KUME SEKKEI Co.
Area:2973m²
Year:2022
Photographs:Naomichi Sode
Manufacturers:AGC,Mokusho,NICHIAS CEMCRETE CO.,LTD.,YAMANASHI KENTETSU
Lighting Designers:SLDA
Construction:Toda Corporation
Construction Supervision:Ryoichi Ito Architects
Office Lead Architects:Yosuke Miura
Design Team:Ayako Mizutani
Structure Engineers:Hiroshi Ito
Client:Matsumoto City
Exhibition Designer:NOMURA Co., Ltd.
Signage:6D
City:Matsumoto
Country:Japan
Text description provided by the architects. The project is to move and rebuild the city museum of Matsumoto from within the historical site of Matsumoto Castle to the Sannomaru area. A new museum was planned in accordance with the area development policy established to revitalize the atmosphere, once lined with samurai residences as a castle area.
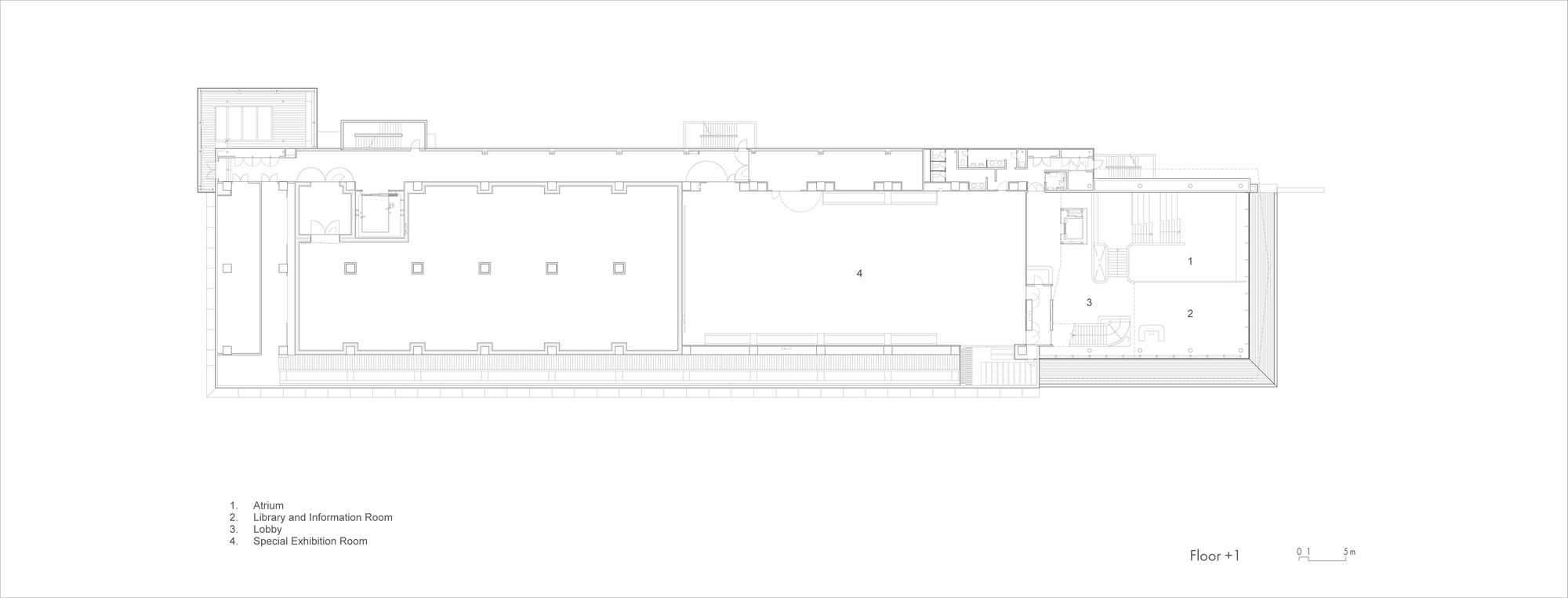
The site faces “Daimyo-cho Street” to the east, the north-south street leading to Matsumoto Castle and “Dotekoji Street” to the south, and on the southeast side is the “Masugata” Ruins Square, the entrance to the castle. With the future revitalization of the square in mind, the museum was designed as an entrance with an open face that welcomes people. In accordance with the policy, the exterior is covered with a roof, and the roof on the Daimyo-cho Street side was lowered to lead and link to the future urban development of the street. A display window, ”window gallery,” has been set up along Dotekoji Street, allowing the museum's activities and Matsumoto culture to be communicated to the town on a daily basis.
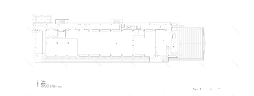
Behind the window gallery are various communication and activity rooms, a shop, a cafe, etc., making the first floor an open and easy-to-use floor, while the museum's core functions of collecting, storing and exhibiting materials are located on the second floor and above.
In order to maximize the space of the exhibition rooms within the height limit of 18m, the rooms have an exposed structure without false ceiling, with underfloor air conditioning using ducts built onto the PC beams. This exposed structure that supports its roof on the third floor is a folded-plate structure made of 6mm thickness steel plates with an 18m span, which reflects the beauty of the Northern Alps and the traditional folk art of "Matsumoto Temari."
Winding stairs begin at the grand stairs and lead visitors through an open void to the exhibition rooms. The circulation path was designed to have a distinctive "Masugata" shape at the castle entrance and to have an affinity with the mountain city of Matsumoto.
The aim is to create a living museum that teaches and conveys the culture and history of Matsumoto, and encourages new discoveries and activities.
Project gallery
Project location
Address:Matsumoto, Japan
客服
消息
收藏
下载
最近



























