查看完整案例

收藏

下载
项目位于淮安洪泽湖临近人民路北侧的一栋两层的商住房。近些年随着洪泽湖旅游资源的开发,越来越多来自外地城市里的人选择来此旅游观光,品尝当地的湖鲜美食,其中有很大一部分的年轻人群体。在这样的背景下,我们的业主提出将原始建筑面积120平米的房子改造成适合年轻人的民宿。
▼民宿空间概览
改造前原始建筑的楼梯占据了四分之一的空间,实际可利用的空间非常局促,设计的思考也由此展开。为了满足功能以及实现合理的动线,我们对内部楼梯结构进行了拆除与重建。一层的客房我们设置在最里面,通过下几节踏步再上几节踏步给人一种不一样的进入一个空间的心理感受,增加了某种好奇心理。
▼通往二层和三层的楼梯
▼从过道看向入口
▼几节台阶即可创造空间的变化
利用一层原始层高的优势,通过下挖部分地基错层悬挑了一个平台,平台上方部分作为客房使用,下方则为休闲区。为了防止夏季梅雨季节一层休闲区地面的潮湿,我们在改造中过程中还设置了中空通风层。
▼新建悬挑客房
▼下挖空间形成休闲区
▼门厅前台
▼下沉式休闲区
室内水平垂直向的高低错落,增加了空间的趣味性。可移动的3米长的L型长桌丰富了空间功能转化的多样性。在这里大家可以自由的坐在空间里的台阶上分享彼此的故事。自由开放的氛围也是我们设计的出发点。
▼L型可移动长桌
▼移动长桌旁的小台阶
▼台阶形成自由的开放式空间
客房我们希望营造出朴素温暖的氛围以及材质的整体性效果,因此我们采用了地台和功能家具相结合的形式,水曲柳的纹理,温润质朴,拉进人与人,人与空间的距离感。
▼双人床客房,地台与家具相结合
▼白色和木色以及水泥吊灯
室内原始砖墙以及现浇混凝土结构柱保留了原始的状态,呈现出粗犷野生的美感。木地板上墙,楼梯以及过道台阶整体无缝水磨石地坪,让空间的延展上升性和连续性得以加强。
▼混凝土结构柱成为空间的力量中心
▼空间细部
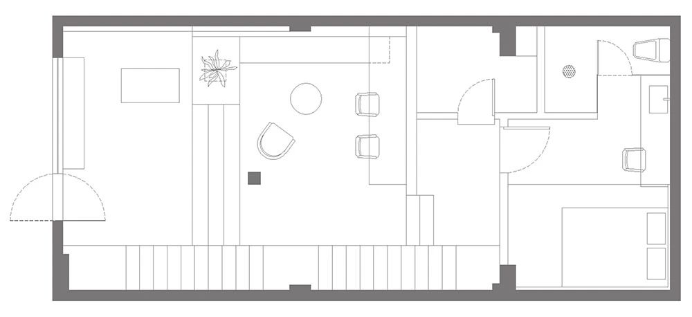
▼一层平面布置图
▼剖面图
项目名称:湖舍民宿
设计方:MOU建筑工社
主持设计师:吴状
参与设计:付仕玉
建筑面积:120平米
摄影:YUUUUNSTUDIO
主要材料:混凝土,水磨石,铁板,水曲柳饰面多层板
客服
消息
收藏
下载
最近





















