查看完整案例

收藏

下载

翻译
Architects:ElliottArchitects
Area:2655ft²
Year:2022
Photographs:Trent Bell
Manufacturers:Hope's Windows,Dynamic Fenestration,KWC,Marvin,Zaneen
Lead Team:Corey Papadopoli, Matt Elliott - AIA
Design Team:JT Loomis, Elise Schelhasse
Engineering & Consulting > Structural:Thornton Tomasetti
Engineering & Consulting > Lighting:Peter Knuppel Lighting Design
General Constructing:Jon D. Woodward & Sons
Engineering & Consulting > Other:Owen Gray & Sons
City:Castine
Country:United States
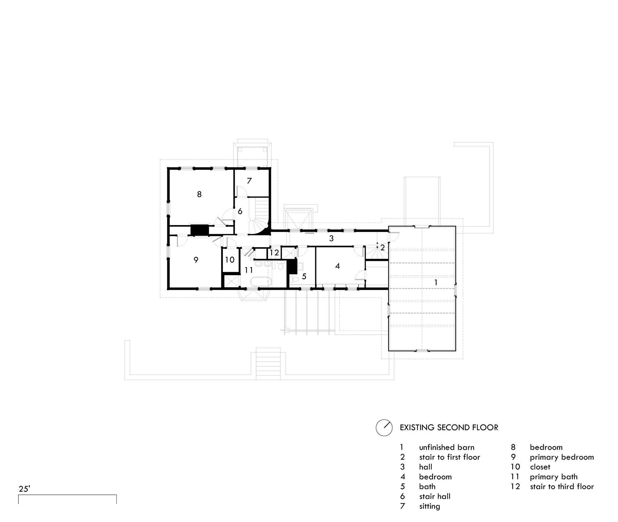
Text description provided by the architects. Originally built in 1849 by Architect Henry Austin, the original residence of Moses Perkins is characteristic of 19th-century rural Maine architecture. The home consists of three components: the main house, an unfinished barn, and an ell connecting the other two pieces. At some point in the 20th century, the kitchen on the first floor of the ell was enlarged and an addition was appended onto the barn and ell.
The house came under new ownership in 2006 and after inhabiting the house for several years the owners required some changes. Phase One sought to take advantage of the empty barn by relocating the kitchen to it. Furthermore, they desired a stronger connection to a terrace on the backside of the house where they spent most of the summer. Better access to the second floor and gallery space rounded out the program. But there were some constraints. The house is located in a historic district and any elevation of the house visible from the road is required to retain its historic character.
The solution seeks to capture the essence of the house while distinguishing the new work from the original 19th-century architecture. The gallery space is located on the second floor of the barn and a large opening in the floor creates a vertical connection between it and the kitchen below. A low-profile skylight embedded in the roof draws daylight down through the gallery, lighting the kitchen island from above. Street side openings in the barn are filled with steel-framed glass panels that are only revealed when the sliding wood doors are opened. A stair inserted behind these openings provides vertical access between the three floors, and at night the glow from these apertures animates the otherwise stoic façade.
Phase Two started several years later and involved converting the cramped attic into an office and sleeping area. This would entail new vertical circulation and modifications to the hall and bath below. A new steel and wood stair was inserted into the hallway providing a simple direct connection between the two floors. Skylights above the stairs lure light into the second floor taking what was a dark passageway and immersing it in daylight. A large shed dormer placed upon the roof increases the floor area and ceiling height in a single move. This move not only establishes a panoramic vista of the water, drawing in natural light but also takes the architectural language from the first phase and continues it along the exterior of the façade. On the back side of the house, the contemporary language of the new work is most present. Inside, the interiors are clean and modern, distilling the historical details and materials of the old into elemental form. The result is a 21st-century renovation that quietly integrates with the old without sacrificing its integrity.
Project gallery
客服
消息
收藏
下载
最近



























