查看完整案例

收藏

下载

翻译
Sementinha
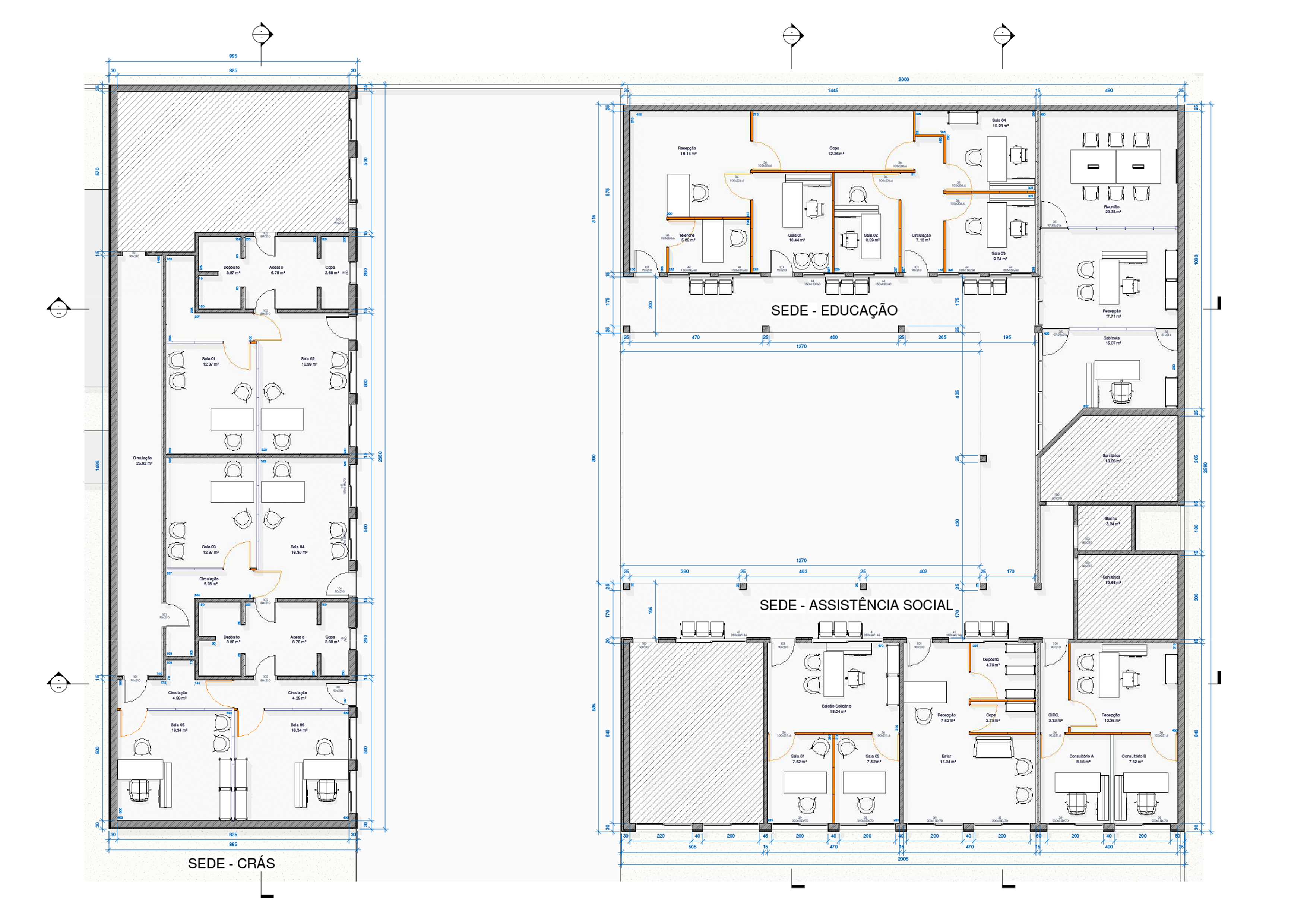
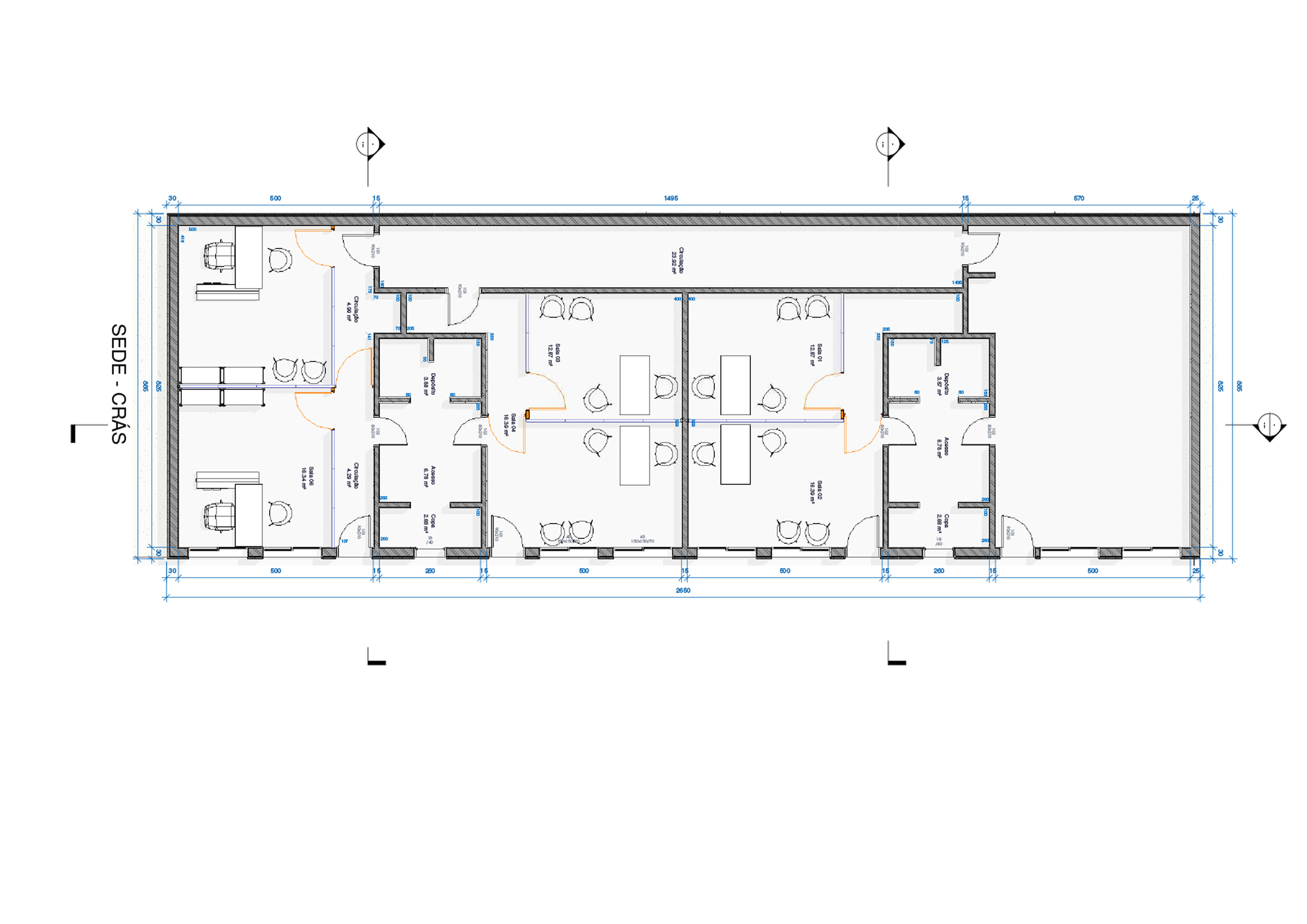
Projeto de reforma e reformulação interna, de uma edificação escolar no Município de Xangri-Lá / RS, projeto desenvolvido durante estágio na secretaria de obras da cidade.
O projeto consistia na criação de novos espaços para atividades de secretarias e departamentos distintos.
Para se possuir um melhor aproveitamento e entendimento do local, foi modelado toda a edificação existente, no software Revit, utilizando conceitos BIM, para facilitar a documentação e aquisição de materiais posteriores.
A edificação foi dividida em três setores, Secretaria da educação, Assistência social e Cras.
Para cada setor, os ambientes internos foram redimensionados e aperfeiçoados afim de atender as novas necessidades de seus usuários.
Por se tratar de um edifício escolar antigo, a maioria dos espaços foram reaproveitados, apenas utilizando-se de divisórias leves, reutilizadas de setores antigos da prefeitura.
Todos os setores possuem vista para o pátio interno da edificação.
客服
消息
收藏
下载
最近













