查看完整案例

收藏

下载
在时间的长河中,Milbon,这一承载着超过60年辉煌历程的日本美发化妆品品牌,始终以其对美的深刻理解与不懈追求,引领着行业潮流。我们坚信,美丽不仅仅是外在的装饰,更是内心真实、精神富足与生活多样性的自然流露。因此,Milbon不仅致力于研发高效能的美发产品,更通过一系列教育活动与发型设计师的培养,传递着关于美的真谛与生活的哲学。
【设计理念】
基于“传承”与“本质之美”的核心理念,我们精心打造了这处集展示、体验、交流于一体的美发艺术空间。这里,每一处细节都旨在展现材料的纯粹与空间的深度,让每一位踏入其中的顾客都能感受到那份源自内心的宁静与美好。
【空间布局】
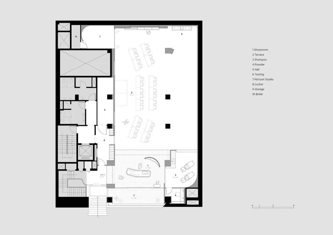
展示厅:作为品牌与顾客首次相遇的窗口,展示厅巧妙融合了现代美学与实用性。从室外延伸至露台的混凝土板设计,拓宽了视野,让自然光与室内空间和谐共生。弧形墙与岛屿式展示区相得益彰,既凸显了产品的精致与独特,又通过石材的粗犷与形态的柔和形成鲜明对比,展现了自然与人工的和谐统一。
活动会场:灵活多变的空间设计,让这里成为举办发型秀、讲座及摄影拍摄等多元活动的理想场所。抬高的地板与可移动墙体的巧妙运用,实现了空间的最大化利用与灵活分隔。无论是专业讲座的严谨氛围,还是发型秀的璀璨夺目,亦或是摄影拍摄的静谧瞬间,都能在这里得到完美呈现。
洗发区:作为展示厅与工作室之间的过渡区域,洗发区以其独特的温馨氛围,为顾客带来了一场身心的放松之旅。随着脚步的深入,灯光与场景的转换,仿佛步入了一个专为美丽而设的私密舞台,让人在享受洗发服务的同时,也能提前感受到即将来临的蜕变与惊喜。
客服
消息
收藏
下载
最近



































