查看完整案例

收藏

下载
项目名称
Ragno 展厅
项目类型
零售设计
项目地址
中国 · 重庆
设计机构
圆周设计
设计团队
龙江山 杨均
内容策划
贰拾柒 AQ
小砖已死?未必!意大利顶级室内设计网 Italianbark 创始人 Elisabetta Rizzato 在 2018 年与 EllE Deco 在“如何打造现代意大利风格”一文中说:“瓷砖在意大利非常流行,尤其最近,小瓷砖/花片(cementine)卷土重来,这种砖是 20 世纪 20 年代及以后的典型代表。”国内还以大版面瓷砖盛行之时,Rizzato 在 18 年就宣告了小砖的复归。存在即合理-回顾瓷砖美学历史,我们重新思考小砖存在的意义和价值。这个空间,就是 Ragno 联合 Pi Design 给出的答案。
印记·溯源
有一些空间,一定是唯有小砖才能做到。遥想古波斯的苏萨大流士宫的彩砖浮雕,是小瓷砖在人类美学史上留下的惊鸿一瞥。而 500 年前的古波斯浴场 Sultan Amir Ahmad Bathhouse,因为防水及装饰需要更是唯有小砖不可的光辉时刻,在这场溯源的对话中采撷灵感。
与繁复的波斯装饰不同,设计团队克制地选用一种长条砖铺贴顶面,独特的长城纹路在光线下呈现波光粼粼的质感。
将光作为穹顶结构的献礼,遵循光学衰减的平方反比定律,实现真实的“天光”—— 聚光至中心的台面,照亮了来自马拉齐母品牌的岩板方块,暗合天圆地方古代哲学。这个方块中暗藏 Ragno 瓷砖展板,暗示着品牌家族的美学传承。
布局·流线
作为一个商业展厅,演绎才是目的。在门头的营建上,墙面稍退而顶面不退,实则以退为进。此刻,因墙体后退,ragno 地砖和商场地砖短兵相接,彰显不同。
外立面后退对本就不大的面积已实属不易,设计团队甚至在转角处建立了一个公众开放的座位区,以社区分享、开放交流的姿态,任何人在这里都不会受到打扰,但是属于 Ragno 的装饰美学会逐渐影响到他们。
其实社区的开放性有时候就是来自于不打扰的态度。希望这个无人叨扰的开放客厅,能成为真正的打卡点、人气中枢。展厅位置靠商场内庭,最大的好处在于转角处在二三楼都能看到。展厅落成后,来这个空间的人络绎不绝,在更高的楼层也能看到充满人气的角落空间,似乎就能体会到设计团队放大此处的良苦用心。
对神性的向往指引人往内里探寻。两个设计橱窗被设置在正立面长廊左右,彰显神秘;右侧的全息投影更是创建了与一旁休息区的联系。
发散轴线和网格轴线如何耦合一直是建筑学的难题,参考建筑之母万神殿,用圆柱收掉所有锐角,作为轴线交叉的锚点,即可消解双柱网带来的锐角。同时在柱体装饰面选用黑色长条釉面砖,让圆柱的魅力无限放大,彰显了小砖独一无二的用途和美感。
分解空间后设计流线型围绕贴着大板瓷砖的中庭展开,增加曲度与回转,设置感应滑门,让访客可自由游走的同时仍有可控性。
日常与非日常的切分,展示与运用的结合,从而留住访客,有利于实现展厅本身的商业价值。
转化·传播
从空间嵌套的关系,体会细部意趣。在展厅内部不用橱窗拼凑来展示产品,而是把它们运用到每一个空间场景中,增加产品语境。
产品陈列场景化,砖米克斯 Mixed 作为背景,提取卡托理石中自然瑰丽的色彩,打造禅意空间,此时花瓶中无需再插花,从精致的花砖运用中便能得到想要的意境。
诺奥·Now 系列的 Waterflower“水中花”,运用到墙面顶面,向墙纸发起挑战。兼容、泛用,展现了瓷砖的无限可能性。
作为意大利风格的典范,Ragno 蜘蛛始终葆有创意和时尚触觉,新工艺、新技术、与潮流同步的国际化视野设计。
设计团队分析现代互联网时代趋势,展厅设计结合新媒体传播逻辑,通过打造空间焦点和装饰元素赋能的方式,让空间具有分享的意义和潜力。是商业空间同时也是艺术馆,通过访客主动拍摄分享品牌与产品相关内容,扩大社交媒体中品牌影响力。
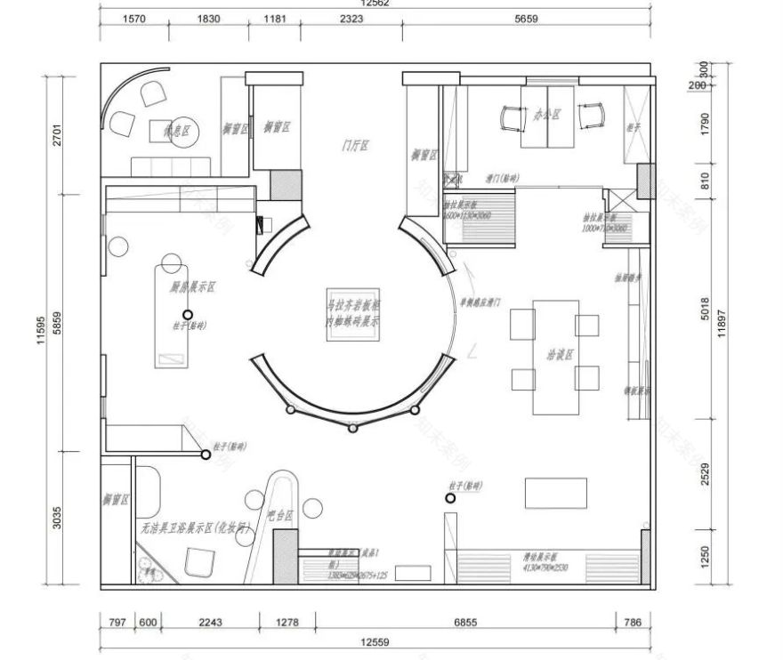
平面图
Project Information:
项目名称 | Ragno 展厅
项目类型 | 零售设计
项自地址 | 中国·重庆
项目面积 | 160㎡(不含花园及室外)
设计机构 | 圆周设计 Pi Design
设计团队 | 龙江山 杨均 廖艳君 唐英凤 朱理东 邓鉴 苏成皆 陈少杰 岳欢
香氛设计 | 原语-嗅商实验室
完工时间 | 2023 年 11 月
项目摄影 | 杨帆
圆周设计脱胎于始立于 2000 年的麦子黄设计工作室的核心团队。作为 Orbit group 的一部分,致力于为远见卓识的委托人提供有价值的,经典而又可以历经时间考验的,不拘泥于风格局限的商业/居家设计咨询与工程管理服务。圆周设计坚信设计的价值,并擅长融汇各个领域的商业/生活经验于设计的全生命周期中。我们认为对服务客体的设计分析是成功设计的重要前提。商业设计的本质在于商业价值的提升,而居家设计最重要的是挖掘委托人生活方式的可能性。我们认为,提出与洞察一个好问题,比一昧的解决问题更加重要。我们的设计服务于有意义的目的。
客服
消息
收藏
下载
最近


























