查看完整案例

收藏

下载
麓湖 CPI SIGHT 艺术中心旨在打造一个既尊重过去又能面向未来,既能作为艺展空间又能作为社交空间的标志性精神建筑。艺术中心分为两个部分,滨湖的展厅为新建,面向 CPI 岛内部的书店为改造。
Luxe Lakes CPI SIGHT Art Center aims to create a landmark spiritual building that respects the past and faces the future, serving as both an art exhibition space and a social space. The art center is divided into two parts, with the lakeside exhibition hall being newly built and the bookstore facing the interior of CPI Island being renovated.
▼麓湖 CPI SIGHT 艺术中心夜景,Night view of Luxe Lakes CPI SIGHTArt Center©存在建筑摄影
01. 项目概况 Project Overview
麓湖 CPI SIGHT 艺术中心位于成都麓湖 CPI 岛的中心,无论是从 CPI 岛的两侧的入口还是湖滨的角度都可以看到这座标志性建筑。
Luxe Lakes CPI SIGHT Art Center is located in the center of Chengdu Luxe Lakes CPI Island, and this iconic building can be seen from the entrances on both sides of CPI Island or from the perspective of the lakeside.
▼麓湖 CPI SIGHT 艺术中心,Luxe Lakes CPI SIGHTArt Center©存在建筑摄影
▼麓湖 CPI SIGHT 艺术中心,Luxe Lakes CPI SIGHTArt Center©存在建筑摄影
▼麓湖 CPI SIGHT 艺术中心,Luxe Lakes CPI SIGHTArt Center©存在建筑摄影
本建筑由改造而成的书店和新加建的展厅两部分组成。展厅部分挑空,形成灰空间,既为书店的顾客提供了开阔的滨湖景观面,同时也为整个 CPI 园区的游客提供了一个活动交流场所,一个半露天的“剧场”。
The building consists of two parts: a renovated bookstore and a newly built Art center. The art center is partially cantilevered, forming a grey space, which not only provides a spacious lakeside landscape for bookstore customers, but also provides an activity and communication venue – “an amphitheater” for visitors in the CPI park.
▼麓湖 CPI SIGH 艺术中心的两部分:展厅与书店的关系,The Spatial Relationship between the ArtCenter and the Bookstore©存在建筑摄影
02. 艺术展厅与氛围营造 Art center and Atmosphere Creation
在麓湖 CPI SIGHT 艺术中心设计的过程中,为了延续 CPI 整体设计中对平热和淡景的追求,我们问自己一个问题:建筑设计如何能不关注建筑风格和审美趋势,仅凭通过建筑与环境的融合来创造能给人留下深刻印象、打动人心的建筑?反复的思考和设计调整的过程中,我们找到了答案,那就是对“氛围营造”的重点关注。
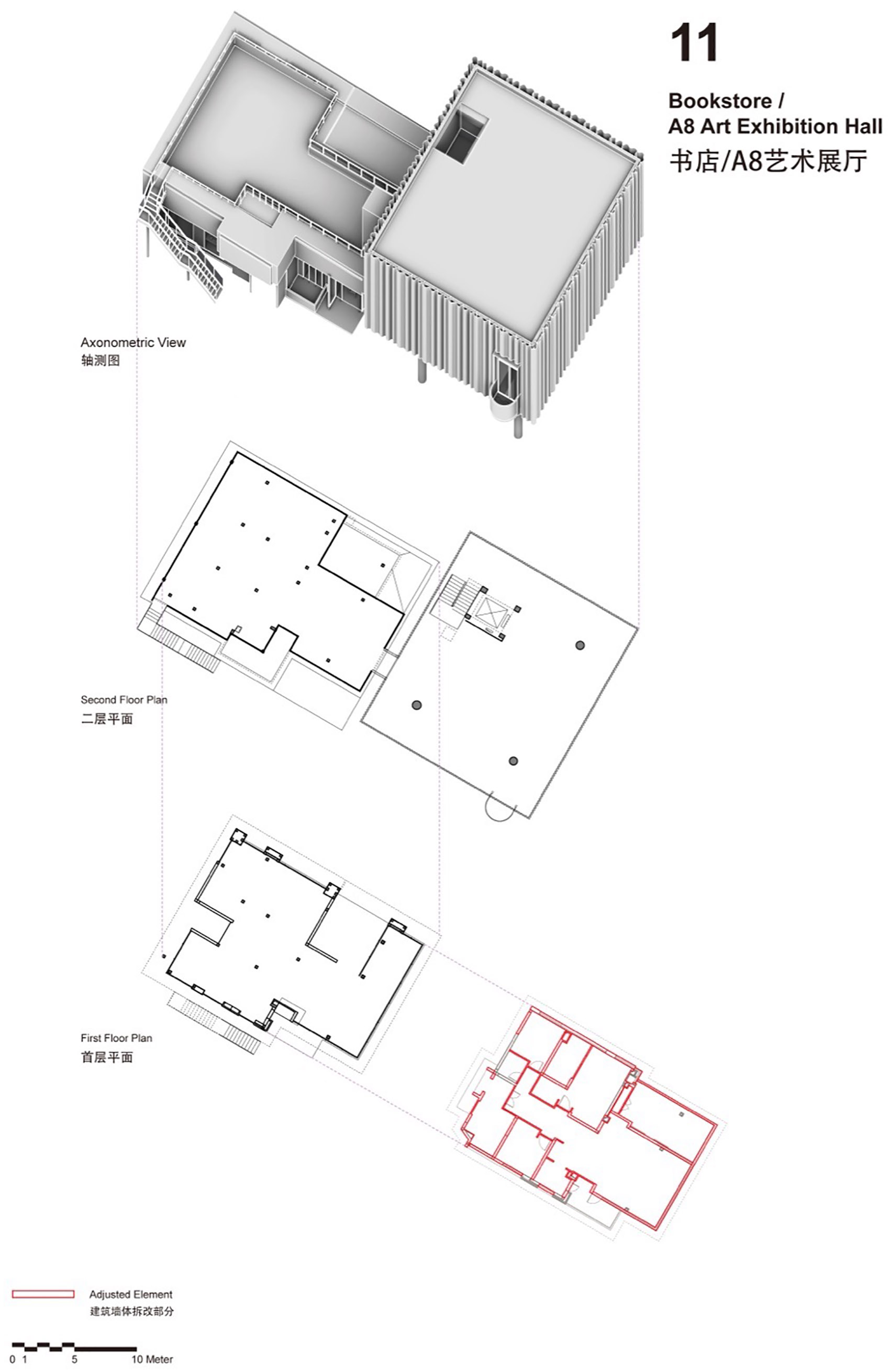
▼建筑拆改平面详解,Building Demolition and Renovation Plan©variarchitects 几里建筑
In the process of designing Luxe Lakes CPI SIGHT Art Center, in order to continue the pursuit of calm and light scenery in CPI’s overall design, we asked ourselves a question: how can architectural design not focus on architectural style and aesthetic trends, but only create buildings that can leave a deep impression and move people’s hearts through the integration of architecture and environment? Through repeated thinking and design adjustments, we have found the answer, which is the key focus on “atmosphere creation”.
▼艺术展厅的氛围营造,Creating an Atmosphere in CPI SIGHTArt Center ©存在建筑摄影
艺术展厅的加建承袭了 CPI 整体上弱化筑形体感的策略,呼应简洁有效的立体主义形式,采用了钢筋混凝土框架结构。建筑的室内外都没有装饰的线脚,裸露的混凝土梁相互穿插。建筑轮廓简单,一个方盒子被四个细柱支起,漂浮在自然景观之上。
The newly built Luxe Lakes CPI SIGHT Art Exhibition Center inherits the overall architectural strategy of CPI that uses simple and effective forms to soften the architectural presence. The Art center adopts a reinforced concrete frame structure as a whole, with no decorative moldings inside or outside the building, and exposed concrete beams interspersed with each other. The architectural outline is simple, like a square box supported by four thin columns, floating above the natural landscape.
▼简洁的白色方盒子,A Simple White Square Box©存在建筑摄影
展厅下部的灰空间以混凝土直接作为墙面,以裸露的混凝土梁作为屋顶,四根混凝土柱支撑起,塑造和传递出简洁与朴素、安静与平和的氛围。
The grey space at the bottom of the Art center is directly made of concrete as the wall, with exposed concrete beams as the roof, supported by four concrete columns to convey simplicity and simplicity, quietness and peace.
▼展厅下方混凝土质感的灰空间,The concrete texture of the grey space below the exhibition hall ©存在建筑摄影
展厅下方混凝土质感的灰空间,将书店与湖景过渡的同时,又把麓客岛的自然生态基地最大限度的引入到了建筑空间,让人、建筑和自然相互融合、淡淡的风景。退台的设计,营造城市社交的空间场景。这两者结合形成既是日常的且具有仪式感的空间。
The hollowed-out design maximizes the integration of the natural ecological base of Luke Island into the architectural space, allowing people, architecture, and nature to blend together and create a subtle scenery. The design of retiring from Taiwan creates a social space scene in the city. The combination of these two forms a space that is both daily and ceremonial.
▼裸露的混凝土梁营造出的灰空间,The Grey Space Created by Exposed Concrete Beams ©存在建筑摄影
大小不一的正方形开窗舒展在简洁的立面之上。温暖的光线透过外层的波浪形的金属拉伸铝网,再穿过立面上的开窗,流入建筑内部。光影时刻发生着变化,塑造了一个纯净而精巧的几何空间。
Square windows of different sizes stretch out on a simple facade. The warm light passes through the wavy metal stretched aluminum mesh on the outer layer, then through the windows on the facade, and flows into the interior of the building. Light and shadow constantly change, shaping a pure and exquisite geometric space.
▼艺展中心内部简洁的几何关系与光影,The Concise Geometric Relationships inside CPI SIGHTArt Center©存在建筑摄影
菱形拉伸铝网和起伏轮廓构成的幕墙位于混凝土墙体之外,拉伸铝网被弯成三种不同形态的波浪曲面,将平面材料变成能够自我支撑的三维材料。这可以使网格更轻,垂直竖梃更薄。竖梃焊在网格内侧并连接到结构板。
▼金属幕墙轮廓,MetalScreenProfile©variarchitects 几里建筑
The facade composed of diamond-shaped stretched aluminum mesh and undulating contours is located outside the concrete wall. The stretched aluminum mesh is bent into three different forms of wavy surfaces, transforming the flat material into a self-supporting three-dimensional material. This can make the grid lighter and the vertical mullions thinner. The mullion is welded on the inside of the grid and connected to the structural plate.
▼流动的金属幕墙,FlowingMetalScreen©存在建筑摄影
但要完美对齐网格面板也绝非易事。尽管金属板在工厂里已被打孔、成型,并焊接上竖梃,但网格板的精确安装仍需工匠手眼协调。取代焊接连接的是将它们端对端相接,如此,建筑表皮的波动就通过一块块面板流畅地表达了出来。
But aligning the grid panel perfectly is not an easy task either. Although the metal plates have been punched, formed, and welded with studs in the factory, the precise installation of the grid plates still requires the coordination of craftsmen’s hands and eyes. Instead of welding connections, they are connected end-to-end, so that the fluctuations of the building surface are smoothly expressed through the panels.
▼流动的金属幕墙,FlowingMetalScreen© CPI
波纹曲面的幕墙在阳光下呈现不同形态的投影,随即带来一种动态而又纯粹的美感。而在日落之后,夜幕隐藏了建筑的体量,只留下界面的幕布,伴随着不同的灯效,呈现出多种多样流光溢彩的效果,使其成为一种精神的媒介。
The corrugated curved curtain wall presents different forms of projection under sunlight, bringing a dynamic and pure beauty. After sunset, the night sky hides the volume of the building, leaving only the screen of the interface, accompanied by different lighting effects, presenting a variety of dazzling effects, making it a spiritual medium.
▼流动的金属幕墙与音乐节,FlowingMetalScreen& Music Festival © CPI
有时可似波光粼粼的湖面与其正面对的水景互动和交融,有时又可似夜空星海,与自然的背景天空相得益彰。在晚间来到这里访客,更多感受到的是抽象的自然,感受一种独特的氛围和心境。
Sometimes it can be like a shimmering lake interacting and blending with the water scenery facing it, and sometimes it can be like the starry sky in the night sky, complementing the natural background sky. Visitors who come here in the evening often experience abstract nature, a unique atmosphere, and a state of mind.
▼流动的金属幕墙与音乐节,FlowingMetalScreen& Music Festival© CPI
03. 书店改造与自然融合 Bookstore renovation and integration with nature
书店部分的改造过程中,瑞士建筑师彼得·卒姆托的设计思考对我们有很大的启发,特别是他所阐述的“氛围”和“心境”,把建筑与人紧密地关联起来、将气氛因素纳入空间设计,“引发一种自由移动的感觉,一个漫步的环境,一种新近。”「1」
Zumthor, Peter. Atmospheres: Architectural Environments, Surrounding Objects. Basel; Birkhauser, 2006. P75]During the renovation process of the bookstore, Swiss architect Peter Zumthor’s design thinking has greatly inspired us, especially his iteration of “atmosphere” and “mood”, which closely links architecture with people and incorporates atmospheric factors into spatial design, “evoking a feeling of free movement, a leisurely environment, and a sense of novelty.”
▼融于自然的书店入口,TheEntranceofbookstore that blends with nature©存在建筑摄影
▼融于自然的书店入口,TheEntranceofbookstore that blends with nature©存在建筑摄影
书店的部分对方盒子进行了简单的错动,屋顶整体采用微悬挑,主体部分的建筑立面利用分层式混凝土和玻璃虚实结合,通过建筑大量的开窗处理,削弱了建筑的体量,将建筑和周围的自然环境融合在一起。
The bookstore is also a box, with slight adjustment: the roof has a slight overhang. The lower main part of the building is made of layered concrete and glass that combines virtual and real elements. Through a large number of window openings, the building’s volume is weakened and integrated with the surrounding natural environment.
▼书店室内墙体与开窗的虚实关系,The Speculative Relationship betweenthe Walls and the Windows©存在建筑摄影
▼麓湖 CPI SIGHT 艺术中心,Luxe Lakes CPI SIGHTArt Center ©存在建筑摄影
▼总平面图,SitePlan©variarchitects 几里建筑
▼建筑平面图,Building Plans©variarchitects 几里建筑
▼北立面图,North Elevation View©variarchitects 几里建筑
▼南立面图,South Elevation View©variarchitects 几里建筑
▼西立面图,West Elevation View©variarchitects 几里建筑
▼东立面图,East Elevation View©variarchitects 几里建筑
「1」彼得·卒姆托 (Peter Zumthor)《气氛:建筑环境,周围之物》(2006)
Zumthor, Peter. Atmospheres: Architectural Environments, Surrounding Objects. Basel; Birkhauser, 2006. P75
项目位置:中国 四川省 成都市
项目时间:2023.5 – 2024.4
业主:成都万华投资集团有限公司;成都阿发奇商业管理有限公司
业主设计管理(建筑):柏久绪,王楷文(成都万华新城投资发展股份有限公司)
建筑面积:650㎡
建筑设计:vari architects 几里建筑
主持建筑师:齐帆,杨丁亮
项目建筑师:冯攀遨,王晨欣, 唐汉旦,丁小榆,牟羽
室内设计:冯攀遨, 唐汉旦
幕墙设计:王晨欣
建筑施工单位:图泰建设集团,鼎誉建筑工程有限公司
施工图设计:洲宇设计集团股份有限公司
景观设计:昱道景观
灯光设计:BPI 照明顾问设计公司
摄影:存在建筑
文案:王晨欣
客服
消息
收藏
下载
最近






































