查看完整案例

收藏

下载

翻译
studio | Zrobim architects designer | Hanna Kutsko area | 289 sq.m. location | Minsk region, Belarusyear | 2022
CONCEPT
The house is located in a beautiful village named Green Harbor, surrounded by forest and golf field. The house has a difficult structure and a lot of windows.
The primary goal for us was to create a concept of a cozy family interior for comfortable living and parenting. Therefore we chose a palette of 4 colors - ochre, anthracite, the color of forest greenery and a light sandy shade.All materials and interior objects are inscribed in this palette, and so create a unified stylistic image.
INTERIOR
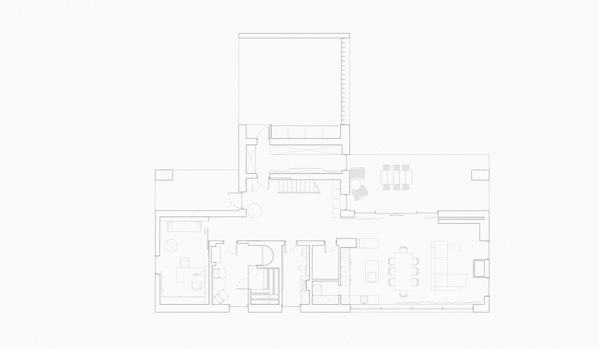
1ST FLOOR
The core of the first floor is the living room, which contains the kitchen, living room area, and dining room. In this room we wanted to accent the dining room, so we came up with a table with massive "heavy" legs and a thin elegant table top. Above the table is a minimalist version of the traditional caisson ceiling with fixtures of "dancing" length.
The wooden ceiling from the living room transitions to the common hallway, and is the main accent here. The hall itself is very minimalistic, without extra items and details. At the entrance there is a small shoe storage area with a mirror and a pouffe. Under the stairs there is a Japanese style bench.
The guest bathroom was designed to be linear, so we built the entire composition along one wall. In this room, we used a warm wall (to the right of the entrance) - it allowed us to keep the room warm and not to use a towel rack, a regular rack for towels by the warm wall is enough.
In the spa area, we used the same wood as in the main area. This created the effect of a chamber, coziness. Next to the steam room we have a small sitting area with two chairs. In this part we wanted to create a tropical corner - dark green tiles imitating small leaves of the tropics, portable wooden furniture with rattan cloth, small palm trees in wicker baskets, slatted front of the cabinet with dim lighting. In the shower area, we provided a small shelf for seating and chamber lighting, so you can take a shower in the most relaxed atmosphere for yourself.
We made the office a little more formal due to the geometric facades of the storage systems. The office has everything for comfortable work for two, receiving clients and stay overnight guests.
INTERIOR
2ND FLOOR
The 2nd floor consists of 3 blocks - 1st block - parents' bedroom, 2nd block - children's rooms, 3rd block - general, which consists of a laundry room, shared bathroom and terrace. A few interesting details of the parents' bedroom - a high pitched ceiling and a window into the living room area - have already been provided by the developer. We have tried to play on them in our interior.
The center of the bedroom is a big bed with a high headboard, which divides the room into two parts - the bedroom and the closet area. Above the headboard we have 2 wall lamps, flipped upside down with the diffusers up, so that when turned on at night, it won't wake the sleeper. In addition to the accent sconces, we added an additional flexible reading light on each side.In the niche we have a zone with a dressing table, here everything is designed in such a way that at this table it was convenient not only to take care of yourself, but also to put a laptop and work in silence)
The master bathroom was very compact, so we tried to fit everything we needed in here without cluttering the room. Since the roof is pitched and we didn't want the ceiling to "press" on the head next to the sink, we decided to extend the wall in order not to push the sink too deep - we built in open shelves for sundries, a mirror and lighting.
The customers dreamed that the shared bathroom would look more majestic. That is why elements like a floor-mounted tub bowl, mirrors in picture frames on the countertop, and an unusual chandelier appeared here. The entire bathroom is bright, only the area with the sinks is accented with color.
The hobby room had to be designed so that it could be converted into a 3rd children's room. Therefore, there is a work area with a desk, there is a small storage area for books, and an area for storing clothes. While this room will be used by the whole family as a hobby room, so there is a small sofa, a customer's electronic piano, and a small sports wall, for joint sports and yoga activities with the kids.
For the children's rooms, we chose to use a yellow shade of ochre, so that this unit would blend in with the rest of the house on one side and have its own mood on the other.We drew a confetti pattern on the wallpaper and came up with snake-shaped door handles to make the fronts of the regular cabinets more interesting. The furniture is designed to be easy to use for both a preschooler and a schoolchild. Behind the white fronts there is a "secret staircase". It leads to a playroom on the attic floor. While the children are small, this area may be closed to them, but when they are older and want to spend more time playing together, this area with the staircase will serve as a unifying element for the two rooms.
INTERIOR
ATTIC (3RD) FLOOR
In the play area we have a teepee, a swing, a place for a small table, a railroad, a daybed, and anything else a child might want. This area is a kind of secret den for kids, where not only can you have fun, but you don't have to clean up☺
The children of Ukraine are now deprived of the opportunity to be children. Support them through the links below, every donation counts
FOND MONOLITZARADI DITEYUNICEF
Thanks for watching!
INSTAGRAMM| Zrobim architects | Hanna KutskoLINKEDIN| Zrobim architects | Hanna Kutsko
客服
消息
收藏
下载
最近









































































