查看完整案例

收藏

下载
项目坐标 | Location:湖南
项目面积 | Square Meters:1500㎡
项目类型 | Types:展厅兼办公室
设计机构 | Design Department:行空间(深圳)设计有限公司
设计团队 | Design Team:邱顺 彭欢 龚晓佩 王晶晶
设计时间 | Time:2019/06
以下是原结构现场图片:
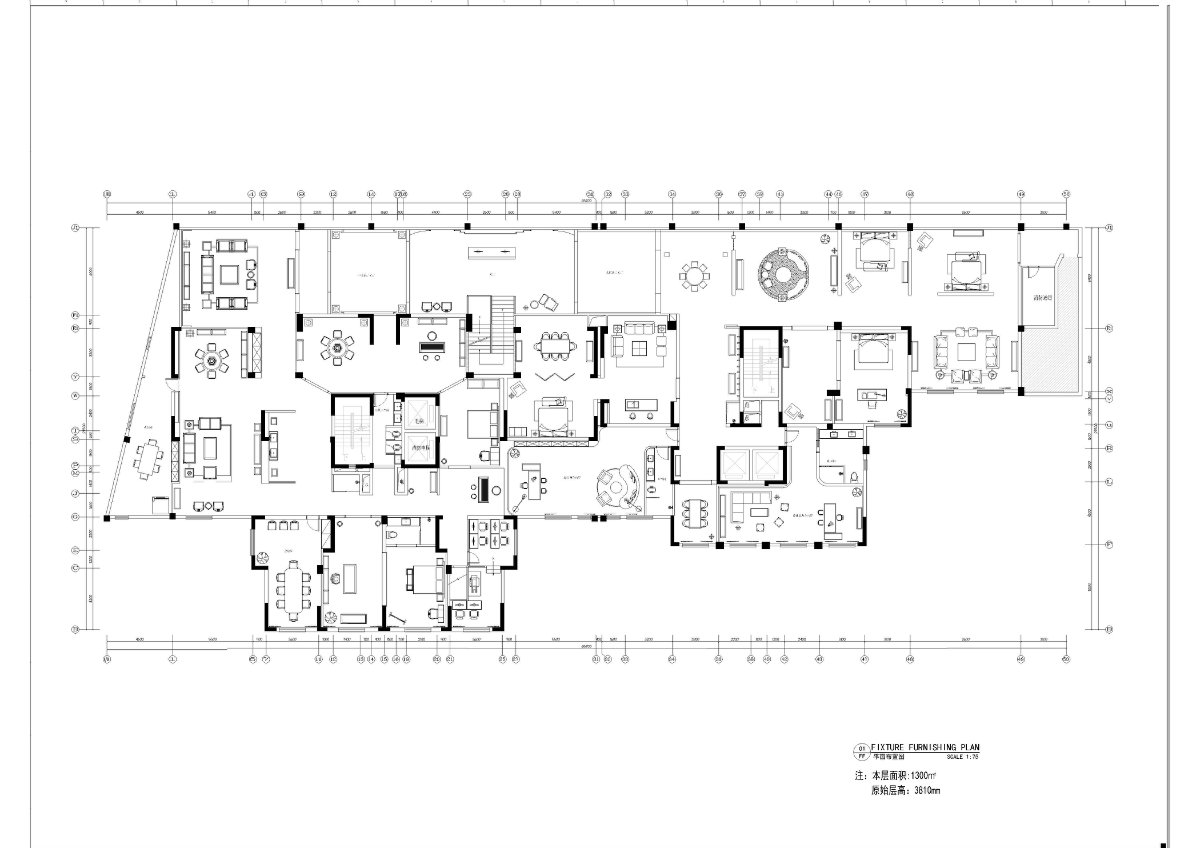
以下是平面布置图:首先说明下,以往的展厅都是相互流动的动线,这个展厅功能因为相对来说空间区域比较多,再者风格类型也划分了两个类型,也需要办公空间,所以我们一开始设计的时候就把浏览的动线划成单独游览的小动线,观赏需要有折返。在中式这块区域也做了内部的小空间的流动动线需求。
以下实景照片:
客服
消息
收藏
下载
最近





































