知末
知末
创作上传
VIP
收藏下载
登录 | 注册有礼

瓦其夫市场精品店丨卡塔尔多哈

2022/08/03 17:50:02
查看完整案例
微信扫一扫
收藏
下载
翻译
瓦其夫市场精品店丨卡塔尔多哈-0
瓦其夫市场精品店丨卡塔尔多哈-1
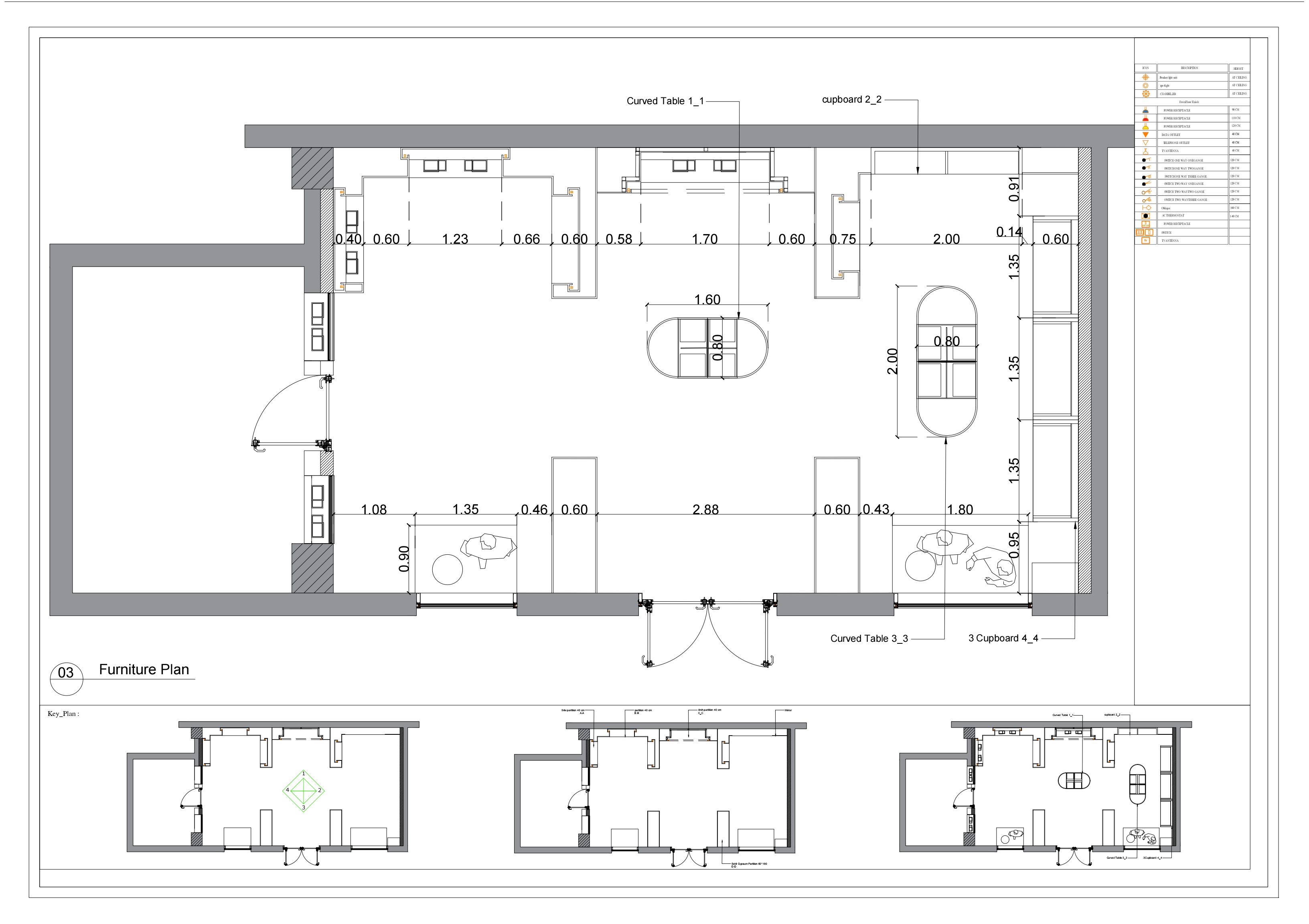
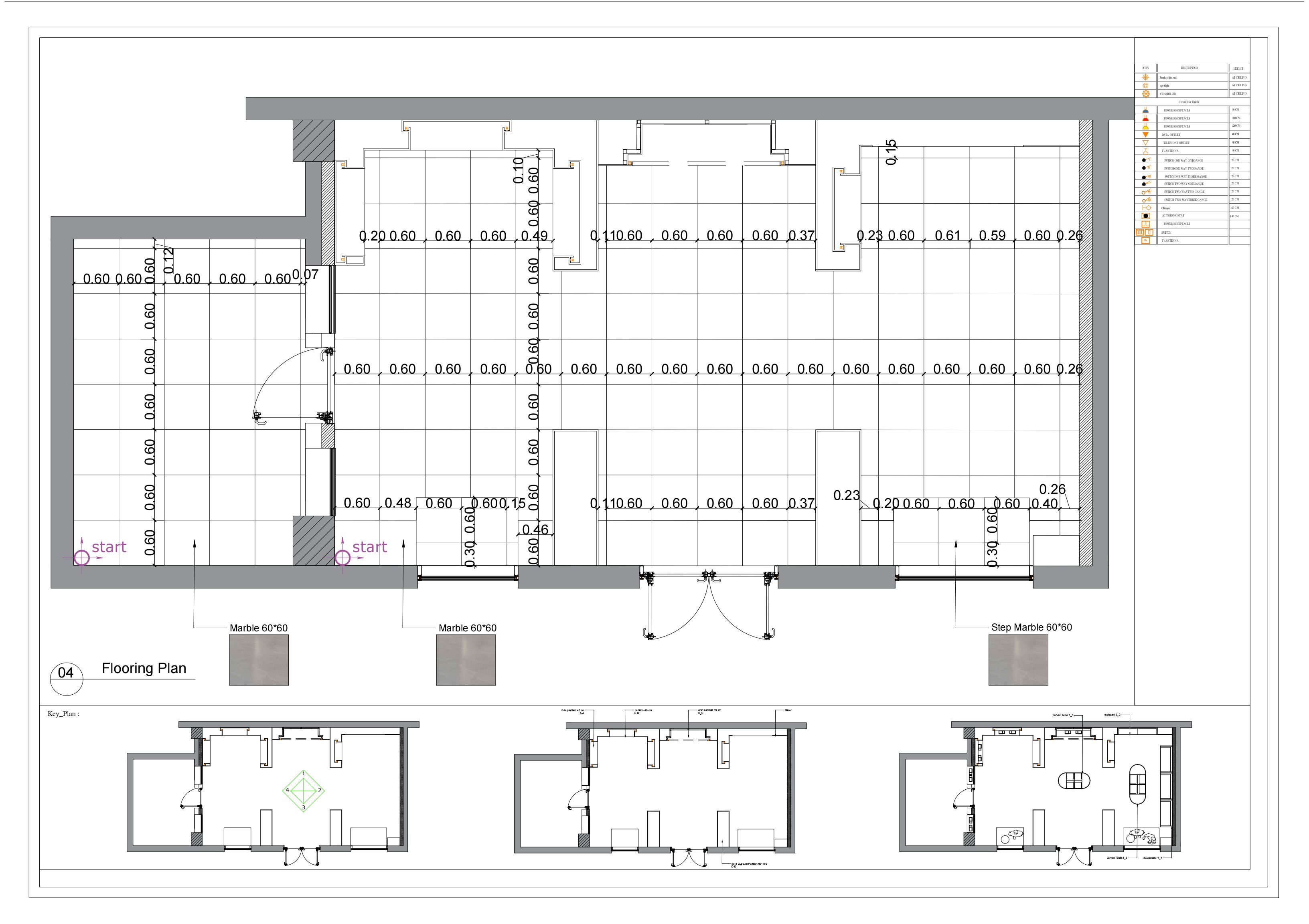
Project : Souq Waqif Boutique
Location : Doha_Qatar
Description :  Shopdrawing of Boutique with furniture working
瓦其夫市场精品店丨卡塔尔多哈-5
瓦其夫市场精品店丨卡塔尔多哈-6
瓦其夫市场精品店丨卡塔尔多哈-7
瓦其夫市场精品店丨卡塔尔多哈-8
瓦其夫市场精品店丨卡塔尔多哈-9
瓦其夫市场精品店丨卡塔尔多哈-10
瓦其夫市场精品店丨卡塔尔多哈-11
瓦其夫市场精品店丨卡塔尔多哈-12
瓦其夫市场精品店丨卡塔尔多哈-13
瓦其夫市场精品店丨卡塔尔多哈-14
瓦其夫市场精品店丨卡塔尔多哈-15
瓦其夫市场精品店丨卡塔尔多哈-16
- Hope you Like it -Thank u
南京喵熊网络科技有限公司 苏ICP备18050492号-4知末 © 2018—2020 . All photos and trademark graphics are copyrighted by their owners.增值电信业务经营许可证(ICP)苏B2-20201444苏公网安备 32011302321234号
客服
消息
收藏
下载
最近